Hotline MessengerTrò chuyện cùng Decox Youtube Decoxdesign Facebook Tiktok Instagram Zalo
Menu

Thi công nội thất Vinhomes Golden River Ba Son 115m2

Thi công nội thất Vinhomes Golden River Ba Son 115m2Nhận báo giá

Tổng quan dự án Vinhomes Golden River Ba Son

Chủ đầu tư: Tập đoàn Vingroup
Diện tích đất: 29 ha
Chức năng dự án: Căn hộ chung cư; Biệt thự cao cấp
Vị trí: 2 Tôn Đức Thắng, P.Bến Nghé, Quận 1, TP Hồ Chí Minh

Chi tiết dự án thi công nội thất căn hộ Vinhomes Golden River Ba Son 115m2

Tên chủ hộ: Chị L
Diện tích căn hộ: 115m2
Vị trí công trình: 2 Tôn Đức Thắng, P.Bến Nghé, Quận 1, TP Hồ Chí Minh
Diện tích thiết kế: 115m2

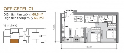
Mặt bằng thiết kế

Vinhomes Golden River Ba Son 115m2Nhận báo giá

Phong cách thiết kế

Căn hộ Vinhomes Golden River Bason 115m2 - một dự án thiết kế và thi công nội thất vừa được Decox Design hoàn thành đầu năm 2022, công trình đi theo đúng tiến độ đề ra để gia chủ có thể trang hoàng và dọn vào ở trước thềm Tết Nguyên Đán. Căn hộ được thiết kế theo phong cách hiện đại, sang trọng nhưng cũng không kém phần ấm cúng nhờ sự góp mặt của chất liệu gỗ mộc mạc. Về bố cục không gian, khu vực chức năng cũng như bố trí nội thất đều không có quá nhiều thay đổi, tất cả đều bám sát theo bản vẽ thiết kế nội thất 3D. Sau đây, mời bạn cùng Decox tham quan những ngóc ngách bên trong căn hộ thời thượng này nhé.

Phòng khách

Vinhomes Golden River Ba Son 115m2Nhận báo giá
Vinhomes Golden River Ba Son 115m2Nhận báo giá
Vinhomes Golden River Ba Son 115m2Nhận báo giá
Vinhomes Golden River Ba Son 115m2Nhận báo giá
Vinhomes Golden River Ba Son 115m2Nhận báo giá
Vinhomes Golden River Ba Son 115m2Nhận báo giá
Vinhomes Golden River Ba Son 115m2Nhận báo giá
Vinhomes Golden River Ba Son 115m2Nhận báo giá
Vinhomes Golden River Ba Son 115m2Nhận báo giá

Phòng bếp

Vinhomes Golden River Ba Son 115m2Nhận báo giá
Vinhomes Golden River Ba Son 115m2Nhận báo giá
Vinhomes Golden River Ba Son 115m2Nhận báo giá
Vinhomes Golden River Ba Son 115m2Nhận báo giá

Phòng giải trí

Vinhomes Golden River Ba Son 115m2Nhận báo giá
Vinhomes Golden River Ba Son 115m2Nhận báo giá
Vinhomes Golden River Ba Son 115m2Nhận báo giá

Phòng ngủ master

Vinhomes Golden River Ba Son 115m2Nhận báo giá
Vinhomes Golden River Ba Son 115m2Nhận báo giá
Vinhomes Golden River Ba Son 115m2Nhận báo giá
Vinhomes Golden River Ba Son 115m2Nhận báo giá
Vinhomes Golden River Ba Son 115m2Nhận báo giá
Vinhomes Golden River Ba Son 115m2Nhận báo giá
Vinhomes Golden River Ba Son 115m2Nhận báo giá
Vinhomes Golden River Ba Son 115m2Nhận báo giá

WC Master - Phòng xông hơi

Vinhomes Golden River Ba Son 115m2Nhận báo giá
Vinhomes Golden River Ba Son 115m2Nhận báo giá
Vinhomes Golden River Ba Son 115m2Nhận báo giá

Phòng ngủ trẻ em

Vinhomes Golden River Ba Son 115m2Nhận báo giá
Vinhomes Golden River Ba Son 115m2Nhận báo giá
Vinhomes Golden River Ba Son 115m2Nhận báo giá
Vinhomes Golden River Ba Son 115m2Nhận báo giá
Vinhomes Golden River Ba Son 115m2Nhận báo giá

WC chung

Vinhomes Golden River Ba Son 115m2Nhận báo giá
Vinhomes Golden River Ba Son 115m2Nhận báo giá

Ban công

Vinhomes Golden River Ba Son 115m2Nhận báo giá

Các khu vực khác

Vinhomes Golden River Ba Son 115m2Nhận báo giá
Vinhomes Golden River Ba Son 115m2Nhận báo giá
Khu vực lối ra vào và kệ để giày
Vinhomes Golden River Ba Son 115m2Nhận báo giá
Hành lang
>>Xem thêm: Các dự án thi công nội thất hiện đại mới nhất

Cùng thể loại

Same category

Decox Signature

Collection

Short Video

Decox on tiktok
x

Góc nhìn


x

Thành công!

Decox Design sẽ liên hệ với bạn sớm nhất! OK
x
Thông tin sản phẩm:

Thông tin khách hàng:
Tôi muốn được hỗ trợ tư vấn thi công sản phẩm này