Hotline MessengerTrò chuyện cùng Decox Youtube Decoxdesign Facebook Tiktok Instagram Zalo
Menu

Bản vẽ mặt bằng căn hộ chung cư Vinhomes Golden River (Ba Son) Tòa Aqua 1

Vinhomes Golden River (Vinhomes Ba Son) là dự án căn hộ, biệt thự, văn phòng dịch vụ vừa được ra mắt trong năm 2018 và được săn đón nồng nhiệt. Dự án gồm 14 tòa nhà chia thành 4 phân khu: The Front, The Luxury, The Aqua, The Victoria. Trong đó, mặt bằng căn hộ chung cư Vinhomes Golden River - Aqua 1 được thiết kế nằm ở một vị trí cực đẹp của phân khu The Aqua Vinhomes Golden River. Hãy để Decox Design cùng bạn tham khảo bản vẽ mặt bằng chung cư Vinhomes Golden River - Aqua 1 nhé!

Tổng quan về dự án Vinhomes Golden River – The Aqua 1

Vinhomes Golden River tọa lạc tại số 2 đường Tôn Đức Thắng, phường Bến Nghé, Quận 1, khu đóng tàu Ba Son cũ, dự án cực kì đắc địa ngay giữa trung tâm Sài Gòn. Dự án thiết kế nội thất chung cư Vinhomes Golden River - Aqua 1 đã được các nhà thiết kế đại tài xây dựng với kiểu dáng kiến trúc hiện đại lạ mắt phù hợp hài hoà với cảnh quan thiên nhiên xung quanh.

Bản vẽ mặt bằng căn hộ chung cư Vinhomes Golden River (Ba Son) Tòa Aqua 1Nhận báo giá

Một số thông tin khác về mặt bằng căn hộ chung cư Vinhomes Golden River

Tổng số tầng: 50 tầng nổi và 3 hầm để xe
Các loại căn hộ: Từ 01 đến 04 phòng ngủ, biệt thự trên không (căn hộ Penthouse Vinhomes Golden River)
Vị trí: Mặt tiền Nguyễn Hữu Cảnh và Tôn Đức Thắng; Thuộc khu The Aqua với 02 mặt giáp kênh Bến Nghé và sông Sài Gòn
Số lượng thang máy: 12 thang - Thang bộ (thang thoát hiểm): 2 thang
Nội thất: Bàn giao hoàn thiện với kính Low-e (kính Low-e hai lớp hút chân không) và hệ thống smarthome; thiết bị vệ sinh Duravit – Đức; thiết bị bếp Bosch; máy lạnh trung tâm.

Mặt bằng căn hộ chung cư Vinhomes Golden River – Tòa Aqua 1

Toà tháp căn hộ Aqua 1 được thiết kế nằm ở một vị trí cực đẹp của phân khu The Aqua Vinhomes Golden Rive. Một mặt có view nhìn trực diện về sông Sài Gòn thơ mộng, nhìn ra bến du thuyền 5 sao, mặt khác giáp với công viên rộng rãi và xanh mát, giáp với kênh Thị Nghè và khu biệt thự The Victoria, khu căn hộ The Luxury.

Bản vẽ mặt bằng căn hộ chung cư Vinhomes Golden River (Ba Son) Tòa Aqua 1Nhận báo giá
Mặt bằng tổng thể phân khu The Aqua của dự án Vinhomes Golden River
mat-bang-chung-cu-vinhomes-golden-river-ba-son-toa-aqua-1-01-decox-designNhận báo giá
Mặt bằng điển hình của Tòa Aqua 1 - Tầng 2-22

Mặt bằng căn hộ chung cư Vinhomes Golden River - Tòa Aqua 1 chi tiết

Tầng điển hình của Tòa Aqua 1 có 10 mặt bằng căn hộ Officetel và 6 mặt bằng căn hộ nhà ở được thiết kế ở những vị trí rất đẹp mắt và phù hợp với nhu cầu sử dụng của cư dân. Với lối thiết kế nội thất căn hộ thông minh, mỗi căn hộ đều được bố trí đầy đủ công năng sử dụng cao cấp mang đậm tính thẩm mỹ, cho bạn một cuộc sống thoải mái và tiện nghi.

mat-bang-chung-cu-vinhomes-golden-river-ba-son-toa-aqua-1-02-decox-designNhận báo giá
Mặt bằng căn hộ Officetel 45m2 - OFT 01 - 1 phòng ngủ
mat-bang-chung-cu-vinhomes-golden-river-ba-son-toa-aqua-1-03-decox-designNhận báo giá
Mặt bằng căn hộ Officetel 45,5m2 - OFT 02 - 1 phòng ngủ
mat-bang-chung-cu-vinhomes-golden-river-ba-son-toa-aqua-1-04-decox-designNhận báo giá
Mặt bằng căn hộ Officetel 67,4m2 - OFT 03 - 2 phòng ngủ
mat-bang-chung-cu-vinhomes-golden-river-ba-son-toa-aqua-1-05-decox-designNhận báo giá
Mặt bằng căn hộ 112,9m2 - CH 04 - 3 phòng ngủ
mat-bang-chung-cu-vinhomes-golden-river-ba-son-toa-aqua-1-06-decox-designNhận báo giá
Mặt bằng căn hộ 108,9m2 - CH 05 - 3 phòng ngủ
mat-bang-chung-cu-vinhomes-golden-river-ba-son-toa-aqua-1-07-decox-designNhận báo giá
Mặt bằng căn hộ Officetel 67,4m2 - OFT 06 - 2 phòng ngủ
mat-bang-chung-cu-vinhomes-golden-river-ba-son-toa-aqua-1-08decox-designNhận báo giá
Mặt bằng căn hộ Officetel 45,4m2 - OFT 07 - 1 phòng ngủ
mat-bang-chung-cu-vinhomes-golden-river-ba-son-toa-aqua-1-09-decox-designNhận báo giá
Mặt bằng căn hộ Officetel 44,7m2 - OFT 08 - 1 phòng ngủ
mat-bang-chung-cu-vinhomes-golden-river-ba-son-toa-aqua-1-10-decox-designNhận báo giá
Mặt bằng căn hộ Officetel 44,7m2 - OFT 09 - 1 phòng ngủ
mat-bang-chung-cu-vinhomes-golden-river-ba-son-toa-aqua-1-11-decox-designNhận báo giá
Mặt bằng căn hộ 76,2m2 - CH 10 - 2 phòng ngủ
mat-bang-chung-cu-vinhomes-golden-river-ba-son-toa-aqua-1-12-decox-designNhận báo giá
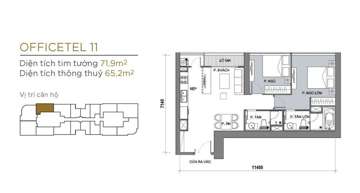
Mặt bằng căn hộ Officetel 65,2m2 - OFT 11 - 2 phòng ngủ
mat-bang-chung-cu-vinhomes-golden-river-ba-son-toa-aqua-1-13-decox-designNhận báo giá
Mặt bằng căn hộ 96,6m2 - CH 12 - 3 phòng ngủ
mat-bang-chung-cu-vinhomes-golden-river-ba-son-toa-aqua-1-14-decox-designNhận báo giá
Mặt bằng căn hộ 101,2m2 - CH 12A - 3 phòng ngủ
mat-bang-chung-cu-vinhomes-golden-river-ba-son-toa-aqua-1-15-decox-designNhận báo giá
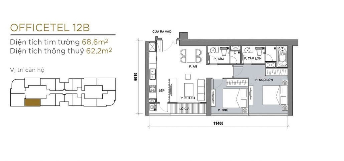
Mặt bằng căn hộ Officetel 62,2m2 - OFT 12B - 2 phòng ngủ
mat-bang-chung-cu-vinhomes-golden-river-ba-son-toa-aqua-1-16-decox-designNhận báo giá
Mặt bằng căn hộ 76,4m2 - CH 15 - 2 phòng ngủ
mat-bang-chung-cu-vinhomes-golden-river-ba-son-toa-aqua-1-17-decox-designNhận báo giá
Mặt bằng căn hộ Officetel 45m2 - OFT 16 - 1 phòng ngủ

>>> Xem thêm: mẫu thiết kế nội thất căn hộ Vinhomes Golden River

Trò chuyện cùng chuyên gia thiết kế nội thất - Nhận ngay giải pháp trang trí nội thất dành riêng cho bạn( ngay hôm nay ): 0901 411 489 – (028) 36200560
Thực hiện bởi: Decox Design
———
Decox Design - dịch vụ thiết kế nội thất chung cư trọn gói chuyên nghiệp, thư viện mẫu nội thất chung cư lớn nhất Việt Nam.
Lầu 8, MH Tower, 730 Võ Văn Kiệt, F1, Q5, TPHCM


Cùng thể loại

Same category

Decox Signature

Collection

Short Video

Decox on tiktok
x

Góc nhìn


x

Thành công!

Decox Design sẽ liên hệ với bạn sớm nhất! OK
x
Thông tin sản phẩm:

Thông tin khách hàng:
Tôi muốn được hỗ trợ tư vấn thi công sản phẩm này