Hotline MessengerTrò chuyện cùng Decox Youtube Decoxdesign Facebook Tiktok Instagram Zalo
Menu

Bản vẽ mặt bằng căn hộ chung cư Vinhomes Golden River (Ba Son) Tòa Aqua 3

Với thiết kế độc đáo, sang trọng với 14 tòa nhà - Vinhomes Golden River vừa ra mắt đã nhận được rất nhiều sự quan tâm. Đây là dự án văn phòng dịch vụ, khách sạn - khu căn hộ, biệt thự siêu cao cấp được chia làm 4 phân khu: The Front, The Luxury, The Aqua, The Victoria. Trong số đó, phân khu Aqua là một trong những phân khu có view đẹp nhất của dự án Vinhomes Golden River. Và mặt bằng căn hộ chung cư Vinhomes Golden River - Aqua 3 được thiết kế nằm ở vị trí cực kỳ bắt mắt trên tổng quan phân khu The Aqua Vinhomes Golden River. Hãy để Decox Design cùng bạn tham khảo bản vẽ mặt bằng căn hộ chung cư Vinhomes Golden River nhé!

Tổng quan về dự án Vinhomes Golden River - Aqua 3

Vinhomes Golden River tọa lạc tại số 2 Tôn Đức Thắng, phường Bến Nghé, quận 1. Dự án nổi bật với không gian mở và khu đô thị xanh. Thiết kế nội thất căn hộ Vinhomes Golden River - Aqua 3 thoáng đãng với mỗi căn hộ đều có cửa sổ và ban công nên dễ dàng đón ánh nắng từ bên ngoài.

mat-bang-chung-cu-vinhomes-golden-river-ba-son-toa-aqua-3-01-decox-designNhận báo giá

Một số thông tin khác về mặt bằng căn hộ chung cư Vinhomes Golden River

Tổng số tầng: 42 tầng nổi và 3 hầm để xe
Các loại căn hộ: Từ 01 đến 04 phòng ngủ (12 căn hộ/sàn), officetel, biệt thự trên không (căn hộ Penthouse Vinhomes Golden River)
Số lượng thang máy: 8 thang - thang bộ (thang thoát hiểm): 2 thang
Vị trí: Mặt tiền Nguyễn Hữu Cảnh và Tôn Đức Thắng; 02 mặt giáp sông Bến Nghé và sông Sài Gòn.
Nội thất: Bàn giao hoàn thiện với kính Low-e (kính Low-e hai lớp hút chân không) và hệ thống smarthome; thiết bị vệ sinh Duravit - Đức; thiết bị bếp Bosch; máy lạnh trung tâm.

Mặt bằng căn hộ chung cư Vinhomes Golden River – Tòa Aqua 3

Tòa tháp căn hộ Aqua 3 được thiết kế với vị trí cực đẹp mắt với hướng trực diện ra sông Sài Gòn và kênh Thị Nghè, mặt khác thì hướng đến khu không gian mở với cây xanh và khu khuôn viên rộng rãi thoáng mát. Với vị trí giáp kênh Thị Nghè và sông Sài Gòn, dân cư sẽ được tận hưởng không gian thoáng đãng, mát mẻ.

mat-bang-chung-cu-vinhomes-golden-river-ba-son-toa-aqua-3-02-decox-designNhận báo giá

Mặt bằng tổng thể phân khu The Aqua của dự án Vinhomes Golden River

mat-bang-chung-cu-vinhomes-golden-river-ba-son-toa-aqua-3-03-decox-designNhận báo giá

Mặt bằng điển hình của Tòa Aqua 3 - Tầng Điển Hình

Mặt bằng căn hộ chung cư Vinhomes Golden River - Tòa Aqua 3 chi tiết

Tầng điển hình của Toà Aqua 3 có 6 căn officetel và 6 căn hộ nhà ở được thiết kế tiện nghi, sang trọng, phóng tầm nhìn ra không gian xanh và khu trung tâm Sài Gòn. Để mang lại cho gia chủ cảm giác thoải mái, mỗi căn hộ mang một nét thiết kế căn hộ khác nhau nhưng về căn bản vẫn có đầy đủ những trang bị cần thiết.

mat-bang-chung-cu-vinhomes-golden-river-ba-son-toa-aqua-3-04-decox-designNhận báo giá

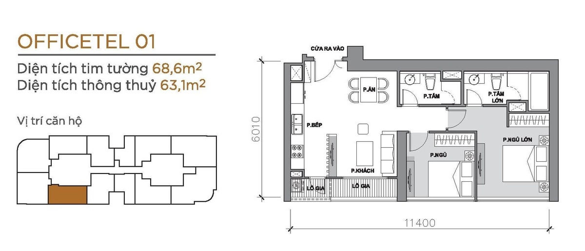
Mặt bằng căn hộ Officetel 63,1m2 - OFT 01 - 2 phòng ngủ

mat-bang-chung-cu-vinhomes-golden-river-ba-son-toa-aqua-3-15-decox-designNhận báo giá

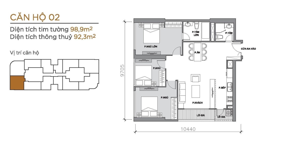
Mặt bằng thiết kế nội thất căn hộ 92,3m2 - CH 02 - 3 phòng ngủ

mat-bang-chung-cu-vinhomes-golden-river-ba-son-toa-aqua-3-05-decox-designNhận báo giá


Mặt bằng thiết kế nội thất căn hộ 94,2m2 - CH 03 - 3 phòng ngủ

mat-bang-chung-cu-vinhomes-golden-river-ba-son-toa-aqua-3-06-decox-designNhận báo giá


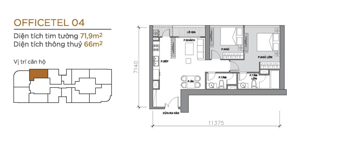
Mặt bằng căn hộ Officetel 66m2 - OFT 04 - 2 phòng ngủ

mat-bang-chung-cu-vinhomes-golden-river-ba-son-toa-aqua-3-07-decox-designNhận báo giá

Mặt bằng căn hộ Officetel 63,5m2 - OFT 05 - 2 phòng ngủ

mat-bang-chung-cu-vinhomes-golden-river-ba-son-toa-aqua-3-08-decox-designNhận báo giá

Mặt bằng căn hộ Officetel 45,2m2 - OFT 06 - 1 phòng ngủ

mat-bang-chung-cu-vinhomes-golden-river-ba-son-toa-aqua-3-09-decox-designNhận báo giá

Mặt bằng thiết kế nội thất căn hộ 72m2 - CH 07 - 2 phòng ngủ

mat-bang-chung-cu-vinhomes-golden-river-ba-son-toa-aqua-3-10-decox-designNhận báo giá

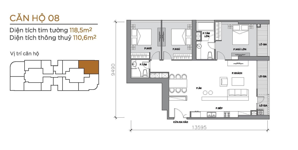
Mặt bằng thiết kế nội thất căn hộ 110,6m2 - CH 08 - 3 phòng ngủ

mat-bang-chung-cu-vinhomes-golden-river-ba-son-toa-aqua-3-11-decox-designNhận báo giá

Mặt bằng thiết kế nội thất căn hộ 113,9m2 - CH 09 - 3 phòng ngủ

mat-bang-chung-cu-vinhomes-golden-river-ba-son-toa-aqua-3-12-decox-designNhận báo giá

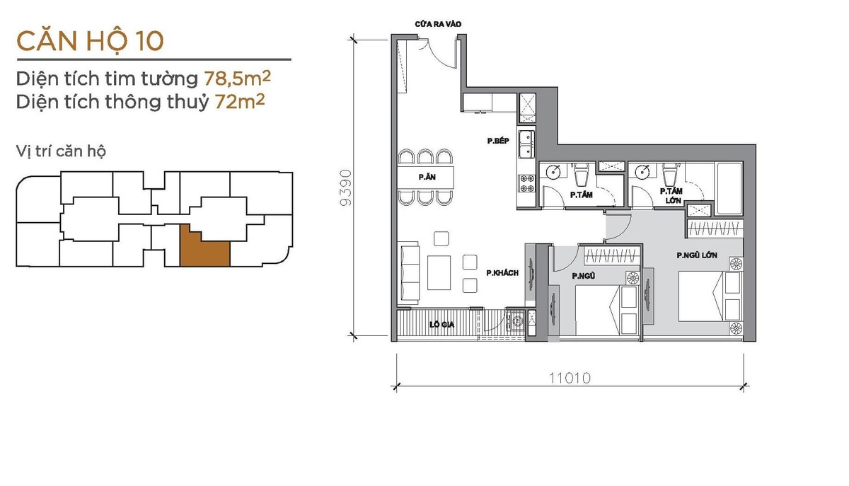
Mặt bằng thiết kế nội thất căn hộ 72m2 - CH 10 - 2 phòng ngủ

mat-bang-chung-cu-vinhomes-golden-river-ba-son-toa-aqua-3-13-decox-designNhận báo giá

Mặt bằng căn hộ Officetel 42,2m2 - OFT 11 - 1 phòng ngủ

mat-bang-chung-cu-vinhomes-golden-river-ba-son-toa-aqua-3-14-decox-designNhận báo giá

Mặt bằng căn hộ Officetel 63,6m2 - OFT 12 - 2 phòng ngủ
>>> Xem thêm: các mẫu thiết kế nội thất căn hộ Vinhomes Golden River

Thực hiện bởi: Decox Design
Hình ảnh: DuanBASON
———
Trò chuyện cùng chuyên gia thiết kế nội thất - Nhận ngay giải pháp trang trí nội thất dành riêng cho bạn( ngay hôm nay ): 0901 411 489 – (028) 36200560
Thực hiện bởi: Decox Design
———
Decox Design - dịch vụ thiết kế nội thất chung cư trọn gói chuyên nghiệp, thư viện mẫu nội thất chung cư lớn nhất Việt Nam.
Lầu 8, MH Tower, 730 Võ Văn Kiệt, F1, Q5, TPHCM


Cùng thể loại

Same category

Decox Signature

Collection

Short Video

Decox on tiktok
x

Góc nhìn


x

Thành công!

Decox Design sẽ liên hệ với bạn sớm nhất! OK
x
Thông tin sản phẩm:

Thông tin khách hàng:
Tôi muốn được hỗ trợ tư vấn thi công sản phẩm này