Hotline MessengerTrò chuyện cùng Decox Youtube Decoxdesign Facebook Tiktok Instagram Zalo
Menu

Thiết kế nội thất căn hộ Palm Heights 105m2 de190050

Tổ ấm là nền tảng vững chắc để mỗi chúng ta có thể thăng hoa trong cuộc sống. Vì thế, các chủ nhân luôn rất tỉ mỉ trong việc lựa chọn mẫu thiết kế nội thất chung cư. Với đôi bàn tay tài hoa, Decox Design đã tạo nên nhiều mẫu thiết kế nội thất vô cùng thời thượng. Và thiết kế nội thất căn hộ Palm Heights 105m2 de190050 là một điển hình tiêu biểu trong các dự án thiết kế của Decox Design. Với căn hộ Palm Heights 105m2, chủ nhân sẽ có một tổ ấm sang trọng và vượt trội về tiện ích.

Tổng quan dự án căn hộ Palm Heights

Là một dự án nhà ở cao cấp, Palm Heights hứa hẹn sẽ tạo nên một luồng gió mới làm nâng cao đẳng cấp sống cho cư dân thành phố. Đến với Palm Heights bạn sẽ được hòa mình vào một không gian thoáng đãng của vùng sông nước. Cùng với đó, những tiện ích như khu thương mại – dịch vụ, hồ bơi, phòng gym, nhà hàng sang trọng luôn sẵn sàng phục vụ cho nhu cầu của bạn. Ngoài ra, Palm Heights còn sở hữu một hệ thống hạ tầng giao thông rất đồng bộ nên việc di chuyển của cư dân đến các quận lân cận rất dễ dàng.
Xem thêm: Các mẫu thiết kế nội thất căn hộ Palm Heights

Một số thông tin khác về dự án căn hộ Palm Heights

Chủ đầu tư: Keppel Land – Tiến Phước – Trần Thái
Diện tích đất: 1,68Ha
Chức năng dự án: Căn hộ cao cấp, office-tel, thương mại, Shophouse
Vị trí: Đường Song Hành, Phường An Phú, Quận 2, Hồ Chí Minh

Chi tiết dự án thiết kế nội thất căn hộ Palm Heights 105m2

Chủ đầu tư: chị Hường
Diện tích căn hộ: 105m2
Vị trí công trình: Căn hộ Palm Heights, đường Song Hành, Phường An Phú, Quận 2, Hồ Chí Minh
Thời gian bàn giao: Quí 2/2019
Diện tích thiết kế: 105m2
Hiện trạng bàn giao: Hoàn thiện cơ bản.

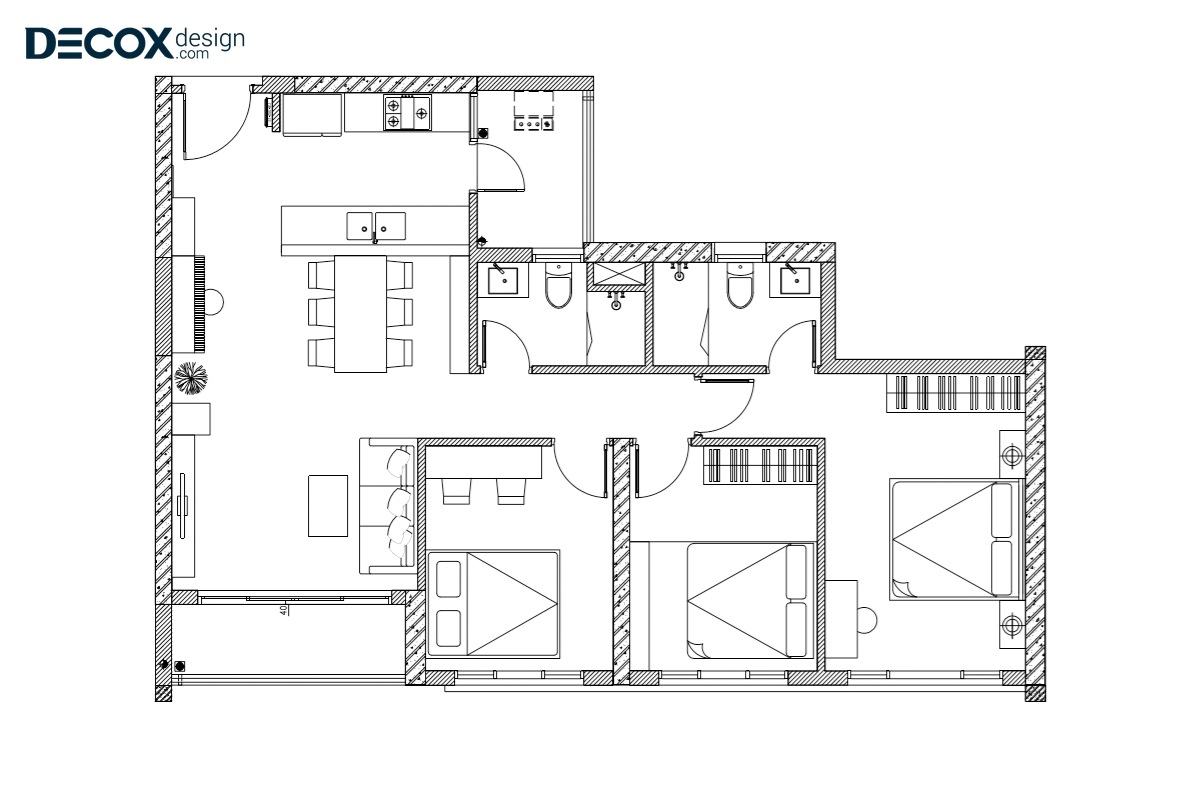
Mặt bằng thiết kế

thiet-ke-noi-that-palm-height-105m2-de190050-19-ban-ve-mat-bang-decox-designNhận báo giá

Phong cách thiết kế

Các ngóc ngách trong căn hộ Palm Heights 105m2 được Decox Design thiết kế tỉ mỉ. Mỗi một mét vuông đều mang đến cảm giác dễ chịu cho chủ nhân. Các tông màu sang trọng hòa cùng màu sắc tự nhiên của gỗ tạo nên những đường nét thanh thoát và mang tính nghệ thuật cao. Bố cục sắp xếp khoa học giúp cho không gian luôn nhẹ nhàng, thông thoáng.
Không gian sang trọng, quý phái nhờ việc kết hợp sắc sảo giữa các mảng màu trắng-xám-đen. Các vật dụng được lựa chọn tương đồng với diện tích nhờ đó mà không gian thiết kế nội thất căn hộ Palm Heights được hài hòa, cân đối. Chất liệu gỗ được sử dụng tinh tế và tạo nên những điểm chấm phá thú vị làm tăng sức quyến rũ cho căn hộ.

Phòng khách

Thiết kế nội thất phòng khách với ghế sofa màu sắc nhẹ nhàng kết hợp cùng màu vàng sang trọng của gối và màu sắc trầm của thảm tạo nên khu vực tiếp khách thật ấm áp. Màu đen mạnh mẽ của đàn piano được dung hòa bởi màu xanh nhẹ nhàng của lá cây góp phần giúp cho không gian khu vực phòng khách trở nên duyên dáng và thanh thoát.

thiet-ke-noi-that-palm-height-105m2-de190050-02-phong-khach-decox-designNhận báo giá

thiet-ke-noi-that-palm-height-105m2-de190050-01-phong-khach-decox-designNhận báo giá
thiet-ke-noi-that-palm-height-105m2-de190050-03-phong-khach-decox-designNhận báo giá
thiet-ke-noi-that-palm-height-105m2-de190050-04-phong-khach-decox-designNhận báo giá

Phòng bếp

Thiết kế nội thất phòng bếp với quầy bếp và nơi rửa chén, dĩa được thiết kế song song nhằm tạo nên một không gian thông thoáng và tiện dụng. Màu đen hiện đại của tủ lạnh được Decox Design kết hợp điệu nghệ với các gam màu trung tính nhẹ nhàng tạo nên những đường nét thật dứt khoát. Đặc biệt, việc thiết kế thêm một tủ rượu sẽ giúp cho không gian thêm quý phái và thời thượng.

thiet-ke-noi-that-palm-height-105m2-de190050-05-phong-bep-decox-designNhận báo giá
thiet-ke-noi-that-palm-height-105m2-de190050-06-phong-bep-decox-designNhận báo giá
thiet-ke-noi-that-palm-height-105m2-de190050-07-phong-bep-decox-designNhận báo giá
thiet-ke-noi-that-palm-height-105m2-de190050-08-phong-bep-decox-designNhận báo giá

Phòng ngủ master

Không gian phòng ngủ sang trọng, thư thái nhờ kết hợp chuẩn mực giữa màu sắc của ga nệm, chăn và gối. Mảng tường khu vực bàn làm việc được chấm phá bởi màu sắc tự nhiên của gỗ giúp cho thiết kế nội thất phòng ngủ master của căn hộ thêm nổi bật. Ngoài ra, việc bố trí thêm tiện ích xanh sẽ giúp cho không gian phòng trở nên tràn đầy sức sống.

thiet-ke-noi-that-palm-height-105m2-de190050-09-phong-ngu-master-decox-designNhận báo giá
thiet-ke-noi-that-palm-height-105m2-de190050-11-phong-ngu-master-decox-designNhận báo giá

thiet-ke-noi-that-palm-height-105m2-de190050-10-phong-ngu-master-decox-designNhận báo giá

Phòng ngủ nhỏ 1

Điểm nhấn tinh tế trong thiết kế nội thất phòng ngủ nhỏ chính là giường ngủ được tích hợp thêm tủ sách. Các tông màu được lựa chọn phù hợp với tâm lý của trẻ nhỏ. Mảng tường đầu giường ngủ một phần được ốp gỗ gợi cảm giác ấm áp cho trẻ.

thiet-ke-noi-that-palm-height-105m2-de190050-12-phong-ngu-01-decox-designNhận báo giá
thiet-ke-noi-that-palm-height-105m2-de190050-13-phong-ngu-01-decox-designNhận báo giá
thiet-ke-noi-that-palm-height-105m2-de190050-14-phong-ngu-01-decox-designNhận báo giá

Phòng ngủ nhỏ 2

Việc phân chia màu sắc linh hoạt trên các mảng tường đã tạo nên một phòng ngủ duyên dáng, thoáng mát. Hình ảnh búp măng non và khinh khí cầu thể hiện độc đáo trên tường, gợi lên cho trẻ về một tương lai tốt đẹp.

thiet-ke-noi-that-palm-height-105m2-de190050-15-phong-ngu-02-decox-designNhận báo giá
thiet-ke-noi-that-palm-height-105m2-de190050-16-phong-ngu-02-decox-designNhận báo giá

Wc

thiet-ke-noi-that-palm-height-105m2-de190050-17-wc-01-decox-designNhận báo giá
thiet-ke-noi-that-palm-height-105m2-de190050-18-wc-02-decox-designNhận báo giá




Cùng thể loại

Same category

Decox Signature

Collection

Short Video

Decox on tiktok
x

Góc nhìn


x

Thành công!

Decox Design sẽ liên hệ với bạn sớm nhất! OK
x
Thông tin sản phẩm:

Thông tin khách hàng:
Tôi muốn được hỗ trợ tư vấn thi công sản phẩm này