Hotline MessengerTrò chuyện cùng Decox Youtube Decoxdesign Facebook Tiktok Instagram Zalo
Menu

Thiết kế nội thất căn hộ Palm Heights 115m2 DE20009TC

Palm Heights là một khu dự án được nhiều cư dân biết đến bởi sự hiện đại, ấn tượng và nằm trên trục đường chính di chuyển thuận tiện đến các tỉnh thành đồng thời nó cũng sở hữu một không gian thoáng mát sẽ tạo cho bạn một cảm giác thoải mái.
Thiết kế nội thất căn hộ Palm Heights 115m2 DE20009TC được Decox Design thực hiện theo đúng tâm ý của gia chủ, sang trọng và có chút cảm xúc. Dưới đây là một số thông tin và hình ảnh căn hộ để bạn tham khảo, hy vọng Decox Design sẽ tiếp thêm cho bạn ý tưởng để thiết kế nội thất chung cư căn hộ của bạn hoàn thiện hơn nhé!

Tổng quan dự án căn hộ Palm Heights 115m2 DE20009TC

Chủ đầu tư: Công ty TNHH Nam Rạch Chiếc (liên doanh giữa Keppel Land, Tiến Phước, Trần Thái).
Diện tích đất: 1.68 ha.
Chức năng dự án: Căn hộ cao cấp, office-tel, thương mại, Shophouse.
Vị trí: Đường Song Hành, Phường An Phú, Quận 2, Hồ Chí Minh.

Chi tiết dự án thiết kế nội thất căn hộ Palm Heights 115m2 DE20009TC

Chủ đầu tư: Anh Khôi
Diện tích căn hộ: 115m2.
Vị trí công trình: Đường Song Hành, Phường An Phú, Quận 2, Hồ Chí Minh.
Diện tích thiết kế: 115m2.

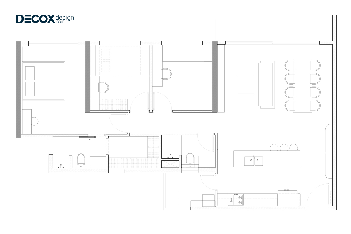
Mặt bằng thiết kế

Thiết kế nội thất căn hộ Palm Heights 115m2 DE20009TCNhận báo giá

Phong cách thiết kế

Căn hộ được thiết kế theo phong cách bán cổ điển đồng thời cũng pha thêm một ít tinh thần của hiện đại, nó tạo nên sự tươi mới, độc đáo nhưng vẫn giữ được tính sang trọng, tinh tế trong tường không gian.

Phòng khách

thiet-ke-noi-that-palm-heights-92m2-de20009tc-phong-khach-04-decox-designNhận báo giá
thiet-ke-noi-that-palm-heights-75m2-de20009tc-phong-khach-01-decox-designNhận báo giá
thiet-ke-noi-that-palm-heights-75m2-de20009tc-phong-khach-03-decox-designNhận báo giá
thiet-ke-noi-that-palm-heights-92m2-de20009tc-phong-khach-02-decox-designNhận báo giá

Phòng bếp

thiet-ke-noi-that-palm-heights-75m2-de20009tc-phong-bep-06-decox-designNhận báo giá
thiet-ke-noi-that-palm-heights-92m2-de20009tc-phong-bep-05-decox-designNhận báo giá
thiet-ke-noi-that-palm-heights-92m2-de20009tc-phong-bep-07-decox-designNhận báo giá


>> Xem thêm các mẫu phòng bếp đẹp

Phòng ngủ master

thiet-ke-noi-that-palm-heights-92m2-de20009tc-phong-ngu-master-09-decox-designNhận báo giá
thiet-ke-noi-that-palm-heights-92m2-de20009tc-phong-ngu-master-10-decox-designNhận báo giá

Phòng ngủ nhỏ

thiet-ke-noi-that-palm-heights-92m2-de20009tc-phong-ngu-nho-11-decox-designNhận báo giá
thiet-ke-noi-that-palm-heights-92m2-de20009tc-phong-ngu-nho-12-decox-designNhận báo giá

Phòng thay đồ

thiet-ke-noi-that-palm-heights-92m2-de20009tc-phong-thay-do-17-decox-designNhận báo giá
thiet-ke-noi-that-palm-heights-92m2-de20009tc-phong-thay-do-18-decox-designNhận báo giá

Phòng làm việc

thiet-ke-noi-that-palm-heights-75m2-de20009tc-phong-lam-viec-13-decox-designNhận báo giá
thiet-ke-noi-that-palm-heights-75m2-de20009tc-phong-lam-viec-15-decox-designNhận báo giá

thiet-ke-noi-that-palm-heights-92m2-de20009tc-phong-lam-viec-14-decox-designNhận báo giá
thiet-ke-noi-that-palm-heights-92m2-de20009tc-phong-lam-viec-16-decox-designNhận báo giá

>> Tham khảo: các mẫu thiết kế nội thất chung cư Palm Hieghts


Cùng thể loại

Same category

Decox Signature

Collection

Short Video

Decox on tiktok
x

Góc nhìn


x

Thành công!

Decox Design sẽ liên hệ với bạn sớm nhất! OK
x
Thông tin sản phẩm:

Thông tin khách hàng:
Tôi muốn được hỗ trợ tư vấn thi công sản phẩm này