Hotline MessengerTrò chuyện cùng Decox Youtube Decoxdesign Facebook Tiktok Instagram Zalo
Menu

Thiết kế nội thất căn hộ Hado Centrosa 75m2 de013

Decox Design sẽ mang cho bạn một tổ ấm đẹp, một cuộc sống hiện đại, thăng hoa vì thế mỗi góc của căn hộ được thiết kế tỉ mỉ. Và thiết kế nội thất căn hộ Hado Centrosa 75m2 de013 sẽ là một trong những căn hộ có thiết kế nội thất chung cư hiện đại nhất với các đường nét Roman tinh tế trong căn hộ.

Tổng quan dự án căn hộ Hado Centrosa 75m2

Nằm ở vị trí trung tâm tại khu vực đường 3 tháng 2, Quận 10. Một con đường huyết mạch và nối dài đến trung tâm thành phố nhanh nhất. Hado Centrosa được mệnh danh là thành phố thu nhỏ yên bình giữa một thành phố rộng lớn, hiện đại.
Hado Centrosa sỡ hữu những tiện ích thuận lợi bởi các dịch vụ hồ bơi cao cấp, khi trung tâm thương mại Vincom sầm uất và phục vụ cho cư dân. Decox Design sẽ đồng hành cùng bạn trong những mẫu thiết kế nội thất chung cư Hado Centrosa hiện đại nhất.

Một số thông tin khác về dự án căn hộ Hado Centrosa

Chủ đầu tư: Tập Đoàn Hado (HDG) – Công Ty TNHH MTV 756 – Ngân Hàng Quân Đội (MBB)

Diện tích đất: 6.85ha

Chức năng dự án: Khu căn hộ cao cấp

Vị trí: Số 200, Đường 3/2, P12, Quận 10, TP. Hồ Chí Minh

Chi tiết dự án thiết kế nội thất căn hộ Hado Centrosa 75m2

Chủ đầu tư: Anh Đ.

Diện tích căn hộ: 75m2.

Vị trí công trình: Số 200, Đường 3/2, P12, Quận 10, TP. Hồ Chí Minh

Diện tích thiết kế: 75m2.

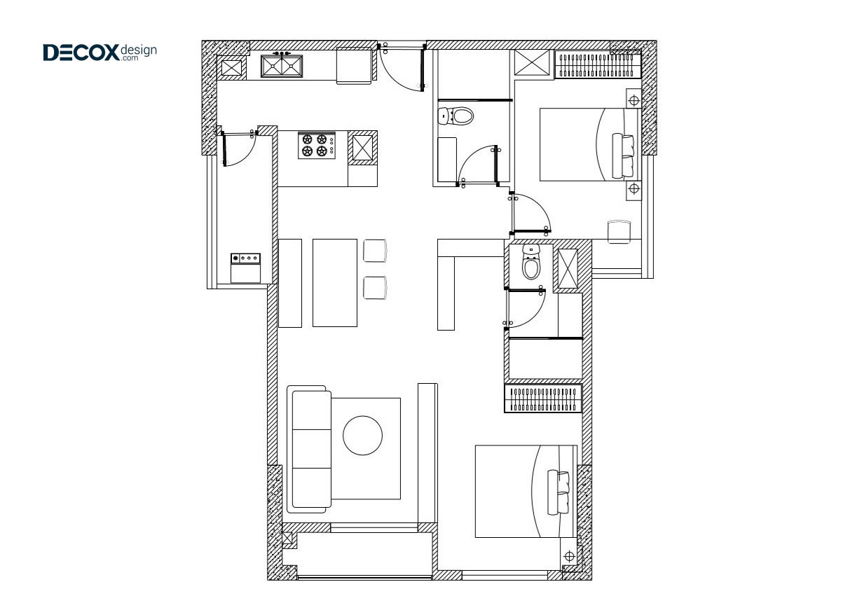
Mặt bằng thiết kế

mat-bang-thiet-ke-hado-75m2-de013-decox-designNhận báo giá

Phòng khách

thiet-ke-noi-that-hado-centrosa-75m2-01-phong-khach-decox-designNhận báo giá

thiet-ke-noi-that-hado-centrosa-75m2-02-phong-khach-decox-designNhận báo giá

thiet-ke-noi-that-hado-centrosa-75m2-03-phong-khach-decox-designNhận báo giá

thiet-ke-noi-that-hado-centrosa-75m2-04-phong-khach-decox-designNhận báo giá

thiet-ke-noi-that-hado-centrosa-75m2-05-phong-khach-decox-designNhận báo giá

thiet-ke-noi-that-hado-centrosa-75m2-06-phong-khach-decox-designNhận báo giá

Phòng bếp

thiet-ke-noi-that-hado-centrosa-75m2-07-phong-khach-decox-designNhận báo giá

thiet-ke-noi-that-hado-centrosa-75m2-08-phong-bep-decox-designNhận báo giá

thiet-ke-noi-that-hado-centrosa-75m2-09-phong-bep-decox-designNhận báo giá

thiet-ke-noi-that-hado-centrosa-75m2-10-phong-bep-decox-designNhận báo giá

thiet-ke-noi-that-hado-centrosa-75m2-12-phong-bep-decox-designNhận báo giá

thiet-ke-noi-that-hado-centrosa-75m2-11-phong-bep-decox-designNhận báo giá

Phòng ngủ master

thiet-ke-noi-that-hado-centrosa-75m2-13-phong-ngu-master-decox-designNhận báo giá

thiet-ke-noi-that-hado-centrosa-75m2-14-phong-ngu-master-decox-designNhận báo giá

thiet-ke-noi-that-hado-centrosa-75m2-15-phong-ngu-master-decox-designNhận báo giá

thiet-ke-noi-that-hado-centrosa-75m2-16-phong-ngu-master-decox-designNhận báo giá

Phòng ngủ nhỏ

thiet-ke-noi-that-hado-centrosa-75m2-17-phong-ngu-nho-decox-designNhận báo giá

thiet-ke-noi-that-hado-centrosa-75m2-19-phong-ngu-nho-decox-designNhận báo giá

thiet-ke-noi-that-hado-centrosa-75m2-18-phong-ngu-nho-decox-designNhận báo giá

Wc

Thiết kế nội thất căn hộ Hado Centrosa 75m2 de013Nhận báo giá
>>Xem thêm: Các mẫu thiết kế nội thất căn hộ Hado Centrosa

Cùng thể loại

Same category

Decox Signature

Collection

Short Video

Decox on tiktok
x

Góc nhìn


x

Thành công!

Decox Design sẽ liên hệ với bạn sớm nhất! OK
x
Thông tin sản phẩm:

Thông tin khách hàng:
Tôi muốn được hỗ trợ tư vấn thi công sản phẩm này