Hotline MessengerTrò chuyện cùng Decox Youtube Decoxdesign Facebook Tiktok Instagram Zalo
Menu

Thiết kế nội thất căn hộ Hado Centrosa 50m2 de011

Thiết kế nội thất căn hộ Hado Centrosa theo phong cách nội thất công nghiệp với lối trang trí đơn giản, mộc mạc với những bức tường thô ráp và mang đến cho căn hộ một vẻ đẹp thu hút, gần gũi và đầy sự khác biệt. Hãy cùng Decox Design tham khảo mẫu thiết kế nội thất căn hộ Hado Centrosa 50m2 de011 này nhé!

Tổng quan dự án căn hộ Hado Centrosa 50m2 de011

Khu dự án Hado Centrosa nằm ngay trung tâm Quận 10, là nơi đông đúc nhất của khu vực. Hado như một thành phố thu nhỏ giữa lòng thành phố náo nhiệt. Với hệ thống nhiều cây xanh, có lối thiết kế nội thất chung cư đẹp hòa mình vào thiên nhiên xanh ngát. Hado được xem là một trong những nơi sống nhất tại Sài Gòn.

Một số thông tin khác về dự án căn hộ Hado Centrosa 50m2

Chủ đầu tư: Tập Đoàn Hado (HDG) – Công Ty TNHH MTV 756 – Ngân Hàng Quân Đội (MBB)
Diện tích đất: 6.85ha
Chức năng dự án: Khu căn hộ cao cấp
Vị trí: Số 200, Đường 3/2, P12, Quận 10, TP. Hồ Chí Minh

Chi tiết dự án thiết kế nội thất căn hộ Hado Centrosa 50m2

Chủ đầu tư: Anh A
Diện tích căn hộ: 50m2
Vị trí công trình: Căn hộ Hado Centrosa, số 200, Đường 3/2, P12, Quận 10, TP. Hồ Chí Minh
Diện tích thiết kế: 50m2

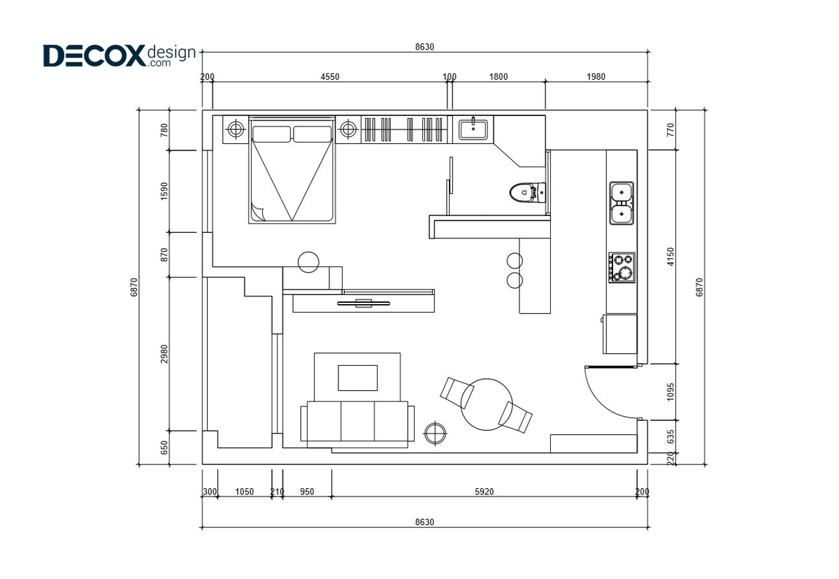
Mặt bằng thiết kế

Thiết kế nội thất căn hộ Palm Heights 120m2 DE190052Nhận báo giá

Phòng khách

Thiết kế nội thất căn hộ Palm Heights 120m2 DE190052Nhận báo giá
Thiết kế nội thất căn hộ Palm Heights 120m2 DE190052Nhận báo giá
Thiết kế nội thất căn hộ Palm Heights 120m2 DE190052Nhận báo giá

Thiết kế nội thất căn hộ Palm Heights 120m2 DE190052Nhận báo giá

Thiết kế nội thất căn hộ Palm Heights 120m2 DE190052Nhận báo giá

Thiết kế nội thất căn hộ Palm Heights 120m2 DE190052Nhận báo giá

Phòng bếp

Thiết kế nội thất căn hộ Palm Heights 120m2 DE190052Nhận báo giá
Thiết kế nội thất căn hộ Palm Heights 120m2 DE190052Nhận báo giá
Thiết kế nội thất căn hộ Palm Heights 120m2 DE190052Nhận báo giá

Thiết kế nội thất căn hộ Palm Heights 120m2 DE190052Nhận báo giá

Phòng ngủ

Thiết kế nội thất căn hộ Palm Heights 120m2 DE190052Nhận báo giá
Thiết kế nội thất căn hộ Palm Heights 120m2 DE190052Nhận báo giá
Thiết kế nội thất căn hộ Palm Heights 120m2 DE190052Nhận báo giá
Thiết kế nội thất căn hộ Palm Heights 120m2 DE190052Nhận báo giá
Thiết kế nội thất căn hộ Palm Heights 120m2 DE190052Nhận báo giá

Wc

Thiết kế nội thất căn hộ Palm Heights 120m2 DE190052Nhận báo giá

Thiết kế nội thất căn hộ Palm Heights 120m2 DE190052Nhận báo giá
>>Xem thêm: Các mẫu thiết kế nội thất căn hộ Hado Centrosa

Cùng thể loại

Same category

Decox Signature

Collection

Short Video

Decox on tiktok
x

Góc nhìn


x

Thành công!

Decox Design sẽ liên hệ với bạn sớm nhất! OK
x
Thông tin sản phẩm:

Thông tin khách hàng:
Tôi muốn được hỗ trợ tư vấn thi công sản phẩm này