Hotline MessengerTrò chuyện cùng Decox Youtube Decoxdesign Facebook Tiktok Instagram Zalo
Menu

Thiết kế nội thất căn hộ Feliz En Vista 85m2 de022

Không gian sống đẳng cấp với thiết kế hiện đại đồng thời tọa lạc trên mảnh đất vàng cùng với những kiến trúc sư chuyện nghiệp tại Decox Design đã tạo nên một làn gió mới cho căn hộ của chính mình. Bạn muốn căn hộ của bạn như thế nào? Phong cách ra sao? Thì cứ liên hệ, trao đổi ngay với Decox Design để nhận được nhưng tư vấn tận tình và mới lạ nhất cho căn hộ.

Tổng quan dự án căn hộ Feliz En Vista 85m2 de022

Phải an cư thì mới lập nghiệp, một thiết kế nội thất chung cư đẹp hay một không gian trong lành là những điều bạn cần nhất khi lựa chọn Feliz En Vista. Các tiện ích, dịch vụ đẳng cấp và hiện đại phục vụ cho cư dân sống tại nội khu. Đây chính là nơi mà gia đình bạn đang tìm kiếm.

Một số thông tin khác về dự án căn hộ Feliz En Vista 85m2 de022

Tên dự án: Feliz En Vista

Vị trí: 01 Đường Phan Văn Đáng, Phường Thạnh Mỹ Lợi, Quận 2, TP. Hồ Chí Minh

Chủ đầu tư: Công ty TNHH Đầu tư Capitaland – Thiên Đức

Tổng diện tích: 2.6 ha

Quy mô dự án: 3 tòa căn hộ – 800 căn hộ, 1 tòa căn hộ dịch vụ, 4 tầng đậu xe nổi, tiện ích ở tầng trệt-3-3A, tầng trên cao 12A-12B

Chi tiết dự án thiết kế nội thất căn hộ Feliz En Vista 85m2 de022

Chủ đầu tư: Chị L.

Diện tích căn hộ: 85m2

Vị trí công trình: 01 Đường Phan Văn Đáng, Phường Thạnh Mỹ Lợi, Quận 2, TP. Hồ Chí Minh

Diện tích thiết kế: 85m2

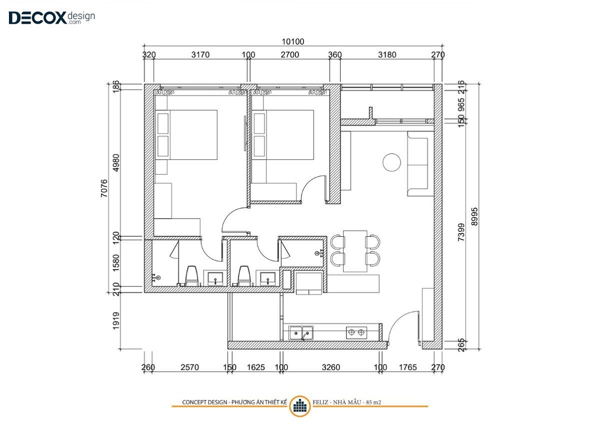
Mặt bằng thiết kế

mat-bang-feliz-vista-85m2-decoxNhận báo giá

Phong cách thiết kế

Thiết kế căn hộ tối giản nhưng mang được sự hiện đại, những đường nét thẳng cùng màu sắc nhẹ nhàng, giảm thiểu nội thất, ít chi tiết. Đồng thời, thay vào đó là những nội thất có chức năng thông minh, đơn giản nhưng vẫn thoải mái cho sinh hoạt.

Phòng khách

thiet-ke-noi-that-feliz-en-vista-85m2-phong-khach-02-decox-designNhận báo giá
thiet-ke-noi-that-feliz-en-vista-85m2-phong-khach-01-decox-designNhận báo giá

thiet-ke-noi-that-feliz-en-vista-85m2-phong-bep-04-decox-designNhận báo giá

Phòng bếp

thiet-ke-noi-that-feliz-en-vista-85m2-phong-bep-03-decox-designNhận báo giá
thiet-ke-noi-that-feliz-en-vista-85m2-phong-bep-05-decox-designNhận báo giá

Phòng ngủ master

thiet-ke-noi-that-feliz-en-vista-85m2-phong-ngu-master-07-decox-designNhận báo giá
thiet-ke-noi-that-feliz-en-vista-85m2-phong-ngu-master-06-decox-designNhận báo giá

Phòng ngủ nhỏ

thiet-ke-noi-that-feliz-en-vista-85m2-phong-ngu-nho-09-decox-designNhận báo giá
thiet-ke-noi-that-feliz-en-vista-85m2-phong-ngu-nho-08-decox-designNhận báo giá

Wc

thiet-ke-noi-that-feliz-en-vista-85m2-wc-10-decox-designNhận báo giá
>>Xem thêm:
Các mẫu thiết kế nội thất căn hộ chung cư Feliz En Vista
100+ Mẫu thiết kế nội thất chung cư giá rẻ 2019

Cùng thể loại

Same category

Decox Signature

Collection

Short Video

Decox on tiktok
x

Góc nhìn


x

Thành công!

Decox Design sẽ liên hệ với bạn sớm nhất! OK
x
Thông tin sản phẩm:

Thông tin khách hàng:
Tôi muốn được hỗ trợ tư vấn thi công sản phẩm này