Hotline MessengerTrò chuyện cùng Decox Youtube Decoxdesign Facebook Tiktok Instagram Zalo
Menu

Duplex The Crest Metropole

Duplex The CrestNhận báo giá

Thông tin dự án

- Loại hình: Duplex, The Crest Metropole Thủ Thiêm
- Chủ đầu tư: Mrs. N
- Phong cách: Modern Luxury
- Diện tích: 155m2
- Thiết kế & Thi công: Decox

Phong cách thiết kế

Nằm trong khu chung cư cao cấp với tiện ích hàng đầu TPHCM thế nhưng căn hộ Duplex do Decox thiết kế và thi công này vẫn toát lên hơi thở riêng biệt - gần gũi, ấm cúng nhưng cũng không kém phần sang trọng, tinh tế. Thiết kế nội thất là sự tinh giản trong đường nét, màu sắc sử dụng. Từ những gam màu trầm ấm, đặc biệt là sắc nâu, chất mộc chủ đạo kết hợp cùng vật liệu đá, kim loại mạ và hệ thống ánh sáng đã được tinh chỉnh phù hợp… tất cả đã tạo nên một không gian sống trọn vẹn, đề cao chuẩn mực cá nhân hoá và nuôi dưỡng cảm xúc.

Mặt bằng thiết kế

Duplex The CrestNhận báo giá
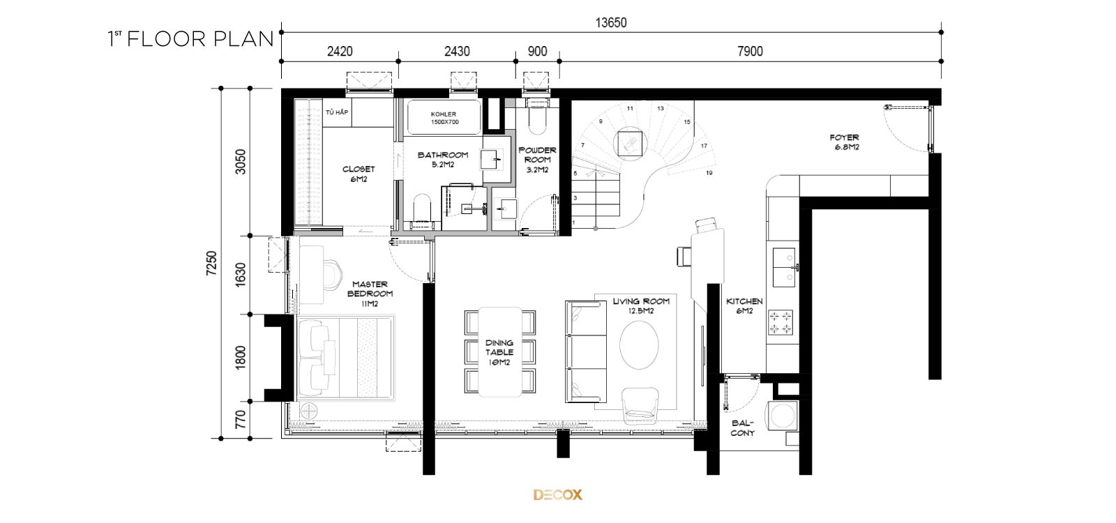
Mặt bằng thiết kế căn hộ Duplex The Crest Metropole Thủ Thiêm - Tầng 1
Duplex The CrestNhận báo giá
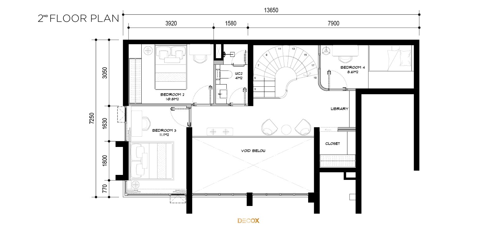
Mặt bằng thiết kế căn hộ Duplex The Crest Metropole Thủ Thiêm - Tầng 2

Foyer

Duplex The CrestNhận báo giá

Phòng khách

Ngụ ý thiết kế được KTS thể hiện rõ nét tại không gian phòng khách. Thông qua thủ pháp tinh giản trong đường nét, thiết kế đã đánh bật lên tone màu sử dụng nhẹ nhàng, mang ý niệm gần gũi và bắt nguồn từ những điều tự nhiên, quen thuộc nhất. Đơn giản là vậy, thế nhưng thông qua sự kết hợp khéo léo giữa màu sắc và chất liệu, ngôi nhà vẫn thể hiện rõ nét tính sang trọng và tinh tế. Bên cạnh đó, thiết kế thông tầng cùng cửa kính full trần cũng là tiền đề để mang đến một không gian sống thoáng đãng, tràn ngập năng lượng và sinh khí.
Duplex The CrestNhận báo giá
Duplex The CrestNhận báo giá
Duplex The CrestNhận báo giá
Duplex The CrestNhận báo giá
Duplex The CrestNhận báo giá

Phòng bếp

Thiết kế bếp với gam màu trung tính cùng hệ bếp chữ I và bàn đảo tích hợp quầy bar tạo ra không gian nấu ăn riêng tư và thoải mái. Mọi thứ được giấu gọn trong những ngăn tủ, tạo nên một căn bếp sạch sẽ và gọn gàng. ​
Duplex The CrestNhận báo giá
Duplex The CrestNhận báo giá

Phòng đọc sách

Khoảng trống gần lan can trên khu vực tầng 2 được tận dụng thành không gian tuyệt vời để gia chủ đọc sách. Thiết kế tập trung vào sự sang trọng với ghế armchair bọc nút nhập khẩu êm ái và kệ sách may đo riêng biệt, giàu tính phản chiếu và ánh sáng vàng dịu nhẹ cho những phút giây thư giãn thêm trọn vẹn.
Duplex The CrestNhận báo giá
Duplex The CrestNhận báo giá

Phòng ngủ master

Phòng ngủ master là bản giao hưởng nhẹ nhàng với gam màu nâu chủ đạo. Sắc nâu mang hơi thở của đất được tôn lên trọn vẹn trên nền màu trung tính. Thiết kế cũng nhấn mạnh vào cách phối màu, chất liệu cao cấp và tiết chế nội thất không cần thiết để đảm bảo một không gian nghỉ ngơi rộng rãi, thoải mái.
Duplex The CrestNhận báo giá
Duplex The CrestNhận báo giá
Duplex The CrestNhận báo giá
Duplex The CrestNhận báo giá
Duplex The CrestNhận báo giá
Duplex The CrestNhận báo giá
Duplex The CrestNhận báo giá
Duplex The CrestNhận báo giá
Duplex The CrestNhận báo giá
Duplex The CrestNhận báo giá
Duplex The CrestNhận báo giá
Duplex The CrestNhận báo giá

Phòng ngủ 2

Điểm đặc biệt trong căn hộ Duplex này phải kể đến sự đồng bộ từ màu sắc đến chất liệu xuyên suốt các không gian, điều này tạo nên mạch chảy nhịp nhàng và kết nối.
Duplex The CrestNhận báo giá
Duplex The CrestNhận báo giá
Duplex The CrestNhận báo giá

Phòng ngủ 3

Phòng ngủ này có phần tương tự như phòng ngủ master từ nội thất cho đến cách bố trí. Tuy nhiên, chỉ một chút biến đổi trong chất liệu sử dụng cũng đã mang đến một diện mạo mới, cá tính và mạnh mẽ hơn cho không gian phòng ngủ này.
Duplex The CrestNhận báo giá
Duplex The CrestNhận báo giá
Duplex The CrestNhận báo giá

WC chung

Duplex The CrestNhận báo giá
Duplex The CrestNhận báo giá
>> Xem thêm nhiều mẫu thiết kế nội thất căn hộ Duplex sang trọng, ấn tượng tại: https://decoxdesign.com/penthouse-duplex

Cùng thể loại

Same category

Decox Signature

Collection

Short Video

Decox on tiktok
x

Góc nhìn


x

Thành công!

Decox Design sẽ liên hệ với bạn sớm nhất! OK
x
Thông tin sản phẩm:

Thông tin khách hàng:
Tôi muốn được hỗ trợ tư vấn thi công sản phẩm này