Hotline MessengerTrò chuyện cùng Decox Youtube Decoxdesign Facebook Tiktok Instagram Zalo
Menu

Mizuki Park 97m2

Mizuki Park 97m2Nhận báo giá

Thông tin dự án

- Project: Căn hộ Mizuki Park
- Chủ đầu tư: Chị C
- Diện tích 97m2
- Style: Hiện đại
- Vị trí: Nguyễn Văn Linh, Bình Hưng, Bình Chánh, TPHCM

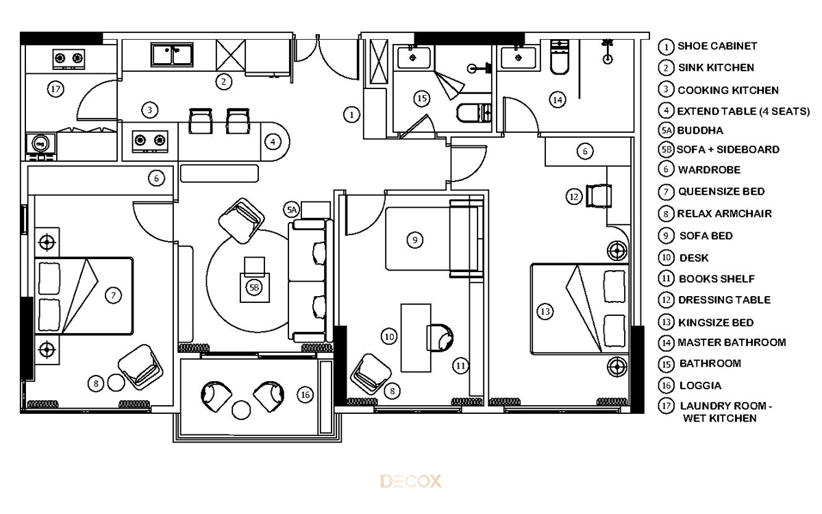
Mặt bằng thiết kế

Mizuki Park 97m2Nhận báo giá

Phong cách thiết kế

Căn hộ chung cư ngày nay là sự lựa chọn hàng đầu của nhiều gia chủ, tựa như những “khối hộp” xếp chồng lên nhau, bài toán mà KTS phải giải quyết chính là tạo ra một không gian sống mang màu sắc cá nhân và phù hợp nhu cầu, mục đích sử dụng của gia chủ. Với căn hộ Mizuki Park, KTS Decox đã đặt trọng tâm thiết kế xoay quanh giá trị công năng, tối ưu nhu cầu sử dụng của từng thành viên trong gia đình, sau đó “gọt dũa” giá trị thẩm mỹ thông qua việc hoàn thiện các mảnh ghép không gian theo phong cách hiện đại với bảng màu trung tính thanh lịch, nhẹ nhàng chủ đạo.
Dựa trên giá trị cốt lõi là lối sống, sinh hoạt thường nhật của gia đình nên KTS đã thiết kế lại sơ đồ mặt bằng, phân chia tỷ lệ không gian, chuyển đổi công năng biến căn hộ 3 phòng ngủ thành 2 phòng ngủ và 1 phòng làm việc. Ngoài ra, với lối sắp xếp cụm phòng khách - bếp - phòng ăn thành một khối không gian mở thống nhất, đồng thời tận dụng ánh sáng trực tiếp thông qua cửa kính nơi ban công, căn hộ với diện tích gần 100m2 giờ đây đã trở nên rộng rãi, thoáng đãng hơn rất nhiều.

Phòng khách

Trong thiết kế nội thất, màu sắc là công cụ bổ trợ đắc lực để truyền tải thông điệp phong cách, cảm xúc thông qua mặt thị giác. Với Mizuki Park, bảng màu trung tính đặc biệt là tone xám nền nã chính là “linh hồn” được sử dụng xuyên suốt các không gian trong tổ ấm. Bằng việc bố trí những nội thất cơ bản như bộ sofa, bàn trà có màu sắc đồng điệu tổng thể và điểm xuyết thêm thảm trải sàn mềm mại, những bức tranh nghệ thuật treo tường và chiếc đèn thả trần đơn giản là đủ để tạo điểm nhấn cho không gian sinh hoạt chung của gia đình.
Mizuki Park 97m2Nhận báo giá
Mizuki Park 97m2Nhận báo giá

Phòng bếp - Phòng ăn

Bằng việc hạn chế các vách ngăn, tạo nên một không gian mở thông thoáng, dòng chảy công năng sẽ trở nên mượt mà hơn. Tuy nhiên, để cụ thể hóa vai trò từng khu vực, KTS đã sử dụng màu sắc để định công năng, đó là sắc xanh của bộ ghế ăn đặt giữa khu vực phòng khách - phòng bếp. Bên cạnh đó, để tối ưu diện tích và không gian, ngoài kiểu bố trí bếp song song: một bên là khu vực bồn rửa cùng hệ tủ lưu trữ, một bên là khu vực bếp nấu kết hợp bàn ăn đầy tiện dụng.
Mizuki Park 97m2Nhận báo giá
Mizuki Park 97m2Nhận báo giá

Phòng làm việc

Là không gian truyền cảm hứng cho khía cạnh tư duy sáng tạo, nên thiết kế phòng làm việc cần đảm bảo sự chỉn chu từ bố cục, nội thất, vật liệu, màu sắc cho đến ánh sáng. Không quá trầm lắng với tone xám đơn điệu, KTS đã khéo léo cân bằng không gian cùng chất liệu gỗ ấm cúng, chất vải mềm mại đồng thời tận dụng tối ưu nguồn sáng tự nhiên để nơi đây luôn tràn ngập nguồn năng lượng tích cực. Thiết kế đáp ứng tính thẩm mỹ và gọn gàng, các chi tiết, nội thất đều được tinh giản để đáp ứng đúng mục đích sử dụng của nơi đây.
Mizuki Park 97m2Nhận báo giá
Mizuki Park 97m2Nhận báo giá
Mizuki Park 97m2Nhận báo giá

Phòng ngủ 1

Tổng thể không gian phòng ngủ đi theo bảng màu trung tính chủ đạo, mang đến sự đồng nhất trong thiết kế. Phòng được trang bị những nội thất cơ bản như giường ngủ, kệ đầu giường, bàn trang điểm và tủ quần áo. Điểm đặc biệt cũng là điểm nhấn cho không gian này phải kể đến việc ốp vách đầu giường tạo hiệu ứng 3D kích thích thị giác.
Mizuki Park 97m2Nhận báo giá
Mizuki Park 97m2Nhận báo giá

Phòng ngủ 2

Hiện đại, tối giản, thanh lịch và tinh tế là những cụm từ “bộc tả” không gian phòng ngủ này. Không chỉ tương đồng theo bảng màu thiết kế tổng thể, việc “giấu” mọi thứ vào trong còn là chìa khóa để không gian riêng tư được rộng rãi và thoải mái nhất.
Mizuki Park 97m2Nhận báo giá
Mizuki Park 97m2Nhận báo giá
Mizuki Park 97m2Nhận báo giá

WC

Khu vực nhà vệ sinh được thiết kế với tiêu chí thẩm mỹ, gọn gàng, tinh tế và tạo cảm giác thư giãn. Với diện tích có phần khiêm tốn, KTS đã chọn lựa vách kính trong suốt để ngăn tách phân khu khô - ướt, đồng thời ốp đá marble trắng tạo cảm giác sang trọng, sạch sẽ và ghi điểm ấn tượng với mảng tường ốp gạch thẻ emerald marble xanh mát.
Mizuki Park 97m2Nhận báo giá
Mizuki Park 97m2Nhận báo giá

Ban công

Khu vực ban công như một khu vườn xanh thu nhỏ để gia chủ có thể ngắm nhìn thành phố, thưởng thức những tách trà hay đơn giản là tìm lại sự cân bằng thông qua việc nhìn ngắm sắc xanh từ cây cối. Và một bộ ghế được đan lát từ mây sẽ vô cùng phù hợp cho những không gian đòi hỏi tính thư giãn cao như thế này.
Mizuki Park 97m2Nhận báo giá
>>Xem thêm: Các mẫu thiết kế nội thất chung cư do Decox thực hiện

Cùng thể loại

Same category

Decox Signature

Collection

Short Video

Decox on tiktok
x

Góc nhìn


x

Thành công!

Decox Design sẽ liên hệ với bạn sớm nhất! OK
x
Thông tin sản phẩm:

Thông tin khách hàng:
Tôi muốn được hỗ trợ tư vấn thi công sản phẩm này