Hotline MessengerTrò chuyện cùng Decox Youtube Decoxdesign Facebook Tiktok Instagram Zalo
Menu

Verona Villa Interior

Thông tin dự án

Dự án: Vinhomes Grand Park Quận 9
Loại hình: Biệt thự
Phong cách: Neo Classic - Tân cổ điển
Thiết kế: Decox

Phong cách thiết kế

Sử dụng hiệu ứng sơn mài và tranh vẽ tay trên những tấm bình phong và vách tường được đo đạc kỹ lưỡng, Decox đã tạo nên một không gian sống độc bản, đậm đà bản sắc dân tộc. Thiết kế nội thất là sự kết hợp hài hòa giữa cổ kính và hiện đại, Á Đông và Tây phương, mang đến vẻ đẹp vừa sang trọng vừa thân thuộc. Điểm nhấn đặc biệt trong thiết kế còn nằm ở việc sử dụng những món đồ nội thất thủ công, tạo nên phong cách sống cá nhân hóa. Những họa tiết dân gian, hình ảnh chim muông, hoa lá và biểu tượng chim hạc mang ý nghĩa tốt lành đều được sắp xếp một cách hài hòa, có chủ đích, tạo nên giá trị tinh tế và đầy nghệ thuật cho tổ ấm.

Trải nghiệm thực tế ảo VR 360 (Vượt trội với kính Facebook Oculus Q3 tại Decox - Tìm hiểu ngay)

Link thực tế ảo công trình tại đây

Mặt bằng thiết kế

Verona Villa InteriorNhận báo giá
Mặt bằng thiết kế biệt thự Verona Villa - Tầng trệt
Verona Villa InteriorNhận báo giá
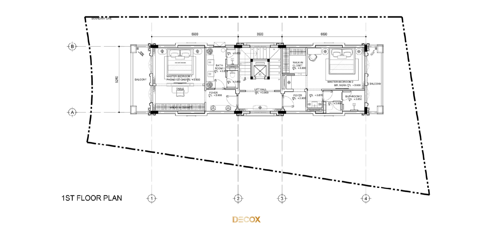
Mặt bằng thiết kế biệt thự Verona Villa - Tầng 1
Verona Villa InteriorNhận báo giá
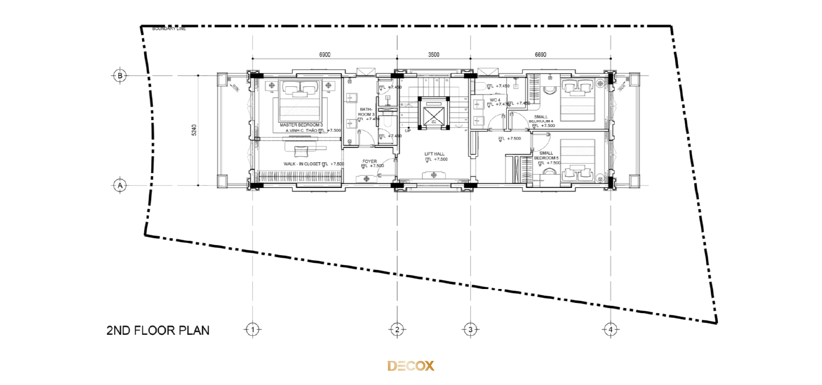
Mặt bằng thiết kế biệt thự Verona Villa - Tầng 2
Verona Villa InteriorNhận báo giá
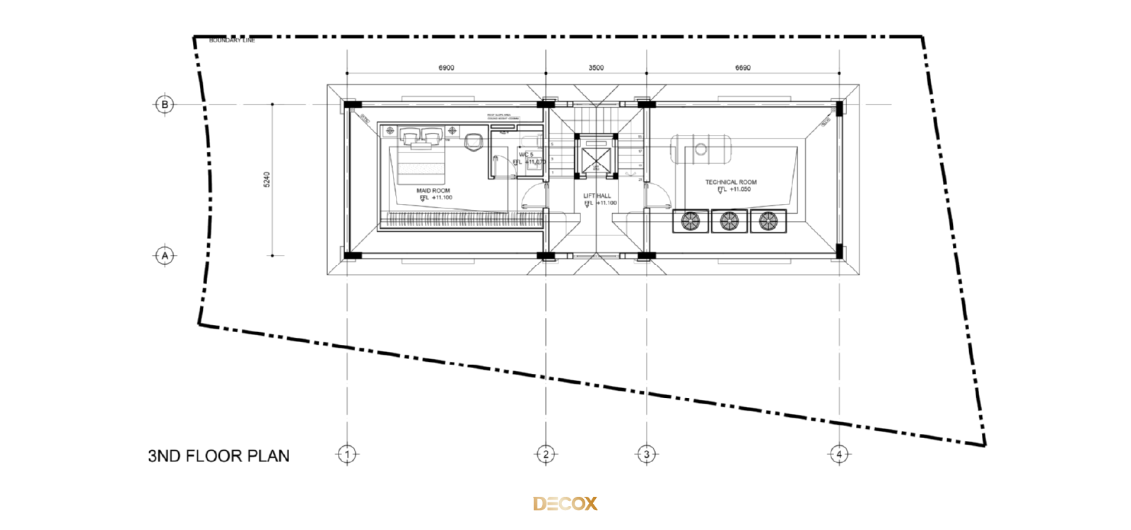
Mặt bằng thiết kế biệt thự Verona Villa - Tầng 3

Phòng khách

Verona Villa InteriorNhận báo giá
Verona Villa InteriorNhận báo giá
Verona Villa InteriorNhận báo giá
Verona Villa InteriorNhận báo giá
Verona Villa InteriorNhận báo giá
Verona Villa InteriorNhận báo giá
Verona Villa InteriorNhận báo giá

Phòng ăn

Verona Villa InteriorNhận báo giá
Verona Villa InteriorNhận báo giá
Verona Villa InteriorNhận báo giá

Phòng bếp

Verona Villa InteriorNhận báo giá
Verona Villa InteriorNhận báo giá
Verona Villa InteriorNhận báo giá
Verona Villa InteriorNhận báo giá

Phòng ngủ 1

Verona Villa InteriorNhận báo giá
Verona Villa InteriorNhận báo giá
Verona Villa InteriorNhận báo giá
Verona Villa InteriorNhận báo giá
Verona Villa InteriorNhận báo giá
Verona Villa InteriorNhận báo giá
Verona Villa InteriorNhận báo giá
Verona Villa InteriorNhận báo giá
Verona Villa InteriorNhận báo giá

Phòng ngủ 2

Verona Villa InteriorNhận báo giá
Verona Villa InteriorNhận báo giá
Verona Villa InteriorNhận báo giá
Verona Villa InteriorNhận báo giá
Verona Villa InteriorNhận báo giá
Verona Villa InteriorNhận báo giá
Verona Villa InteriorNhận báo giá

Phòng ngủ 3

Verona Villa InteriorNhận báo giá
Verona Villa InteriorNhận báo giá
Verona Villa InteriorNhận báo giá
Verona Villa InteriorNhận báo giá
Verona Villa InteriorNhận báo giá
Verona Villa InteriorNhận báo giá
Verona Villa InteriorNhận báo giá
Verona Villa InteriorNhận báo giá

Phòng ngủ 4

Verona Villa InteriorNhận báo giá
Verona Villa InteriorNhận báo giá
Verona Villa InteriorNhận báo giá

Phòng ngủ 5

Verona Villa InteriorNhận báo giá
Verona Villa InteriorNhận báo giá
Verona Villa InteriorNhận báo giá

WC chung

Verona Villa InteriorNhận báo giá
Verona Villa InteriorNhận báo giá
Verona Villa InteriorNhận báo giá
>> Xem thêm: BST Thiết kế nội thất biệt thự sang trọng, cao cấp

Cùng thể loại

Same category

Decox Signature

Collection

Short Video

Decox on tiktok
x

Góc nhìn


x

Thành công!

Decox Design sẽ liên hệ với bạn sớm nhất! OK
x
Thông tin sản phẩm:

Thông tin khách hàng:
Tôi muốn được hỗ trợ tư vấn thi công sản phẩm này