Hotline MessengerTrò chuyện cùng Decox Youtube Decoxdesign Facebook Tiktok Instagram Zalo
Menu

Biệt thự song lập Waterpoint 134m2

Biệt thự song lập Waterpoint 134m2Nhận báo giá

Tổng quan dự án Khu đô thị Waterpoint

Chủ đầu tư: Nam Long Group
Diện tích đất: 355 ha
Chức năng dự án: Nhà phố vườn, Nhà phố thương mại, Biệt thự song lập, Biệt thự đơn lập, Đất nền Dinh thự
Vị trí: Bến Lức, Long An

Chi tiết dự án thiết kế nội thất biệt thự Waterpoint 134m2

Chủ đầu tư: Anh T
Loại hình: Biệt thự song lập
Diện tích thiết kế: 134m2

Mặt bằng thiết kế

Biệt thự song lập Waterpoint 134m2Nhận báo giá
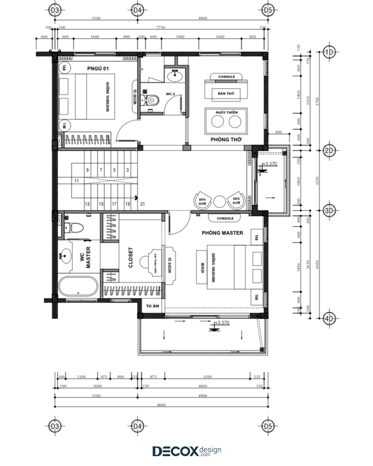
Mặt bằng thiết kế nội thất biệt thự song lập Waterpoint - Tầng 1
Biệt thự song lập Waterpoint 134m2Nhận báo giá
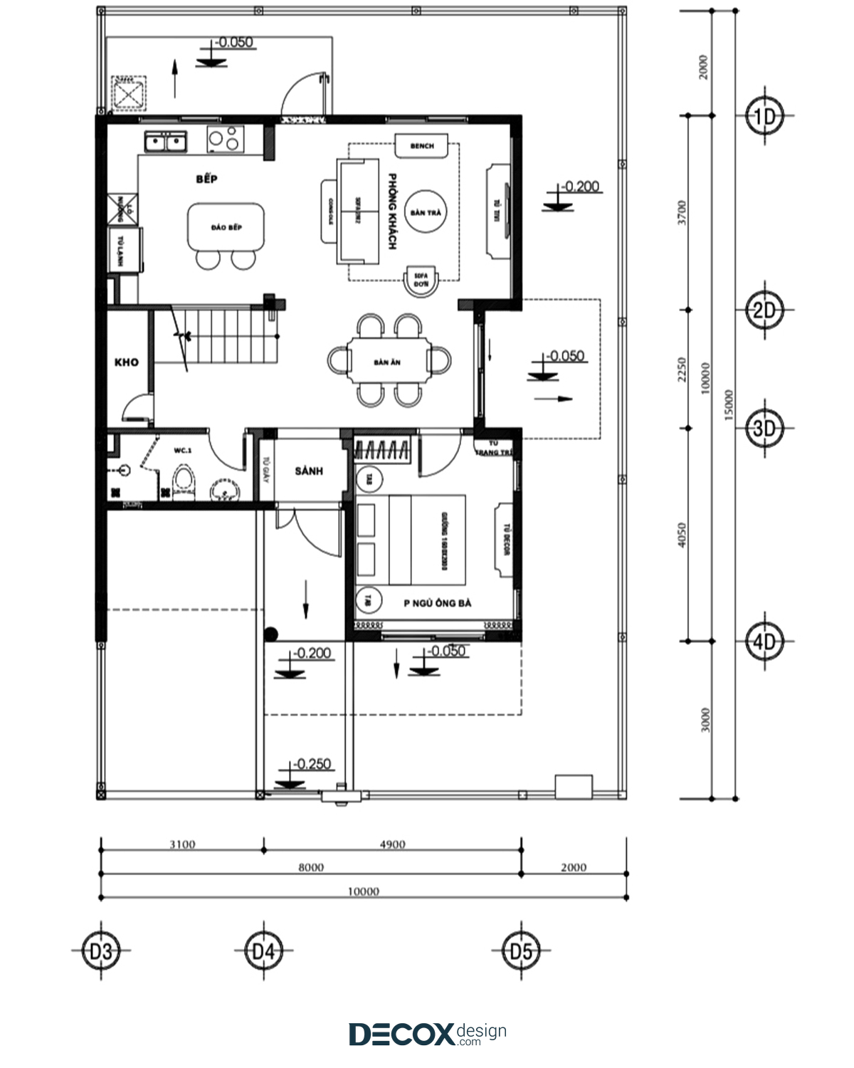
Mặt bằng thiết kế nội thất biệt thự song lập Waterpoint - Tầng 2

Phong cách thiết kế

Với kết cấu 1 trệt 1 lầu cộng hưởng cùng hệ mái ngói hơi hướng Á Đông, kiến trúc biệt thự mang đến nét đẹp hiện đại, thanh lịch nhưng cũng không kém phần bình dị, mộc mạc theo đúng tinh thần của một tổ ấm nghỉ dưỡng. Do ngoại thất đã được chủ đầu tư định hình từ trước, nên việc thiết kế nội thất sao cho dung hòa giữa sở thích, ý muốn gia chủ và kiến trúc biệt thự là bài toán được đặt ra cho các KTS của Decox Design. Để giải bài toán này, Decox đã chọn lựa ứng dụng phong cách nội thất hiện đại kết hợp cùng cách phối trộn màu sắc sáng tạo để mang đến một không gian sống cao cấp, ấm cúng và tiện nghi được đúc kết từ những gì đơn giản nhất.
Hiện đại, Lịch thiệp và Ấm cúng là 3 tính từ mô tả chính xác “cá tính” của dự án này. Ngoài tuân theo những nguyên tắc “bất di bất dịch” của phong cách hiện đại, qua cách thể hiện những chi tiết đơn giản mà sắc sảo, tân tiến mà gần gũi thì ý tưởng dùng gam màu nâu (gam màu thường dùng trong các phong cách đề cao tinh thần mộc mạc) để làm màu chủ đạo càng khiến không gian sống vốn trẻ trung lại thêm mới mẻ với bầu không khí nhẹ nhàng, ấm cúng, giàu sức sống.

Phòng khách

Phòng khách sử dụng lối bố trí nội thất đề cao tinh thần tối giản nhưng vẫn giữ được nét duyên dáng với cách sắp đặt quen thuộc: TV đối diện sofa. Không gian sinh hoạt chung này chính là một “góc nhỏ” đầy thân mật để mọi người quây quần, sum họp bên nhau. Thế nên, cách chọn màu và ứng dụng họa tiết ở đây cũng được chọn lọc tỉ mỉ để khiến căn phòng giàu tính tận hưởng và thư giãn hơn. Một điểm sáng tạo trong không gian này chính là phần nền nhà được giật cấp nhẹ và lát gỗ bo cong mềm mại ôm trọn khu vực phòng khách. Cách thiết kế này đem đến một điểm nhấn đầy táo bạo, chi tiết đó giống như ranh giới ước lệ để khu biệt phòng khách và các không gian khác. Mặt khác, giống như lớp layer giúp phòng khách trông khác biệt và nổi bật hơn.
Biệt thự song lập Waterpoint 134m2Nhận báo giá
Biệt thự song lập Waterpoint 134m2Nhận báo giá
Biệt thự song lập Waterpoint 134m2Nhận báo giá
Biệt thự song lập Waterpoint 134m2Nhận báo giá
Biệt thự song lập Waterpoint 134m2Nhận báo giá

Phòng ăn

Bàn ăn được bố trí cạnh lối ra vào và phòng khách, đồng thời đặt đối diện cửa sổ đem đến một không gian mở đầy kết nối và thoáng, sáng cho những trải nghiệm sinh hoạt tuyệt vời. Với cách lựa chọn nội thất bám sát tinh thần hiện đại, chất liệu được lựa chọn là mặt bàn đá và ghế ăn bọc da sang trọng. Những đường nét uyển chuyển từ bộ bàn dưới ánh đèn lung linh dường như càng gia tăng thêm tính lãng mạn và gần gũi cho góc riêng không thể thiếu bầu không khí ấm cúng này. Cộng hưởng với vẻ đẹp nghệ thuật từ bức tranh đầy ấn tượng sau bàn ăn khiến mọi thứ ở gian phòng này dù đơn giản nhưng không hề đơn điệu, vẫn rất phá cách và giàu điểm nhấn.
Biệt thự song lập Waterpoint 134m2Nhận báo giá
Biệt thự song lập Waterpoint 134m2Nhận báo giá
Biệt thự song lập Waterpoint 134m2Nhận báo giá
Biệt thự song lập Waterpoint 134m2Nhận báo giá

Phòng bếp

Căn bếp sáng sủa và giàu sinh khí khi đặt cạnh cửa sổ hướng ra sân vườn xanh mát. Sự tinh tươm của nơi giữ lửa còn thể hiện qua nghệ thuật bày trí nội thất. Sử dụng kệ bếp chữ L là phương pháp có thể cân bằng được tính tiện dụng và thoải mái trong một căn bếp hiện đại. Ngoài ra việc lựa chọn kiểu dáng và chất liệu nội thất phù hợp cũng rất quan trọng. Ví dụ ở đây, để tăng thêm tính tiện nghi cho nơi nấu nướng thì các chất liệu hiện đại như đá tự nhiên hay acrylic đã được lựa chọn.
Bếp tuy đơn giản nhưng đậm nét độc đáo riêng, trong đó phải kể đến chiếc bàn đảo kiêm quầy bar mini. Bàn đảo được đặt giữa lối đi một cách đầy ngụ ý với mục đích vừa để phân tách vừa để liên kết không gian. Cách làm này quả thật không mới nhưng đối với lối thiết kế hiện đại lại rất có ưu điểm.
Biệt thự song lập Waterpoint 134m2Nhận báo giá
Biệt thự song lập Waterpoint 134m2Nhận báo giá
Biệt thự song lập Waterpoint 134m2Nhận báo giá

Phòng ngủ master

Phòng ngủ master là không gian tích hợp 2 trong 1 gồm khu vực nghỉ ngơi, thư giãn và phòng thay đồ. Căn phòng đề cao tính công năng và tiện nghi khi chú trọng đầu tư hệ thống nội thất cao cấp. Để không gian này không lệch tone với nội thất tổng thể thì mỗi đồ vật ở đây đều lựa chọn theo nguyên tắc: Hiện Đại - Tối Giản - Tiện Dụng.
Biệt thự song lập Waterpoint 134m2Nhận báo giá
Biệt thự song lập Waterpoint 134m2Nhận báo giá
Biệt thự song lập Waterpoint 134m2Nhận báo giá
Biệt thự song lập Waterpoint 134m2Nhận báo giá
Phòng thay đồ được ngăn cách với khu vực giường ngủ qua ranh giới giả lập được công năng hóa thành kệ chứa đồ và bàn trang điểm. Phòng thay đồ có diện tích nhỏ nên các mảng tường đều được lắp tủ nhiều ngăn full trần để tăng tiết kiệm diện tích và tăng không gian lưu trữ.
Biệt thự song lập Waterpoint 134m2Nhận báo giá
Biệt thự song lập Waterpoint 134m2Nhận báo giá

Phòng ngủ ông bà

Không gian phòng ngủ được decor đơn giản nhưng đậm chất trang nhã và ấm cúng rất phù hợp cho ông bà sử dụng. Để tạo tính kết nối giữa các không gian thì KTS đã cố tình sử dụng nhiều chi tiết tương đồng để ứng dụng trang trí cho gian phòng này. Thiết kế phòng ngủ sử dụng gam màu thanh nhã và chủ trương bày trí đơn giản, đủ dùng, lấy giường ngủ là trọng tâm, xung quanh bổ sung thêm một ít nội thất vào trang trí với mục đích vừa có thể làm đầy không gian vừa xây dựng sự thẩm mỹ và tiện nghi cần có cho không gian sống.
Biệt thự song lập Waterpoint 134m2Nhận báo giá
Biệt thự song lập Waterpoint 134m2Nhận báo giá
Biệt thự song lập Waterpoint 134m2Nhận báo giá

Phòng ngủ nhỏ

Do diện tích phòng có phần khiêm tốn, vậy nên để kiến tạo nên một không gian thẩm mỹ nhưng vẫn đảm bảo tiện nghi cho người sử dụng KTS đã ứng dụng lối bố trí tối giản với nội thất kiểu dáng đơn giản, nhỏ gọn. Tuy nội thất chỉ gồm giường ngủ, hai tủ đầu giường và tủ quần áo thế nhưng căn phòng vẫn tỏa được sức hút riêng biệt nhờ cách phối trộn màu sắc và ánh sáng đầy khéo léo. Ngoài sắc trung tính đóng vai trò chủ đạo, sắc nâu nhẹ nhàng đồng điệu với các không gian khác cũng được ứng dụng để nhấn điểm khu vực đầu giường. Mặt khác, để căn phòng trông rộng, thoáng hơn so với diện tích thực thì yếu tố ánh sáng đã được tận dụng triệt để, từ ánh sáng tự nhiên thông qua khung cửa sổ lớn, hệ đèn âm trần cùng cấp độ sáng cho phòng cùng đèn thả trần và đèn led hắt điểm có tác dụng trang trí, vỗ về những giấc ngủ ngon.
Biệt thự song lập Waterpoint 134m2Nhận báo giá
Biệt thự song lập Waterpoint 134m2Nhận báo giá

Phòng thờ

Phòng thờ là không gian mang đậm cá tính truyền thống tưởng chừng sẽ khó hòa hợp với phong cách hiện đại của tổng thể. Thế nhưng qua những thủ pháp thiết kế linh hoạt, không gian thờ phụng của dự án này vẫn hiện lên trang trọng, uy nghiêm và giữ được nét duyên truyền thống. Song song đó thì nhờ tinh thần giản dị trong các chọn lựa nội thất và ứng dụng màu sắc lại khiến vẻ hiện đại quay trở lại không gian này theo một cách tinh tế, ý nhị hơn.
Biệt thự song lập Waterpoint 134m2Nhận báo giá
Biệt thự song lập Waterpoint 134m2Nhận báo giá
Biệt thự song lập Waterpoint 134m2Nhận báo giá
Biệt thự song lập Waterpoint 134m2Nhận báo giá
>>Tham khảo: BST Các dự án thiết kế nội thất biệt thự hiện đại, cao cấp

Cùng thể loại

Same category

Decox Signature

Collection

Short Video

Decox on tiktok
x

Góc nhìn


x

Thành công!

Decox Design sẽ liên hệ với bạn sớm nhất! OK
x
Thông tin sản phẩm:

Thông tin khách hàng:
Tôi muốn được hỗ trợ tư vấn thi công sản phẩm này