Hotline MessengerTrò chuyện cùng Decox Youtube Decoxdesign Facebook Tiktok Instagram Zalo
Menu

The Beverly Solari

Thông tin dự án

- Dự án: Căn hộ The Beverly Solari - Vinhomes Grand Park
- Chủ đầu tư: Ms. Y
- Diện tích: 70m2
- Phong cách: Hiện đại
- Thiết kế & Thi công: Decox

Phong cách thiết kế

The Beverly Solari - một căn hộ 2 phòng ngủ thuộc khu đô thị cao cấp Vinhomes Grand Park do Decox làm đơn vị thiết kế thi công trọn gói. Tổ ấm được định hình bằng ngôn ngữ hiện đại, đơn giản trong đường nét nhưng vẫn truyền tải được chất thơ, nhẹ nhàng và sâu lắng thông qua sự tỉ mỉ trong từng chi tiết, từng góc nhà. Tổng thể ngôi nhà là sự tinh tế, thanh lịch của bảng màu trung tính, là sự cao cấp của chất liệu và nội thất may đo, đáp ứng theo sở thích và mục đích sử dụng của gia chủ. Cùng Decox ngắm nhìn bộ ảnh thi công nội thất thực tế của công trình này nhé.

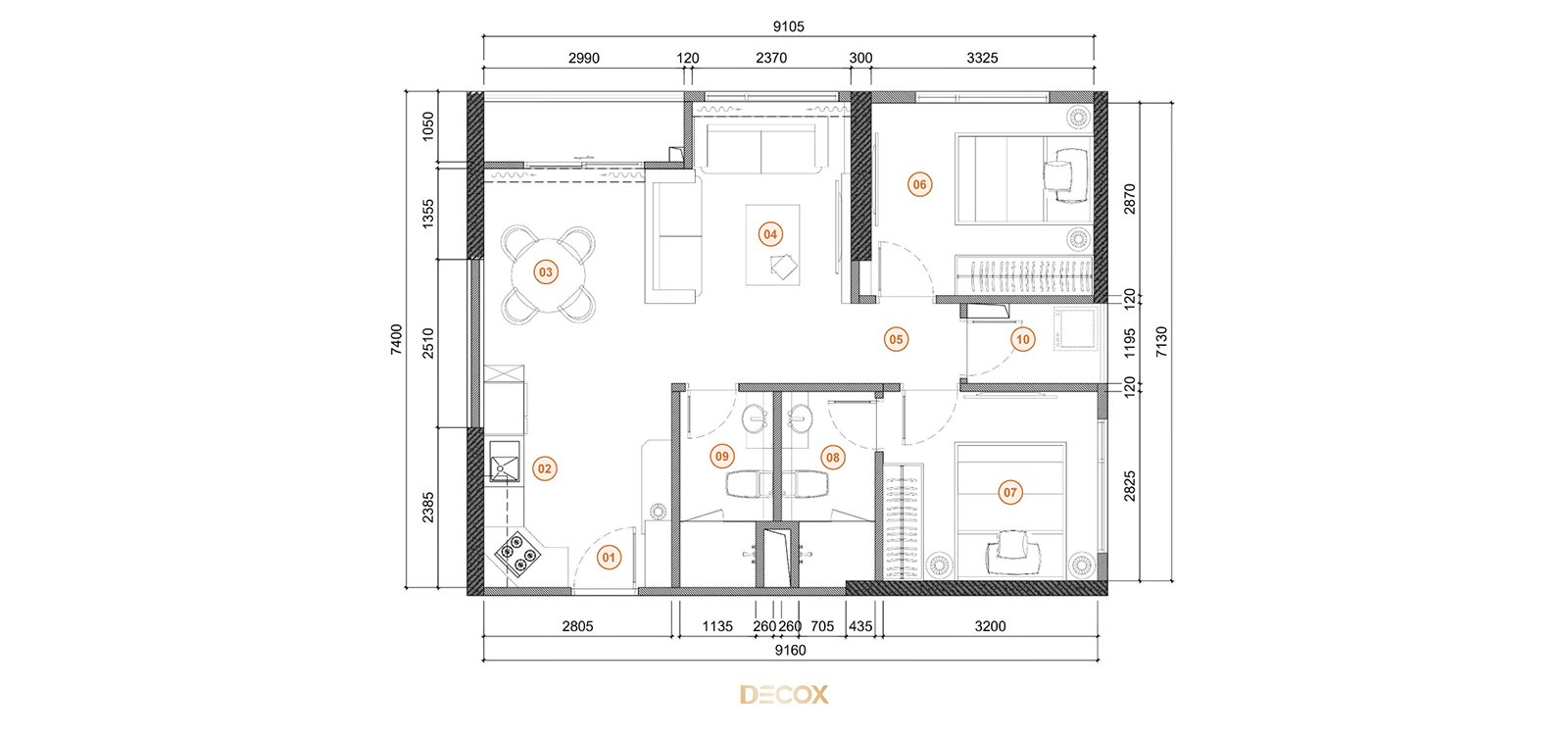
Mặt bằng thiết kế

The Beverly Solari 70m2 - Hình ảnh thực tếNhận báo giá

Phòng khách

The Beverly Solari 70m2 - Hình ảnh thực tếNhận báo giá
The Beverly Solari 70m2 - Hình ảnh thực tếNhận báo giá
The Beverly Solari 70m2 - Hình ảnh thực tếNhận báo giá
The Beverly Solari 70m2 - Hình ảnh thực tếNhận báo giá
The Beverly Solari 70m2 - Hình ảnh thực tếNhận báo giá
The Beverly Solari 70m2 - Hình ảnh thực tếNhận báo giá

Phòng ăn

The Beverly Solari 70m2 - Hình ảnh thực tếNhận báo giá
The Beverly Solari 70m2 - Hình ảnh thực tếNhận báo giá
The Beverly Solari 70m2 - Hình ảnh thực tếNhận báo giá
The Beverly Solari 70m2 - Hình ảnh thực tếNhận báo giá
The Beverly Solari 70m2 - Hình ảnh thực tếNhận báo giá
The Beverly Solari 70m2 - Hình ảnh thực tếNhận báo giá

Phòng bếp

The Beverly Solari 70m2 - Hình ảnh thực tếNhận báo giá

Phòng ngủ master

The Beverly Solari 70m2 - Hình ảnh thực tếNhận báo giá
The Beverly Solari 70m2 - Hình ảnh thực tếNhận báo giá
The Beverly Solari 70m2 - Hình ảnh thực tếNhận báo giá
The Beverly Solari 70m2 - Hình ảnh thực tếNhận báo giá
The Beverly Solari 70m2 - Hình ảnh thực tếNhận báo giá

Phòng ngủ nhỏ

The Beverly Solari 70m2 - Hình ảnh thực tếNhận báo giá
The Beverly Solari 70m2 - Hình ảnh thực tếNhận báo giá
The Beverly Solari 70m2 - Hình ảnh thực tếNhận báo giá

WC chung

The Beverly Solari 70m2 - Hình ảnh thực tếNhận báo giá
The Beverly Solari 70m2 - Hình ảnh thực tếNhận báo giá
>> Xem thêm nhiều dự án thiết kế nội thất căn hộ Vinhomes Grand Park do Decox đã thực hiện tại: https://decoxdesign.com/thiet-ke-noi-that-vinhomes-grand-park

Cùng thể loại

Same category

Decox Signature

Collection

Short Video

Decox on tiktok
x

Góc nhìn


x

Thành công!

Decox Design sẽ liên hệ với bạn sớm nhất! OK
x
Thông tin sản phẩm:

Thông tin khách hàng:
Tôi muốn được hỗ trợ tư vấn thi công sản phẩm này