Hotline MessengerTrò chuyện cùng Decox Youtube Decoxdesign Facebook Tiktok Instagram Zalo
Menu

Nhà Triền Dốc

Có khi nào bạn nghĩ rằng mình sẽ sống trong căn nhà nằm ở một con dốc thoải và cao hay không? Hoặc có khi nào bạn suy nghĩ nếu một căn nhà nằm trên con dốc như thế thì sẽ được thiết kế như thế nào hay không? Hãy để Decox Design giới thiệu cho bạn một thiết kế vô cùng đặc sắc của KTS Nguyễn Đặng Anh Dũng về ngôi nhà nằm ở giữa lưng chừng con dốc thoải được đặt tên là “Nhà triền dốc”.

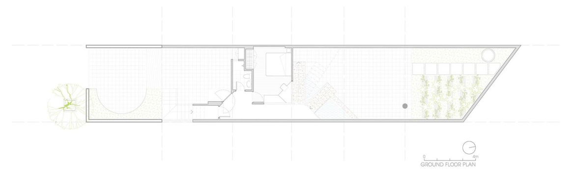
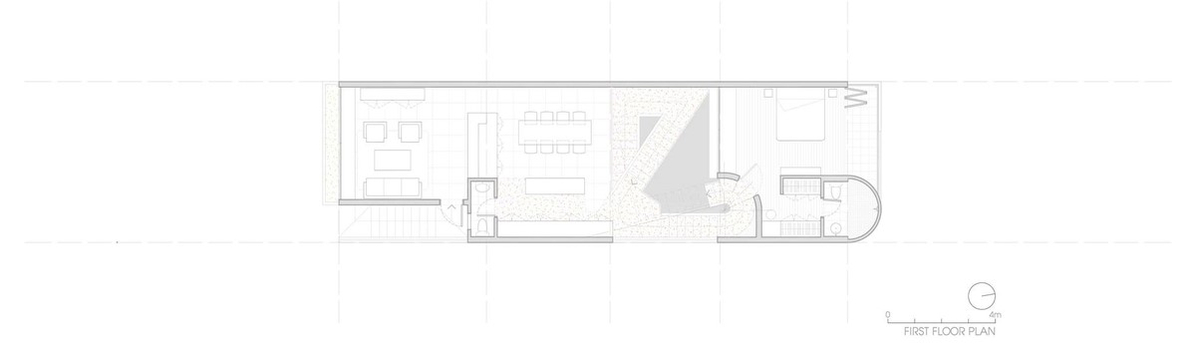
Mặt bằng thiết kế

Nhà Triền DốcNhận báo giá
Nhà Triền DốcNhận báo giá
Nhà Triền DốcNhận báo giá

Kiến trúc

Nhà Triền DốcNhận báo giá
Nhà Triền DốcNhận báo giá
Nhà Triền DốcNhận báo giá
Một điểm nhấn kiến trúc của Nhà triền dốc chính là thiết kế cầu thang rất đặc biệt. Các thành viên trong gia đình có thể vào nhà bằng 2 lối cầu thang riêng biệt phân chia không gian chung và không gian cá nhân của gia đình. Một lối cầu thang dành cho không gian chung ở phía trước, một lối cầu thang phía sau chỉ để dành cho trong gia đình sử dụng, khi các thành viên của gia đình dùng lối cầu thang này thì sẽ luôn đi ngang qua phòng của người ông ở tầng trệt để thăm hỏi. Đây là một thiết kế rất tinh tế mang ý nghĩa mong muốn tất cả mọi người đều có thể quan tâm đến những thế hệ trên trong nhà.
Nhà Triền DốcNhận báo giá
Nhà Triền DốcNhận báo giá
Nhà Triền DốcNhận báo giá
Nhà Triền DốcNhận báo giá
Nhà Triền DốcNhận báo giá
Nhà Triền DốcNhận báo giá
Nhà Triền DốcNhận báo giá

Nội thất

Bố trí đơn giản kết hợp với trần mái ngói tạo cảm giác xưa cũ, hoài cổ. Hệ thống sửa sổ sát đất bằng kính thủy tinh trong suốt giúp căn nhà luôn nhận được đầy đủ ánh sáng tự nhiên.
Nhà Triền DốcNhận báo giá
Nhà Triền DốcNhận báo giá
Nhà Triền DốcNhận báo giá
Phòng bếp ở lầu hai là nơi gắn kết các thành viên gia đình trong các bữa ăn cùng nhau. Phòng bếp được thiết kế gọn gàng và đơn giản với các gam màu tối nhã nhặn. Đặc biệt quầy bar được chế tác bằng cùng một chất liệu đá với cầu thang tạo nên cảm giác hoàn chỉnh và thống nhất về tổng thể.
Nhà Triền DốcNhận báo giá
Nhà Triền DốcNhận báo giá
Nhà Triền DốcNhận báo giá
Nhà Triền DốcNhận báo giá
Nhà Triền DốcNhận báo giá
Bởi đây là tổ ấm của một gia đình 3 thế hệ, gồm ông - bố mẹ - con cái. Chủ đầu tư yêu cầu phòng ngủ chính được đặt ở vị trí trung tâm từ đó có thể quan sát bao quát hết được tất cả những hoạt động của những thành viên khác trong gia đình từ con nhỏ cho đến người ông ở tầng dưới, có thể thấy tất cả đều xuất phát từ dụng tâm lo lắng cho từng thành viên trong gia đình đã góp phần khiến cho kiến trúc của Nhà triền dốc trở nên độc đáo nhưng đầy tâm ý.
Nhà Triền DốcNhận báo giá
Bởi các thiết kế kiến trúc quá mức tinh tế đã trở thành một điểm nhấn đặc sắc thế nên nội thất của các không gian chức năng thường đi theo phong cách đơn giản, tinh gọn và tối giản nhưng vẫn hài hòa tuyệt đối với tổng thể căn nhà.
Nhà Triền DốcNhận báo giá
Nhà Triền DốcNhận báo giá
Nhà Triền DốcNhận báo giá
Nhà Triền DốcNhận báo giá
Nhà Triền DốcNhận báo giá
Bên cạnh đó thiết kế cầu thang của có tính thẩm mỹ rất cao khi mà bậc thang bắt đầu ở tầng dưới và bậc thang kết thúc ở tầng trên đều nằm trên một vị trí đối xứng trên dưới như những đường thẳng song song. Điều này đã tạo nên một lợi thế rất lớn cho lối thiết kế thông tầng khi mà có thể tiết kiệm không gian tối đa và dành thêm khoảng trống cho lõi thông tầng của căn nhà. Nhờ vào đặc điểm ấy mà cấu trúc căn nhà trở nên linh hoạt hơn và kết nối toàn bộ công trình.
Nhà Triền DốcNhận báo giá
Nhà Triền DốcNhận báo giá
Nhà Triền DốcNhận báo giá
Nhà Triền DốcNhận báo giá
Nhà Triền DốcNhận báo giá
Nhà Triền DốcNhận báo giá

Cùng thể loại

Same category

Decox Signature

Collection

Short Video

Decox on tiktok
x

Góc nhìn


x

Thành công!

Decox Design sẽ liên hệ với bạn sớm nhất! OK
x
Thông tin sản phẩm:

Thông tin khách hàng:
Tôi muốn được hỗ trợ tư vấn thi công sản phẩm này