99+ Mẫu nhà ống 2 tầng mái thái 5x20m đẹp tiện nghi nhất
- 27-03-2026
- Lượt xem: 1142
Nội dung chính
- Đặc trưng cơ bản của kiểu nhà ống 2 tầng mái thái 5x20m
- Bản vẽ thiết kế mẫu nhà ống 2 tầng 5x20m mái Thái đẹp
- 99+ mẫu nhà ống 2 tầng mái thái 5x20m đẹp tiện nghi nhất
- Mẫu nhà ống 2 tầng mái Thái 5x20m 3 phòng ngủ
- Mẫu thiết kế nhà mái Thái 2 tầng 5x20 4 phòng ngủ
- Mẫu thiết kế nhà ống 2 tầng mái Thái 5x20m có sân vườn
- Mẫu nhà 5x20 2 tầng 1 tum mái Thái phong cách hiện đại
- Mẫu nhà ống 2 tầng mái Thái 5x20m có gara ô tô
- Mẫu thiết kế nhà ống 2 tầng mái Thái 5x20m phong cách tân cổ điển
- Mẫu nhà ống 2 tầng mái Thái 5x20m có giếng trời/thông tầng
- Mẫu nhà ống mái Thái 2 tầng 5x20m có 2 mặt tiền
- Những lưu ý khi làm nhà ống 2 tầng mái thái 5x20m bạn nên biết
- Decox - Đơn vị chuyên về thiết kế, thi công xây dựng kiến trúc và nội thất nhà ống 2 tầng mái thái 5x20m
Mẫu nhà ống 2 tầng mái Thái 5x20m đang dẫn đầu xu hướng nhà ở hiện nay, khi ngày càng nhiều gia đình tìm kiếm sự tinh gọn nhưng vẫn sang trọng trong không gian sống. Kiểu mái Thái với độ dốc thanh thoát không chỉ tạo nên vẻ đẹp cân đối mà còn giúp chống nóng, thoát nước hiệu quả, rất phù hợp với khí hậu Việt Nam. Kết hợp cùng mặt bằng 5x20m phổ biến, thiết kế này mang lại sự tiện nghi, thông thoáng và hiện đại, phản ánh gu sống tinh tế của gia chủ hiện nay.
>> Xem thêm:
-
34+ Mẫu nhà 2 tầng mái Thái 100m2 đơn giản, hiện đại xu hướng 2026
-
Mẫu thiết kế nhà ống 2 tầng mái Thái mặt tiền 5m đẹp, hiện đại
Đặc trưng cơ bản của kiểu nhà ống 2 tầng mái thái 5x20m
Nhà mái Thái 2 tầng 5x20m sở hữu kích thước phổ biến, dễ dàng thích ứng với nhiều lô đất đô thị hiện nay. Kiểu mái Thái tạo dáng thanh thoát, giúp ngôi nhà chống nóng tốt, thoát nước nhanh và mang lại vẻ thẩm mỹ cân đối, hợp phong thủy.
Với chiều ngang hẹp đặc trưng, thiết kế nhà ống 2 tầng mái thái 5x20m thường bổ sung giếng trời hoặc thông tầng để tăng sáng và lưu thông không khí tự nhiên. Mặt tiền được chú trọng tạo điểm nhấn qua cửa sổ, ban công, vật liệu và màu sắc, đảm bảo ngôi nhà luôn thoáng, sáng và hiện đại. Nếu gia chủ sở hữu ô tô hoặc nhiều phương tiện, phần gara được bố trí khéo léo phía trước, vừa thuận tiện sử dụng vừa giữ trọn nét hài hòa cho tổng thể kiến trúc.
>> Xem thêm:
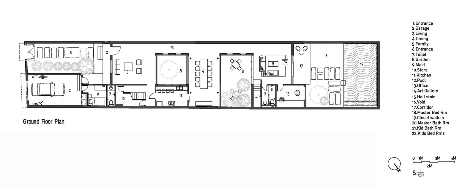
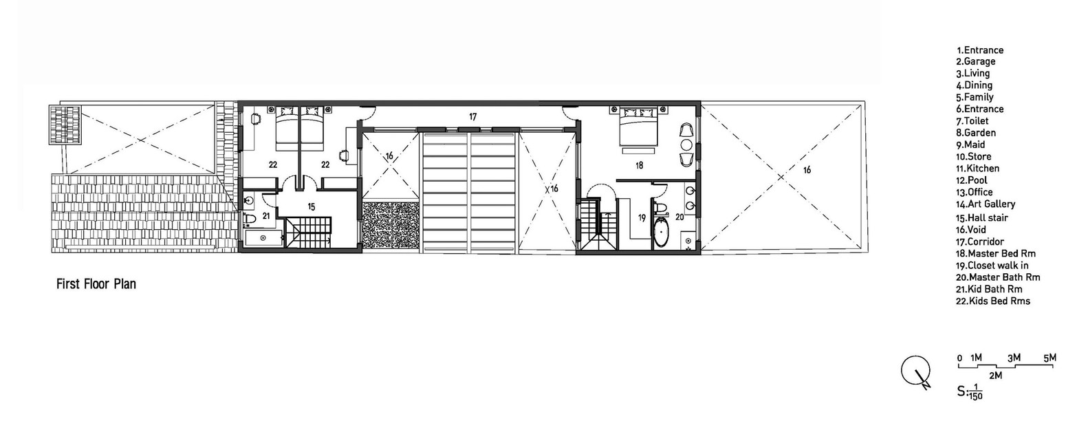
Bản vẽ thiết kế mẫu nhà ống 2 tầng 5x20m mái Thái đẹp
Bản vẽ nhà ống 2 tầng 5x20m mái Thái mang đến hình dung rõ nét về một không gian sống tiện nghi, nơi mỗi mét vuông đều được tính toán tinh tế cho sự thoải mái và riêng tư. Từng đường nét kiến trúc gợi cảm giác ấm cúng, hiện đại và phản chiếu phong cách sống của gia chủ trong nhịp sống đô thị hôm nay.
>> Xem thêm:
-
15+ Mẫu bản vẽ nhà 2 tầng, đẹp, đơn giản (có bản thiết kế AutoCAD + 3D)
-
TOP 65+ các mẫu nhà 2 tầng thiết kế đẹp, có bản vẽ hiện đại 2026
-
15+ Mẫu mặt tiền nhà phố 2 tầng đẹp kèm thiết kế bản vẽ phối cảnh hiện đại
99+ mẫu nhà ống 2 tầng mái thái 5x20m đẹp tiện nghi nhất
Mẫu nhà ống 2 tầng mái Thái 5x20m 3 phòng ngủ
Mẫu nhà ống 2 tầng mái Thái 5x20m 3 phòng ngủ nổi bật với hình khối kiến trúc cân đối, mái Thái giật cấp thanh thoát và tông màu ngoại thất trang nhã. Mặt tiền thường sử dụng vật liệu hiện đại như kính cường lực, gỗ nhựa hoặc đá ốp, vừa tăng tính thẩm mỹ vừa giúp công trình bền vững theo thời gian. Mẫu nhà mái Thái 3 phòng ngủ có bố cục được sắp xếp khoa học, mang lại không gian sống tiện nghi, riêng tư và tràn ngập ánh sáng tự nhiên.
>> Xem thêm: 45+ Mẫu nhà mái thái 1 tầng 3 phòng ngủ đẹp, hiện đại ở Việt Nam
Mẫu thiết kế nhà mái Thái 2 tầng 5x20 4 phòng ngủ
Mẫu nhà mái Thái 2 tầng 4 phòng ngủ mang vẻ đẹp hiện đại pha chút sang trọng, với mái Thái giật cấp tinh tế và mặt tiền thoáng rộng. Gam màu sáng nhẹ kết hợp cùng vật liệu kính, đá ốp hoặc lam gỗ tạo nên tổng thể thanh lịch, bền vững và gần gũi với thiên nhiên. Không gian được bố trí 4 phòng ngủ tiện nghi, phù hợp cho gia đình nhiều thế hệ, đảm bảo sự riêng tư và thoải mái trong từng khu vực sinh hoạt.
>> Xem thêm:
-
25+ Mẫu nhà 2 tầng 4 phòng ngủ 100m2 đẹp, full bản vẽ tối ưu công năng
-
50+ Mẫu nhà mái Thái 4 phòng ngủ cấp 4, 1 tầng, 2 tầng đẹp, hiện đại
Mẫu thiết kế nhà ống 2 tầng mái Thái 5x20m có sân vườn
Mẫu nhà ống 2 tầng mái Thái 5x20m có sân vườn mang đến không gian sống hài hòa giữa kiến trúc và thiên nhiên. Phần mái Thái giật cấp thanh thoát kết hợp cùng sân vườn xanh mát phía trước hoặc bên hông giúp ngôi nhà luôn thông thoáng, gần gũi và tràn đầy sinh khí. Màu sơn nhẹ, vật liệu tự nhiên như gỗ, đá, kính càng tôn lên vẻ tinh tế và cảm giác thư giãn cho tổ ấm.
>> Xem thêm:
-
20+ Mẫu biệt thự nhà vườn mái Thái đẹp, thiết kế hiện đại 2026
-
25+ Mẫu thiết kế sân sau nhà ống có sân vườn, giếng trời đẹp, hiện đại
-
30+ Mẫu thiết kế tiểu cảnh sân vườn đẹp, độc đáo và ấn tượng [2026]
Mẫu nhà 5x20 2 tầng 1 tum mái Thái phong cách hiện đại
Mẫu nhà 5x20 2 tầng 1 tum mái Thái phong cách hiện đại gây ấn tượng với đường nét tối giản, mạch lạc và bố cục hình khối mạnh mẽ. Mái Thái giật cấp kết hợp cùng chất liệu kính, gạch ốp và lam gỗ mang đến diện mạo trẻ trung nhưng vẫn giữ nét sang trọng đặc trưng. Tầng tum vừa giúp mở rộng công năng, vừa tạo điểm nhấn kiến trúc, mang lại cảm giác thoáng sáng và hiện đại cho toàn bộ ngôi nhà.
>> Xem thêm:
-
35+ Mẫu nhà mái Thái 3 tầng đẹp, thiết kế hiện đại, xu hướng 2026 ở Việt Nam
-
25+ Mẫu nhà mái thái 1 tầng, cấp 4 đẹp, thiết kế hiện đại, đơn giản
-
99+ Mẫu nhà mái Thái đẹp hiện đại, thiết kế đón đầu xu hướng 2026
Mẫu nhà ống 2 tầng mái Thái 5x20m có gara ô tô
Mẫu nhà ống 2 tầng mái Thái 5x20m có gara ô tô được thiết kế hiện đại, chú trọng công năng và sự tiện nghi trong sinh hoạt. Gara được bố trí gọn gàng ở tầng trệt, thuận tiện sử dụng mà vẫn đảm bảo tính thẩm mỹ cho tổng thể mặt tiền. Kiến trúc mái Thái giật cấp kết hợp cùng vật liệu kính và đá ốp giúp ngôi nhà vừa sang trọng, vừa thoáng sáng, thể hiện gu sống tinh tế của gia chủ.
>> Xem thêm:
-
[30+] Mẫu nhà mái thái 2 tầng đẹp được lựa chọn nhiều nhất 2026
-
15+ Mẫu mặt tiền nhà ống 2 tầng đẹp, hiện đại, thiết kế đơn giản
-
99+ Mẫu nhà ống 2 tầng đẹp, thiết kế hiện đại 2026, giá tối ưu
Mẫu thiết kế nhà ống 2 tầng mái Thái 5x20m phong cách tân cổ điển
Mẫu nhà 2 tầng phong cách tân cổ điển mái Thái toát lên vẻ đẹp thanh lịch và tinh tế trong từng đường nét kiến trúc. Mặt tiền cân đối với phào chỉ nhẹ, cột giả và ban công uốn cong mềm mại, kết hợp mái Thái giật cấp tạo nên dáng vẻ sang trọng, bền vững theo thời gian. Gam màu trắng – kem chủ đạo cùng vật liệu đá, sắt nghệ thuật và kính giúp ngôi nhà vừa mang hơi thở cổ điển châu Âu, vừa phù hợp với nhịp sống hiện đại.
>> Xem thêm:
-
99+ Mẫu biệt thự 2 tầng tân cổ điển sang trọng, đẹp đẳng cấp nhất
-
99+ Mẫu biệt thự 3 tầng tân cổ điển sang trọng, đẹp đẳng cấp nhất 2026
Mẫu nhà ống 2 tầng mái Thái 5x20m có giếng trời/thông tầng
Mẫu nhà ống 2 tầng mái Thái 5x20m có giếng trời mang đến không gian sống tràn ngập ánh sáng và gió tự nhiên, là yếu tố quan trọng trong thiết kế nhà phố hiện nay. Giếng trời hoặc khoảng thông tầng được bố trí khéo léo ở giữa hoặc cuối nhà, giúp điều hòa không khí, mở rộng tầm nhìn và kết nối các tầng sinh hoạt. Kết hợp cùng mái Thái thanh thoát, mặt tiền hiện đại, ngôi nhà vừa thoáng đãng vừa giữ được vẻ sang trọng, tinh tế.
Mẫu nhà ống mái Thái 2 tầng 5x20m có 2 mặt tiền
Mẫu nhà ống 2 tầng có 2 mặt tiền mái Thái 5x20m có 2 mặt tiền sở hữu lợi thế về vị trí và thẩm mỹ, giúp không gian luôn đón sáng và gió tự nhiên từ hai hướng. Thiết kế mái Thái giật cấp kết hợp cùng những mảng tường kính, lam gỗ hoặc đá ốp mang đến vẻ đẹp hiện đại, sang trọng và bền vững. Đây là lựa chọn lý tưởng cho những lô góc phố, vừa thuận tiện kinh doanh vừa đảm bảo không gian sống riêng tư, đẳng cấp.
>> Xem thêm:
-
30+ Mẫu nhà phố 2 mặt tiền đẹp, hiện đại đón đầu xu hướng thiết kế 2026
-
25+ mẫu nhà 2 tầng mặt tiền 6m hiện đại đẹp, có bản vẽ thiết kế
-
Ngôi nhà vườn mái Thái hiện đại theo phong cách thiền ở Thái Lan có hồ bơi
Những lưu ý khi làm nhà ống 2 tầng mái thái 5x20m bạn nên biết
Để ngôi nhà ống 2 tầng mái Thái 5x20m vừa đẹp, vừa tiện nghi và bền vững theo thời gian, gia chủ nên lưu ý một số kinh nghiệm quan trọng sau:
-
Thiết kế mặt tiền tối ưu ánh sáng và thông gió, tạo sự thông thoáng tự nhiên cho toàn bộ không gian.
-
Cân đối hình khối và tỷ lệ mái, giúp tổng thể hài hòa và tăng giá trị thẩm mỹ.
-
Bổ sung hợp lý các chi tiết lấy sáng, thông gió như giếng trời, lam che hay cửa sổ lớn.
-
Lựa chọn vật liệu chống nóng, cách nhiệt tốt cho mái Thái, đảm bảo sự dễ chịu trong sinh hoạt hàng ngày.
-
Dự trù và quản lý chi phí phát sinh, giúp quá trình thi công diễn ra suôn sẻ, tránh vượt ngân sách.
Decox - Đơn vị chuyên về thiết kế, thi công xây dựng kiến trúc và nội thất nhà ống 2 tầng mái thái 5x20m
Nhà ống 2 tầng mái Thái 5x20m là lựa chọn lý tưởng cho những gia chủ yêu thích không gian sống thanh thoát, tiện nghi và hài hòa với khí hậu Việt Nam. Dù diện tích không quá lớn, nhưng với sự tính toán hợp lý trong thiết kế kiến trúc và bố cục không gian, ngôi nhà vẫn có thể mang đến trải nghiệm sống thoải mái và đẳng cấp.
Nếu bạn đang tìm kiếm một đơn vị thiết kế uy tín để hiện thực hóa ý tưởng nhà ống 2 tầng mái Thái 5x20m, Decox chính là đối tác đáng tin cậy. Decox với đội ngũ chuyên gia hàng đầu, đồng hành trọn vẹn từ chiến lược đầu tư, thiết kế tối ưu đến thi công chuẩn mực, đảm bảo chất lượng và chi phí tối ưu nhất.
Facebook | Tiktok | Youtube
>> Tham khảo thêm:






























































