65+ mẫu nhà 2 tầng đẹp xu hướng 2026
- 19-03-2026
- Lượt xem: 1144
Nội dung chính
- Những đặc trưng của mẫu thiết kế nhà 2 tầng ở Việt Nam
- Các mẫu nhà 2 tầng đẹp, xây dựng theo hệ mái
- Các mẫu nhà 2 tầng đẹp, thiết kế hiện đại đón đầu xu hướng 2026
- Mẫu nhà 2 tầng phong cách hiện đại
- Mẫu nhà 2 tầng đẹp đơn giản
- Mẫu nhà 2 tầng phong cách Tân cổ điển
- Mẫu nhà 2 tầng phong cách Indochine
- Mẫu nhà 2 tầng 4 phòng ngủ đẹp
- Nhà ống 2 tầng 1 tum 3 phòng ngủ giá từ 1 tỷ
- Mẫu nhà 2 tầng 3 phòng ngủ đẹp
- Mẫu nhà 2 tầng 80 - 100m2 đơn giản giá từ 1 tỷ trở lên
- Mẫu nhà 2 tầng 100 - 120m2 đẹp
- Mẫu nhà 2 tầng 120 - 200m2 đẹp nhất
- Mẫu nhà 2 tầng trên 200m2
- Mẫu nhà hình chữ L 2 tầng đẹp giá từ 700 triệu
- Mẫu nhà 2 tầng hình chữ U hiện đại
- Mẫu nhà mặt tiền 5m 2 tầng đẹp
- Mẫu nhà mặt tiền 6m 2 tầng
- Mẫu nhà ống 2 tầng 2 mặt tiền đẹp
- Biệt thự nhà vườn 2 tầng đẹp nhất
- Bản vẽ nhà 2 tầng đẹp tiện nghi từ giá rẻ đến cao cấp
- Các loại hình xây dựng nhà 2 tầng đẹp phổ biến hiện nay
- Cách bố trí nội thất nhà 2 tầng đẹp, tối ưu chi phí nhất có thể bạn chưa biết
- Decox - Đơn vị chuyên về thiết kế thi công nhà 2 tầng đẹp uy tín
Không chạy theo những xu hướng hào nhoáng nhất thời, thiết kế của căn nhà 2 tầng quay về với những giá trị cốt lõi của một tổ ấm: sự an toàn, ấm áp và bền bỉ. Tuy nhiên, thách thức lớn nhất của nhà 2 tầng là giải quyết bài toán về đối lưu không khí và ánh sáng tự nhiên. Vậy làm thế nào nhà 2 tầng vẫn đảm bảo thách thức trên, vừa giữ cho mình sức hút riêng và dễ thích nghi với nhiều nhu cầu sinh hoạt khác nhau cho từng không gian sống?
Cùng Decox, khám phá tư duy thiết kế cho ngôi nhà 2 tầng được xây dựng dựa trên sự phân tách mạch lạc giữa các lớp không gian: nơi chốn sum vầy và khoảng trời riêng tư. Ngôn ngữ kiến trúc tập trung vào tỷ lệ hình khối chuẩn mực và sự chân thật của vật liệu, tạo nên vẻ đẹp thanh lịch, không phô trương nhưng đủ sức neo giữ ánh nhìn. Xem ngay nhé!
>> Xem thêm:
- 101+ Mẫu nhà mái Nhật 2 tầng đẹp hiện đại, thiết kế mới
- 25+ Mẫu nhà 2 tầng 4 phòng ngủ 100m2 đẹp, full bản vẽ
Những đặc trưng của mẫu thiết kế nhà 2 tầng ở Việt Nam
Nhà 2 tầng là loại hình nhà ở phổ biến tại Việt Nam nhờ khả năng tận dụng diện tích hiệu quả về cách tổ chức không gian, giải pháp kiến trúc và thói quen sinh hoạt, phản ánh rõ nhu cầu sử dụng thực tế cũng như yếu tố văn hóa của gia đình Việt.
-
Không gian được tổ chức theo tầng rõ ràng, trong đó tầng dưới chủ yếu phục vụ sinh hoạt chung như phòng khách, phòng bếp – ăn; tầng trên dành cho nghỉ ngơi và thờ cúng, đảm bảo sự riêng tư và yên tĩnh.
-
Thiết kế chú trọng thích ứng với khí hậu nhiệt đới, ưu tiên các giải pháp chống nóng và thoát nước như nhà mái Thái, nhà mái Nhật hoặc mái bằng có xử lý cách nhiệt, đồng thời tận dụng tối đa gió và ánh sáng tự nhiên thông qua cửa sổ, ban công, giếng trời và sân trước, sân sau, giúp không gian luôn thông thoáng, đặc biệt với nhà phố.
-
Mặt bằng được tối ưu theo dáng đất hẹp và dài, phát triển theo chiều sâu, cầu thang đặt dọc hoặc giữa nhà, kết hợp tiểu cảnh để phân chia không gian mà vẫn đảm bảo độ thoáng.
-
Hình thức kiến trúc linh hoạt, từ hiện đại, mái Thái, mái Nhật đến tân cổ điển và truyền thống, sử dụng đa dạng vật liệu như kính, bê tông, gỗ, đá, phù hợp nhiều mức ngân sách.
-
Không gian sống có sự gắn kết với thiên nhiên thông qua sân vườn, ban công và sân thượng trồng cây, góp phần cải thiện vi khí hậu và chất lượng sống.
-
Quy mô và công năng đáp ứng tốt nhu cầu của gia đình Việt từ 3–6 người, phù hợp mô hình sinh hoạt nhiều thế hệ.
-
Yếu tố phong thủy được xem trọng trong hướng nhà, cách bố trí cửa ra vào hay cửa sổ, không gian thờ và màu sắc, nhằm tạo sự hài hòa và cảm giác an tâm cho gia chủ.
Các mẫu nhà 2 tầng đẹp, xây dựng theo hệ mái
Mẫu nhà mái Nhật 2 tầng
Nhà mái Nhật 2 tầng được định hình bởi sự cân bằng tuyệt đối trong tỷ lệ và hình khối, ở hệ mái với độ dốc vừa phải, buông nhẹ về các phía, không chỉ giúp công trình thoát nước và chống nóng ưu việt mà còn tạo cảm giác "đầm", vững chãi, bình yên và thanh lịch đậm chất Á Đông.
Tại Decox, tư duy quy hoạch không gian nhà mái Nhật 2 tầng ưu tiên sự mạch lạc và kết nối. Decox bố trí mặt bằng tập trung giải quyết bài toán tiện nghi cho gia đình đa thế hệ, kết hợp nội thất sử dụng gam màu trung tính và vật liệu gỗ làm chủ đạo, tiết chế chi tiết, nhường chỗ cho vẻ đẹp của tỷ lệ và chất cảm vật liệu lên tiếng.
- Tầng trệt được thiết kế mở liên hoàn, nơi phòng khách và bếp ăn chia sẻ ánh sáng từ những khung cửa lớn, tạo cảm giác rộng rãi vượt trội.
- Tầng hai là thế giới riêng của vợ chồng trẻ và con cái với đầy đủ tiện ích khép kín.
>> Xem thêm:
- Top 101+ mẫu nhà mái Nhật 1 tầng đẹp hiện đại
- 59+ Mẫu biệt thự 2 tầng mái Nhật đẹp, hiện đại, xu hướng
- 20+ Mẫu nhà vuông 2 tầng mái Nhật đẹp, bao gồm bản vẽ
Mẫu nhà mái Thái 2 tầng
Nhà mái Thái 2 tầng định hình bởi tư duy tôn vinh chiều cao và sự vững chãi của hình khối. Kiến trúc mặt tiền gây ấn tượng với những đường nét phương thẳng đứng dứt khoát, kết hợp cùng hệ mái chữ A xếp chồng lớp nghệ thuật, giúp công trình 'hack' chiều cao để trở nên bề thế hơn, mà còn tạo ra lớp đệm không khí cách nhiệt hoàn hảo tạo nên diện mạo uy nghi và đẳng cấp mà không cần quá nhiều chi tiết trang trí rườm rà.
Tại Decox, bố cục không gian bên trong nhà mái Thái 2 tầng được phân lớp rõ ràng theo nhịp sống gia đình. Nội thất sử dụng ngôn ngữ hiện đại pha chút đường nét cổ điển, tạo nên một tổng thể hài hòa, vừa sang trọng về hình thức, vừa tiện nghi trong vận hành.
- Tầng 1: Sảnh chính rộng, phòng khách liên thông phòng ăn để tương xứng với vẻ bề thế bên ngoài.
- Tầng 2: Các phòng ngủ có ban công (thường có mái che kiểu Thái đua ra) để hóng gió và tạo hình khối mặt tiền.
>> Xem thêm:
- 39+ Mẫu nhà 2 tầng mái Thái 80m2 đẹp, đơn giản
- 34+ Mẫu nhà 2 tầng mái Thái 100m2 đơn giản, hiện đại
- Mẫu nhà mái Thái 2 tầng 4 phòng ngủ đẹp
Mẫu nhà 2 tầng mái bằng
Nhà 2 tầng mái bằng hướng đến sự tinh giản và linh hoạt, kiến trúc đại diện cho tư duy sống hiện đại, nơi hình khối và công năng được đặt lên hàng đầu. Khác hệ mái dốc truyền thống, mái bằng được thể hiện rõ ràng bằng các khối vuông vức, giúp tổng thể trở nên gọn gàng, mạch lạc và dễ kiểm soát tỷ lệ trong không gian đô thị.
Cấu trúc 2 tầng mái bằng, Decox ưu tiên sự mạch lạc trong tổ chức mặt bằng và tỷ lệ hình khối. Nội thất được tinh giản hóa, nhường chỗ cho cảm giác về biên độ không gian, giúp gia chủ tìm thấy sự thư thái thực sự sau những áp lực của nhịp sống đô thị. Bố cục được sắp xếp chặt chẽ để mỗi mét vuông đều mang lại giá trị sử dụng thực tế, cụ thể:
-
Tầng 1: thường được tổ chức như một không gian mở, nơi các khu vực sinh hoạt chung, tạo cảm giác rộng rãi và liền mạch.
- Tầng 2: khu vực riêng tư hơn, được bố trí gọn gàng trong khung hình khối vuông vức.
Mẫu nhà 2 tầng mái lệch
Nhà 2 tầng hệ mái lệch đan xen, tạo nên một diện mạo đầy chuyển động và phá cách so với những mẫu nhà truyền thống. Với cấu trúc mái lệch đặc trưng, công trình tận dụng triệt để lợi thế về độ dốc, thiết kế với tư duy mở, nơi các cao độ trần thay đổi linh hoạt theo độ nghiêng của mái, mang lại cảm giác giải phóng về không gian và sự thoáng đãng lạ thường.
Bố cục ngôi nhà được Decox tổ chức chặt chẽ, tận dụng tối đa những góc cắt vát để tạo nên các khoảng thông tầng thoáng đãng. Nội thất thường được xử lý gọn gàng, tiết chế chi tiết để làm nền cho hình khối kiến trúc phía trên, cụ thể:
-
Tầng 1: Không gian sinh hoạt chung được tổ chức thông thoáng để cân bằng lại hình khối mái phía trên.
-
Tầng 2: Bố trí dựa trên những đường chéo của mái, đồng bộ về vật liệu và màu sắc, tập trung vào sự mạch lạc, ưu tiên trải nghiệm tiện nghi và cảm giác tự do cho gia chủ.
Các mẫu nhà 2 tầng đẹp, thiết kế hiện đại đón đầu xu hướng 2026
Mẫu nhà 2 tầng phong cách hiện đại
Ngôi nhà 2 tầng phong cách hiện đại tập trung vào việc loại bỏ các chi tiết trang trí rườm rà, nhường chỗ cho sự lên tiếng của vật liệu. Mọi chi tiết nội thất đều được lựa chọn có kiểm soát, ưu tiên sự tiện nghi và tính bền vững, kết hợp sử dụng bảng màu trung tính cùng hệ chiếu sáng nhân tạo giúp không gian duy trì được sự ổn định về mặt thị giác và cảm xúc, phục vụ trọn vẹn cho nhu cầu sống hiện đại và năng động.
-
Tầng 1 được mở rộng tối đa thông qua các giải pháp kiến trúc không vách ngăn, tạo nên một dòng chảy liên tục kết nối giữa phòng khách, bếp và sân vườn.
-
Tầng 2 là những khoảng trời riêng tư, yên tĩnh tập trung vào chất lượng hoàn thiện và sự tiện dụng, tạo nên một tổ ấm thực thụ
>> Xem thêm:
- 101+ Mẫu thiết kế biệt thự hiện đại đẹp nhất không thể bỏ lỡ
- 20+ BST Sân vườn biệt thự phong cách hiện đại đẹp, ấn tượng
- Gợi ý [30+] Mẫu cổng nhà phố đẹp hiện đại, ấn tượng
Mẫu nhà 2 tầng đẹp đơn giản
Nhà 2 tầng phong cách tối giản với sự tiết chế tuyệt đối trong đường nét và màu sắc, tiếp cận chặt chẽ về tỷ lệ và sự đồng bộ của vật liệu. Nội thất được lựa chọn theo nguyên tắc “ít nhưng chất”, ưu tiên hình khối đơn giản, vật liệu bền và bảng màu trung tính để giảm cảm giác thị giác dư thừa.
Tầng một và tầng hai được kết nối bằng những khoảng trống đắt giá, nơi ánh sáng tự nhiên được xem như một vật liệu kiến trúc chủ đạo. Ngôi nhà tập trung vào chất lượng của các "điểm chạm" tạo nên một môi trường sống bền vững và đầy thư thái.
>> Xem thêm: 40+ thiết kế phòng ngủ tối giản đẹp cho người thích sự đơn giản
Mẫu nhà 2 tầng phong cách Tân cổ điển
Ngôi nhà 2 tầng Tân cổ điển tập trung khai thác các đường phào chỉ thanh mảnh và hệ cột trụ vững chãi, tạo nên một diện mạo trang nhã và đầy chuẩn mực. Với cấu trúc 2 tầng mạch lạc, bố cục không gian được tính toán theo "tỷ lệ vàng" không đặt nặng sự phô diễn bề thế bên ngoài mà tập trung vào chiều sâu của không gian nội thất.
- Tầng 1 thường được tổ chức trang trọng, với sảnh vào rõ ràng, phòng khách và không gian sinh hoạt chung được bố trí cân đối, khẳng định đẳng cấp thông qua sự tinh tế trong hình khối và sự bền vững của các giá trị thẩm mỹ truyền thống.
- Tầng 2 nơi các phòng ngủ và không gian yên tĩnh được sắp xếp hợp lý, ưu tiên những đường cong nhẹ nhàng, màu sắc trung tính và vật liệu cao cấp nhưng gần gũi, để đảm bảo sự thoải mái trong sinh hoạt hằng ngày.
>> Xem thêm:
- 99+ Mẫu biệt thự tân cổ điển đẹp, thể hiện không gian
- TOP 30+ mẫu thiết kế phòng khách tân cổ điển đẹp
- [BST] 20+ Mẫu thiết kế nhà phố tân cổ điển đẹp nhất 2026
Mẫu nhà 2 tầng phong cách Indochine
Nhà 2 tầng phong cách Indochine là bản giao hưởng giữa nét lãng mạn Pháp và nhịp điệu không gian chậm rãi, phù hợp với khí hậu và lối sống Việt Nam. Nội thất ưu tiên các vật liệu tự nhiên, sự hiện diện của gạch bông, gỗ tối màu và mây đan và bảng màu trung tính kết hợp cùng sắc trầm của gỗ tự nhiên tạo nên chiều sâu cho không gian, sự tiện nghi trong vận hành và tính bền vững của vật liệu.
Cấu trúc 2 tầng được phân lớp rõ ràng: tầng dưới dành cho sự kết nối cộng đồng, tầng trên là những khoảng lùi yên tĩnh cho nghỉ ngơi. Không gian sống được tổ chức chặt chẽ và tỷ lệ hình khối hài hòa, tận dụng tối đa các khoảng hiên rộng và hệ cửa lá sách.
>> Xem thêm:
- Phong cách Indochine - 55 mẫu biệt thự mang dấu ấn hoài cổ
- 30+ Mẫu phòng ngủ phong cách Indochine - Đông Dương
- TOP 8 Mẫu thiết kế kiến trúc phong cách Indochine đẹp, ấn tượng
Mẫu nhà 2 tầng 4 phòng ngủ đẹp
Không gian của ngôi nhà 2 tầng 4 phòng ngủ được phát triển dựa trên sự thấu hiểu sâu sắc nhu cầu của gia đình đa thế hệ. Nếu đất nhỏ (dưới 100m2), các phòng dễ bị bé và bí. Thách thức lớn nhất nằm ở việc cân bằng giữa mật độ công năng dày đặc và khoảng thở cần thiết cho không gian sống. Tổng thể nhà 2 tầng 4 phòng ngủ quy hoạch mặt bằng chặt chẽ, tận dụng triệt để từng mét vuông diện tích, giữ vẻ ngoài gãy gọn, hiện đại, giấu đi sự phức tạp bên trong bằng những mảng khối tinh tế.
-
Tầng trệt được ưu tiên cho sự kết nối chung và một phòng ngủ tiện nghi cho người lớn tuổi.
Tầng lầu là khối ngủ tập trung với 3 phòng riêng biệt được xoay quanh trục sảnh đệm và giếng trời để lấy sáng tự nhiên.
- Mẫu nhà mái Thái 2 tầng 4 phòng ngủ đẹp
- 39+ Mẫu nhà 2 tầng mái Thái 80m2 đẹp, đơn giản và ấm cúng
- 40+ Mẫu nhà mái Thái 3 phòng ngủ đẹp, hiện đại, tiện nghi
Nhà ống 2 tầng 1 tum 3 phòng ngủ giá từ 1 tỷ
Nhà ống 2 tầng 1 tum được phát triển thông minh với khí hậu nhiệt đới trong đô thị nén. Khối tum phía trên như lớp đệm cách nhiệt hiệu quả cho các không gian nghỉ ngơi bên dưới, giúp công trình đạt được tỷ lệ chiều cao hài hòa.
Không gian của ngôi nhà ống 2 tầng 1 tum hướng đến sự cân bằng giữa tính thực dụng và cảm giác thư thái, khối tum và sân thượng được thiết kế như một điểm nhấn kiến trúc mềm mại, nơi gia chủ có thể kiến tạo một khu vườn nhỏ để cân bằng lại nhịp sống hối hả. Mọi tỷ lệ nội thất, từ hệ tủ âm tường đến khoảng cách giao thông thể hiện thông qua sơ đồ mặt bằng được quy hoạch chặt chẽ, cụ thể:
- Tầng 1: Gara + Khách + Bếp + 01 Phòng ngủ (thường nhỏ, cho người già hoặc khách).
- Tầng 2: 02 Phòng ngủ lớn (Master + Con) + Sinh hoạt chung/Làm việc.
- Tầng Tum: Phòng thờ + Giặt phơi + Sân thượng.
>> Xem thêm:
- 20+ Mẫu nhà ống mái Thái đẹp, hiện đại, tối ưu chi phí
- 25+ Mẫu thiết kế sân sau nhà ống có sân vườn, giếng trời
Mẫu nhà 2 tầng 3 phòng ngủ đẹp
Nhà 2 tầng 3 phòng ngủ là "cấu hình vàng" cho gia đình hạt nhân (Bố mẹ + 2 con) với diện tích đất "vừa vặn" không quá chật như nhà cấp 4, không quá thừa như biệt thự, đảm bảo sự thông thoáng cho từng không gian.
Tư duy thiết kế chủ đạo ngôi nhà 2 tầng 3 phòng ngủ là kiến tạo một không gian sống đề cao sự gắn kết nhưng vẫn tôn trọng khoảng trời riêng. Tổng thể kiến trúc được phát triển theo hướng tối giản, loại bỏ những chi tiết thừa để tập trung vào hình khối vững chãi và tỷ lệ hài hòa.
-
Tầng 1: Quy hoạch mở (Open plan), xóa nhòa ranh giới giữa bếp và phòng khách.
- Tầng 2: Ba phòng ngủ được xử lý tinh tế với hệ tủ âm tường và nội thất thông minh để tối đa hóa diện tích sử dụng.
>> Xem thêm:
- 20+ Mẫu nhà mái Nhật 1 tầng 3 phòng ngủ đẹp (có bản vẽ)
- 45+ Mẫu nhà mái thái 1 tầng 3 phòng ngủ đẹp, hiện đại ở nông thôn
- Chi phí thiết kế nội thất căn hộ 3 phòng ngủ bao nhiêu?
Mẫu nhà 2 tầng 80 - 100m2 đơn giản giá từ 1 tỷ trở lên
Nhà 2 tầng 80-100m2 sàn là diện tích lý tưởng, vượt trội hơn hẳn nhà ống (thường 50-60m²) và tiệm cận với biệt thự mini. Đồng thời, nội thất sử dụng các vật liệu có chiều sâu như gỗ, đá và kính khổ lớn, tương xứng với quy mô của không gian, được tính toán hào phóng, mang lại cảm giác thoải mái và tự do trong từng bước di chuyển.
Với hơn 3000+ dự án thi công và thiết kế biệt thự trong và ngoài nước, Decox hiểu rằng: Bài toán thiết kế trên khuôn viên 80-100m² không phải là tìm cách nhồi nhét công năng, mà là nghệ thuật sắp đặt để tạo ra sự mạch lạc và thư thái trong vận hành.
-
Tầng 1: Khu vực 'động' với sảnh đón trang trọng, gara xe và không gian sinh hoạt chung rộng rãi dành cho những buổi sum vầy.
-
Tầng 2: Khu vực 'tĩnh' với các phòng ngủ master và phòng thờ được bố trí biệt lập, yên tĩnh.
>> Tham khảo thêm: 45+ mẫu nhà 2 tầng đẹp giá 1 tỷ và mẹo thiết kế giảm phát sinh chi phí
Mẫu nhà 2 tầng 100 - 120m2 đẹp
Không gian của căn nhà 2 tầng diện tích 100-120m² cho phép thiết kế một công trình thực sự bề thế, sang trọng, có sân vườn rộng hoặc gara đôi. Với những mảng khối mạnh mẽ, tỷ lệ vàng và vật liệu cao cấp, nhà 2 tầng 100 - 120m² tạo nên một diện mạo uy nghi, sang trọng mà vẫn giữ được sự thanh thoát.
Tại Decox, không gian của nhà 2 tầng diện tích 100-120m² được phát triển theo tư duy kiến tạo một 'resort tại gia' - nơi mọi giác quan được đánh thức và nuôi dưỡng. Bố cục không gian được phân lớp rõ ràng, tạo ra những vùng trải nghiệm cảm xúc khác biệt, cụ thể:
-
Tầng 1: Sảnh đón hoành tráng, phòng khách lớn, bếp ăn với đảo bếp, quầy bar mini, 1 phòng ngủ VIP cho khách hoặc người lớn tuổi, và có thể có gara đôi hoặc sân vườn rộng.
- Tầng 2: Thường là 3-4 phòng ngủ khép kín (Master Suite lớn với phòng thay đồ, WC riêng), phòng sinh hoạt chung rộng, phòng thờ và các không gian giải trí (phòng đọc sách, phòng gym nhỏ).
>> Xem thêm: 45+ Mẫu nhà mái Nhật 1 tầng 4 phòng ngủ trên 100m2
Mẫu nhà 2 tầng 120 - 200m2 đẹp nhất
Mẫu nhà 2 tầng với diện tích sàn 120-200m²/sàn (Tổng diện tích sử dụng 240-400m²), đây thực chất là các Dinh thự hoặc Biệt thự đơn lập, hướng đến sự hoàn hảo trong công năng và trải nghiệm sống tiện nghi bậc nhất. Thiết kế nội thất tập trung vào chất cảm của vật liệu tự nhiên cộng hưởng sự giao thoa của ánh sáng, kiểm soát những khoảng trống mênh mông, biến chúng thành những điểm chạm cảm xúc đắt giá.
Công trình trải dài theo phương ngang với các khoảng đệm chuyển tiếp êm ái, biến ngôi nhà thành một ốc đảo biệt lập và thư thái. Đồng thời, bố trí thông tầng (Duplex) tại phòng khách hoặc sảnh đón để kết nối chiều đứng, tránh việc các tầng bị tách biệt rời rạc.
-
Tầng 1: Không gian đại sảnh, phòng khách siêu rộng (Grand Living), phòng ăn riêng biệt (Formal Dining) phục vụ tiệc tùng, bếp ướt/khô tách biệt, phòng ngủ cho khách VIP/người giúp việc.
- Tầng 2: Master Suite chiếm diện tích lớn (50-80m2) như một căn hộ penthouse thu nhỏ. Các phòng giải trí, sinh hoạt chung được bố trí xen kẽ.
>> Tham khảo: Dinh thự Versailles - Decox Design
Mẫu nhà 2 tầng trên 200m2
Nhà 2 tầng phân khúc "Super Luxury" có diện tích sàn >200m² (Tổng diện tích sử dụng >400m²) tương đương với các Mansion (Dinh thự). Tổng thể kiến trúc phát triển dựa trên những niêm luật khắt khe của tỷ lệ vàng và sự đối xứng, tạo nên một hình khối uy nghi, bề thế, trường tồn với thời gian.
Bài toán nhà 2 tầng trên 200m2 không phải là "tối ưu diện tích" mà là "kiểm soát không gian" khổng lồ cần được giải quyết bằng nghệ thuật phân khu chức năng (Zoning) tinh tế để lấy sáng cho lõi nhà.
Decox giải quyết bài toán bằng sự phân chia bố cục mặt bằng được tổ chức thành các 'Wing' (cánh) chức năng riêng biệt, đan cài các khoảng sân trong (Courtyard) và giếng trời vào lõi công trình. Đồng thời, chia nhỏ không gian một cách ước lệ, mang ánh sáng và thiên nhiên len lỏi vào từng ngóc ngách, tạo nên sự cân bằng sinh thái tuyệt vời.
- Khu gia đình (Family Wing): Nơi sinh hoạt riêng tư, ấm cúng.
- Khu tiếp khách (Guest Wing): Đại sảnh, phòng khánh tiết, phòng tiệc formal.
- Khu dịch vụ (Service Wing): Bếp ướt, kho, phòng cho nhân viên, lối đi riêng cho người giúp việc.
>> Xem thêm:
- 20+ Mẫu thiết kế sân vườn 1000m2 đẹp, ấn tượng
- 20+ BST Sân vườn biệt thự phong cách hiện đại đẹp
- 20+ Mẫu thiết kế Tiểu cảnh sân vườn biệt thự đẹp
Mẫu nhà hình chữ L 2 tầng đẹp giá từ 700 triệu
Nhà chữ L 2 tầng tạo ra một khoảng sân tự nhiên ở góc khuyết, đóng vai trò như một 'thung lũng xanh' thu nhỏ, nơi đón gió và ánh sáng tự nhiên, kết nối các phòng chức năng mang lại sự linh hoạt và thoáng đãng tuyệt đối trong vận hành.
Tư duy thiết kế của Decox cho ngôi nhà 2 tầng hình chữ L xóa bỏ góc khuyết của thế đất là nhược điểm, bằng hệ thống cảnh quan, hồ nước hoặc sảnh hiên, hóa giải sự sắc cạnh và mang lại vượng khí cho ngôi nhà. Thiết kế nội thất tập trung vào sự hiện đại và tiện nghi, sử dụng hệ cửa kính lớn ở các mặt hướng ra sân chung để kết nối tầm nhìn. Sơ đồ công năng bên trong được phân chia rành mạch:
-
Tầng 1:
-
Cánh ngắn: Thường là Phòng khách hoặc Gara.
-
Cánh dài: Bếp ăn và Phòng ngủ (nếu có).
-
Góc giao nhau: Là sảnh đệm hoặc cầu thang - vị trí chiến lược để kết nối 2 cánh.
-
- Tầng 2: Các phòng ngủ được bố trí dọc theo 2 cánh, đều có cửa sổ mở ra khoảng sân chung, tạo sự thông thoáng tuyệt đối.
>> Xem thêm:
- 32+ Mẫu thiết kế nhà chữ L 2 tầng 80m2 đẹp, tiện nghi
- 25+ Mẫu nhà mái Thái 2 tầng chữ L đẹp, đơn giản, tiện nghi
Mẫu nhà 2 tầng hình chữ U hiện đại
Sở hữu khuôn viên đất rộng lớn, mẫu nhà 2 tầng hình chữ U được thiết kế 3 khối nhà bao quanh một lõi xanh (hồ bơi hoặc sân vườn) toát lên vẻ bề thế, cân đối, như một vòng tay vững chãi che chở cho sự bình yên của tổ ấm.
Tư duy quy hoạch nhà 2 tầng hình chữ U hiện đại được phát triển theo hướng "tàng phong tụ khí" lấy khoảng sân trong (Courtyard) làm hạt nhân. Tổng thể công trình tuân thủ nghiêm ngặt các nguyên tắc về tính đối xứng và tỷ lệ vàng, tạo nên diện mạo uy nghi, đường bệ. Kết hợp hành lang dài chạy dọc theo hình chữ U kết nối các phòng và tạo view nhìn ra sân trong, tách biệt hoàn toàn không gian sống với thế giới bên ngoài.
-
Khối chính (Đáy chữ U): Thường là Đại sảnh, Phòng khách lớn và Phòng thờ (ở tầng 2). Đây là trục thần đạo, trang trọng nhất.
-
Hai cánh (Cạnh chữ U):
-
Cánh phải: Bếp ăn, Phòng giải trí.
-
Cánh trái: Các phòng ngủ.
-
Mẫu nhà mặt tiền 5m 2 tầng đẹp
Nhà mặt tiền 5m 2 tầng là kích thước "quốc dân" của nhà phố Việt Nam, nổi bật lên như một điểm nhấn kiến trúc đầy cá tính. Thách thức của mặt tiền 5m không nằm ở diện tích, mà ở cách phân chia không gian để tránh cảm giác hun hút của nhà ống.
Thay vì tham lam các chi tiết trang trí rườm rà, gia chủ nên sử dụng vách kính, gương lớn, màu sơn sáng để "nới rộng" chiều ngang 5m, tập trung khai thác triệt để chiều ngang 5m, thay đổi cấu trúc giao thông đứng.
-
Tầng 1: Liên thông phòng khách và bếp, mặt tiền được xử lý gãy gọn với những mảng khối đặc rỗng, giải phóng toàn bộ trục nhìn xuyên suốt từ cửa chính xuống bếp ăn, nơi thẩm mỹ mặt tiền song hành cùng công năng nội tại.
- Tầng 2: Hành lang giao thông ngắn gọn, tối ưu hóa diện tích cho các phòng ngủ kết hợp giếng trời trung tâm, hướng đến sự mạch lạc và tinh tế, biến ngôi nhà phố tiêu chuẩn thành một không gian sống tiện nghi vượt trội.
>> Xem thêm:
- [30+] Mẫu nhà phố 2 mặt tiền đẹp, hiện đại đón đầu xu hướng
- 15+ Mẫu mặt tiền nhà ống 2 tầng đẹp, hiện đại
- 15+ Mẫu mặt tiền nhà phố 2 tầng đẹp kèm thiết kế bản vẽ
Mẫu nhà mặt tiền 6m 2 tầng
Trong kiến trúc nhà phố, 1 mét chiều ngang tăng thêm (từ 5m lên 6m) là một bước nhảy vọt về giải pháp không gian. Nhà mặt tiền 6m 2 tầng cho phép bố trí gara song song với phòng khách, thoát khỏi dáng vẻ "nhà ống" để tiệm cận với dáng dấp "Biệt thự phố" (Mini Villa).
Với tư duy thiết kế tập trung vào sự tinh tế và liền mạch, tận dụng bề ngang rộng rãi, phân chia không gian bằng cốt nền tạo những góc 'chill' đắt giá như ban công thư giãn hay góc tiểu cảnh sân vườn ngập nắng, nổi bật hoàn toàn giữa bối cảnh đô thị.
-
Tầng 1: Tận dụng tối đa chiều ngang để mở rộng khu vực sinh hoạt chung, nơi phòng khách và bếp ăn được tổ chức liên hoàn, tạo ra biên độ thoáng đãng cho tầm nhìn.
-
Tầng 2: Không gian sinh hoạt và nghỉ ngơi tiện nghi, giúp tối ưu hóa sự riêng tư cho từng phòng ngủ nhưng vẫn duy trì sự kết nối thị giác mạnh mẽ qua khoảng sân trung tâm.
Mẫu nhà ống 2 tầng 2 mặt tiền đẹp
Tọa lạc tại vị trí có giá trị thương mại và tính thẩm mỹ cao, ngôi nhà ống 2 tầng tận dụng tối đa lợi thế hai mặt tiền để kiến tạo nên một cấu trúc hình khối đa diện và tính riêng tư của đời sống gia đình. Thách thức của mô hình này thường bị vát góc theo quy hoạch, cần xử lý khéo léo để nhà không bị "cụt" hoặc sắc cạnh.
Decox dựa trên tư duy tối ưu hóa đối lưu không khí và ánh sáng tự nhiên, phân chia bố cục chặt chẽ, tạo ra dòng chảy không gian liên tục giữa các tầng. Mặt tiền được bọc một lớp 'áo tản nhiệt nghệ thuật’, bố trí hệ thống cửa sổ và ban công chạy dọc theo cả hai diện mặt tiền. Điều này vừa giải quyết bài toán bức xạ nhiệt từ hai hướng, đặc biệt cái nắng hướng Tây, mở ra những góc nhìn panorama đắt giá từ bên trong, vừa đảm bảo sự riêng tư cần thiết cho sinh hoạt.
-
Tầng trệt được ưu tiên sử dụng kính khổ lớn và vật liệu cao cấp để tạo sự thu hút thị giác.
-
Tầng lầu giữ vẻ kín đáo, riêng tư cho gia đình, với đầy đủ tiện nghi và các khoảng ban công xanh mát.
Biệt thự nhà vườn 2 tầng đẹp nhất
Biệt thự nhà vườn 2 tầng không cố gắng vươn cao để chế ngự cảnh quan, mà trải dài và nương mình vào thảm thực vật xung quanh, được phát triển theo mô hình nghỉ dưỡng tại gia, tìm về những giá trị bình yên và bền vững. Tại Decox, tổng thể biệt thự nhà vườn 2 tầng ưu tiên sự khoáng đạt và kết nối. Đồng thời, kiến trúc ngoại thất sử dụng ngôn ngữ hiện đại kết hợp với chất cảm thô mộc của đá và gỗ, tạo nên vẻ đẹp vững chãi nhưng vẫn hài hòa, gần gũi.
- Mặt tiền: Thiết kế với những khoảng lùi sâu và hệ mái hiên vươn rộng, tạo ra vùng đệm vi khí hậu lý tưởng, giúp ngôi nhà luôn mát mẻ và tránh được những tác động gắt gao của thời tiết nhiệt đới.
- Tầng 1: Hiên rộng (Veranda/Terrace) để ngồi uống trà ngắm vườn. Phòng khách và Bếp có cửa kính lớn mở ra các hướng nhìn (View 360 độ).
- Tầng 2: Các phòng ngủ có ban công lớn, không gian thờ cúng trang trọng thường đặt ở tầng này, hướng ra mặt thoáng tốt nhất.
Bản vẽ nhà 2 tầng đẹp tiện nghi từ giá rẻ đến cao cấp
Hồ sơ thiết kế - Mẫu bản vẽ nhà 2 tầng, thiết kế AutoCAD + 3D giúp tối ưu công năng, tổ chức không gian mạch lạc, tận dụng hiệu quả diện tích để tạo sự thông thoáng và tiện nghi. Đồng thời, bản vẽ chi tiết hỗ trợ kiểm soát ngân sách, hạn chế chi phí phát sinh và đảm bảo an toàn kết cấu, giúp gia chủ hình dung rõ phong cách kiến trúc, từ đó điều chỉnh các chi tiết phù hợp với lối sống cá nhân, tạo nên không gian sống hài hòa và bền vững.
>> Xem thêm:
- 19+ Mẫu bản vẽ nhà 2 tầng mái Nhật đẹp, hiện đại, miễn phí
- 12 Bản vẽ mặt bằng biệt thự 1 tầng, 2 tầng, 3 tầng đẹp
- 10+ Mẫu bản vẽ mặt bằng nhà phố đẹp nên tham khảo
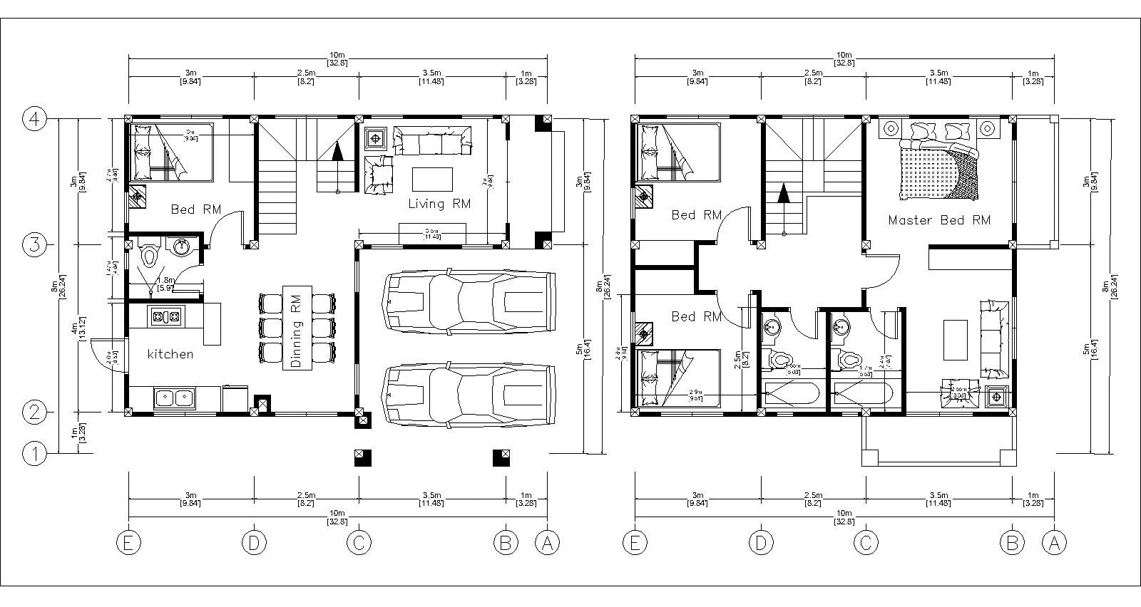
Bản vẽ thiết kế nhà 2 tầng 7x10m
Bản vẽ thiết kế nhà 2 tầng 8x10m
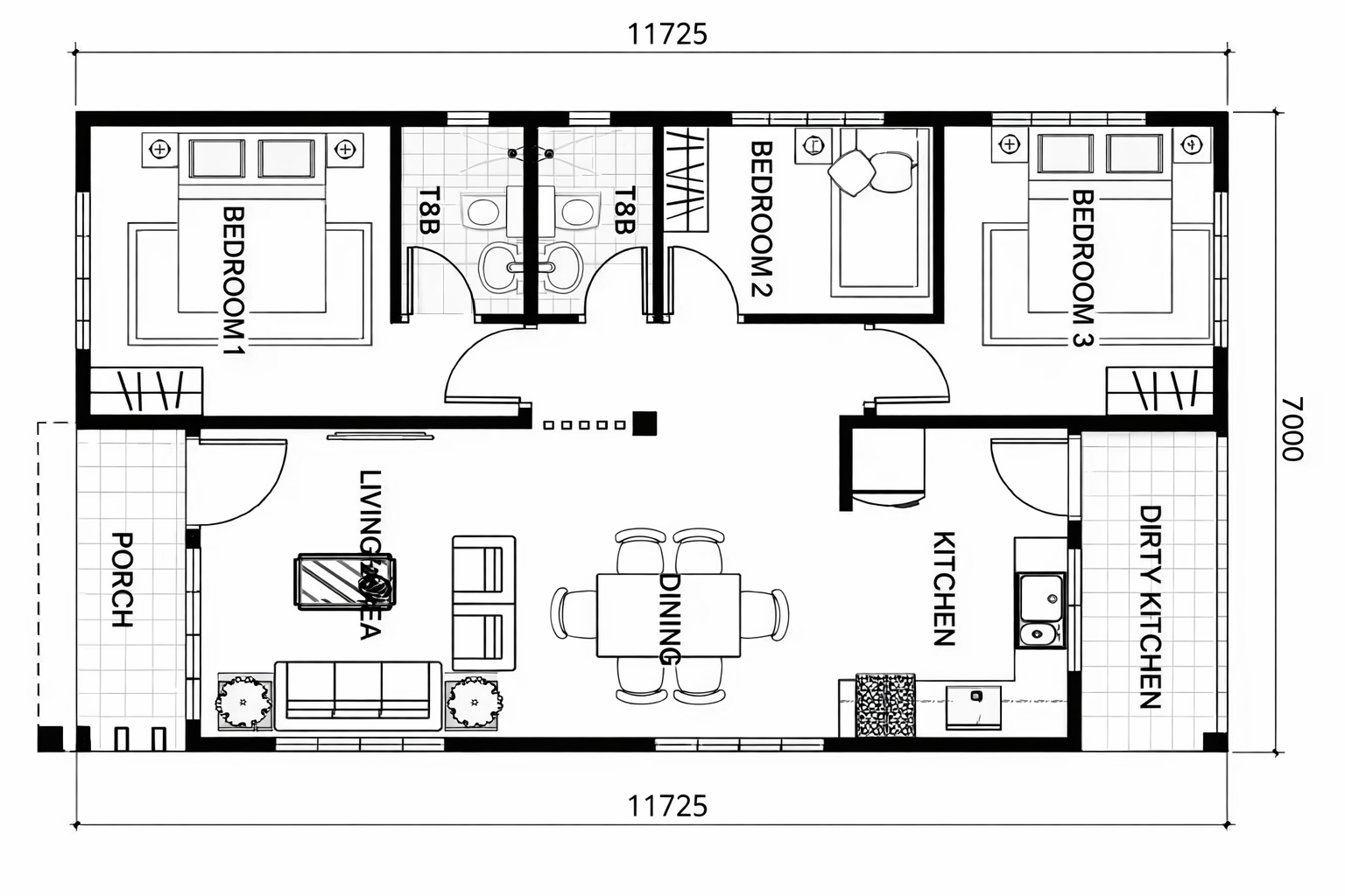
Bản vẽ 3d nhà ống 2 tầng 5x20m
Bản vẽ cad nhà 2 tầng 7x12m
Bản vẽ thiết kế nhà 2 tầng 5x14m
Các loại hình xây dựng nhà 2 tầng đẹp phổ biến hiện nay
Nhà ống 2 tầng
Mẫu nhà ống 2 tầng loại hình nhà ở phổ biến nhất tại đô thị Việt Nam: đất hẹp ngang (4m-5m), dài sâu, 2 bên giáp hàng xóm. Nỗi lo thiếu sáng, sợ cảm giác "hun hút" như đường hầm, khó bố trí nội thất sao cho thoáng hoàn toàn bị xóa bỏ. Bởi, loại hình này là câu trả lời cho bài toán tối ưu hóa công năng trên nền tảng diện tích hạn chế.
Với công trình nhà ống 2 tầng, tư duy Decox thiết kế tập trung vào việc phá vỡ cấu trúc 'hộp kín' thông thường bằng cách đưa vào lõi nhà những khoảng thở đắt giá (thông tầng, giếng trời, lệch tầng). Mặt tiền công trình giữ sự tiết chế cần thiết, sử dụng những đường nét phương ngang và vật liệu thô mộc để tạo nên vẻ đẹp vững chãi, hài hòa với cảnh quan đô thị nhưng vẫn đủ cá tính để nhận diện. Các khu vực sinh hoạt chung được liên thông (Open plan) để nới rộng tầm nhìn, trong khi các không gian riêng tư được đẩy về phía sau để đảm bảo sự yên tĩnh.
>> Xem thêm:
- 25 Mẫu nhà ống 2 tầng 2 mặt tiền đẹp, đơn giản (bản vẽ
- 42+ Mẫu thiết kế nhà ống 3 tầng bản vẽ hiện đại, mặt tiền đẹp
- 30+ Mẫu thiết kế nội thất phòng ngủ nhà ống hiện đại, tiện nghi
Nhà phố 2 tầng
Khác với "nhà ống" (thường gợi cảm giác hẹp, dài), với quy mô 2 tầng, ở các khu đô thị quy hoạch hoặc mặt tiền phố, "Nhà phố" (Townhouse) mang sắc thái hiện đại hơn, chỉn chu hơn về mặt kiến trúc. Decox đã thay thế tư duy phân phòng truyền thống bằng giải pháp không gian mở liên tục, ưu tiên ngôn ngữ hiện đại với những đường nét gãy gọn, mang đến tổng thể công trình toát lên vẻ đẹp của sự tiết chế và nhịp điệu.
- Tầng trệt được quy hoạch xuyên suốt từ phòng khách đến bếp ăn, vay mượn diện tích của nhau để tạo nên sự khoáng đạt tối đa về thị giác.
- Tầng 2 được tổ chức thành những khoảng lặng riêng tư phòng ngủ, phòng thờ hay khu sinh hoạt chung, đảm bảo luồng di chuyển thuận tiện và một trải nghiệm sống tiện nghi, không thừa không thiếu.
>> Xem thêm:
- [30+] Mẫu nhà phố 2 mặt tiền đẹp, hiện đại đón đầu xu hướng
- [BST] 20+ Mẫu thiết kế nhà phố tân cổ điển đẹp nhất 2026
- Gợi ý [30+] Mẫu cổng nhà phố đẹp hiện đại, ấn tượng nhất
Nhà biệt thự 2 tầng
Nhà biệt thự 2 tầng không còn bị ép theo chiều sâu như nhà phố, mà được phát triển cân đối theo cả chiều ngang và chiều cao, tạo nên hình khối rõ ràng, bề thế nhưng vẫn kiểm soát được tỷ lệ. Biệt thự 2 tầng không hướng đến sự choáng ngợp tức thời, mà tập trung kiến tạo một không gian sống có chiều sâu và sự lắng đọng. Tổng thể kiến trúc giữ vai trò như một lớp vỏ bao bọc an toàn, với mặt tiền được xử lý tinh tế giữa các mảng đặc - rỗng, vừa đảm bảo sự riêng tư tuyệt đối, vừa cởi mở đón nhận ánh sáng và gió trời.
Tại Decox, tổng thể kiến trúc của căn biệt thự 2 tầng được hướng đến sự "Sang trọng thầm lặng" như một thực thể hữu cơ, nơi công trình không tách biệt mà hòa mình vào cảnh quan sân vườn bao quanh.
-
Tầng 1 (Khu vực Đối ngoại & Sum vầy): Sảnh đón trang trọng, phòng khách và bếp ăn thường liên thông và mở rộng tối đa ra hướng vườn (kết nối Indoor-Outdoor), có thể có 1 phòng ngủ cho người lớn tuổi.
-
Tầng 2 (Khu vực Riêng tư): Tập trung vào trải nghiệm nghỉ dưỡng (Master Suite rộng, có phòng thay đồ, WC lớn). Các phòng ngủ con cần sự tiện nghi khép kín, không gian sinh hoạt chung (Family room) để gắn kết.
Biệt thự 2 tầng không hướng đến sự choáng ngợp tức thời, mà tập trung kiến tạo một không gian sống có chiều sâu và sự lắng đọng
Dự án nổi bật tại Decox
Cách bố trí nội thất nhà 2 tầng đẹp, tối ưu chi phí nhất có thể bạn chưa biết
Trong thiết kế nội thất nhà 2 tầng, “đẹp” không có nghĩa phải “đắt tiền”, mà đến từ cách điều tiết ánh sáng và tỷ lệ vật dụng. Dễ hiểu hơn, gia chủ cần tập trung vào công năng cốt lõi, không gian (Ánh sáng, thoáng khí) và giải pháp thông minh, nhằm phục vụ tốt nhất cho cuộc sống. Cụ thể:
-
Áp dụng tư duy tối giản không mua sắm quá nhiều đồ đạc không cần thiết: Thay vì ốp vách gỗ cầu kỳ hay phào chỉ rườm rà, hãy để những mảng tường trơn được sơn màu trung tính (Trắng, Kem, Xám nhạt). Đầu tư vào đồ rời (Loose furniture) chất lượng như: Sofa, bộ bàn ăn và giường, món đồ trang trí nhỏ lẻ có thể bổ sung sau.
-
Tận dụng "Góc chết" của không gian 2 tầng bằng nội thất thông minh: Biến gầm cầu thang thành hệ tủ kho, tủ giày, kệ tivi, đồng thời, sử dụng giường ngủ tích hợp ngăn kéo bên dưới để thay thế tủ quần áo lớn, giúp phòng ngủ nhỏ trở nên thoáng đãng hơn.
-
Phân vùng không gian bằng giải pháp phân chia ước lệ: Phòng Khách - Bếp được liên thông (Open plan) bằng bộ bàn ăn, đảo bếp hoặc một hệ kệ sách thưa. Đồng thời, gia chủ có thể định hình không gian chức năng bằng tấm thảm trải sàn hay bộ rèm voan, giúp ngôi nhà rộng hơn, tiết kiệm chi phí xây tường và điện chiếu sáng.
-
Lên Kịch bản Ánh sáng thông qua sự Phân lớp ánh sáng tổng thể (đèn downlight) với ánh sáng điểm (đèn rọi tranh, đèn cây góc sofa), tạo cảm giác không gian có chiều sâu và "đắt tiền" hơn. Đừng chỉ dùng 1 bóng đèn tuýp sáng trưng ở giữa phòng, không làm nổi bật nội thất và mất đi sự cân bằng thị giác cho không gian.
-
Tận dụng vật liệu hiện đại
-
Gỗ công nghiệp (MDF/MFC): Chọn loại cốt chống ẩm Thái Lan với bề mặt Melamine vân gỗ có độ bền và thẩm mỹ cao hơn so với gỗ thật, nhưng mà giá chỉ bằng 1/3.
-
Đá nhân tạo/Gạch vân đá khổ lớn, vân đá marble (80x80cm, 60x120cm) là giải pháp kinh tế, sang trọng và dễ vệ sinh hơn.
-
Decox - Đơn vị chuyên về thiết kế thi công nhà 2 tầng đẹp uy tín
Với ngôi nhà 2 tầng, Decox bắt đầu từ câu hỏi rất cơ bản: không gian này sẽ được sống như thế nào mỗi ngày? Decox định hình bởi tư duy tổ chức mặt bằng khoa học, ưu tiên sự cân bằng giữa nhịp sống chung năng động và những khoảng lặng riêng tư cần thiết.
Mô hình nhà 2 tầng được xem là giải pháp kiến trúc tối ưu nhất để cân bằng giữa chi phí đầu tư và chất lượng không gian sống cho gia đình hiện đại. Thông qua các khoảng thông tầng và hệ cửa kính được tính toán kỹ lưỡng về tỷ lệ, kết hợp khéo léo giữa chiếu sáng tự nhiên và hệ thống đèn nhân tạo. Tầng 1 là không gian mở dành cho sự kết nối, được sắp xếp theo một trục giao thông xuyên suốt, định hình rõ rệt chức năng từng khu vực. Tầng 2 dành trọn cho sự tĩnh tại với các phòng ngủ được thiết kế tối giản, tập trung vào việc phục hồi năng lượng.
Decox với đội ngũ chuyên gia hàng đầu, đồng hành trọn vẹn từ chiến lược đầu tư, thiết kế tối ưu đến thi công chuẩn mực, đảm bảo chất lượng và chi phí tối ưu nhất.
Facebook | Tiktok | Youtube


































































































