10+ Mẫu bản vẽ mặt bằng nhà phố đẹp nên tham khảo trước khi xây nhà
- 08-01-2026
- Lượt xem: 19991
Nội dung chính
- Mặt bằng nhà phố là gì?
- Tổng hợp các mẫu bản vẽ mặt bằng nhà phố đẹp
- Bản vẽ mặt bằng nhà phố phong cách hiện đại
- Bản vẽ mặt bằng nhà phố 2 tầng 1 tum
- Bản vẽ mặt bằng nhà phố 3 tầng
- Bản vẽ mặt bằng nhà phố 4 tầng
- Bản vẽ thiết kế mặt bằng nhà phố 4 tầng có tầng lửng
- Mặt bằng nhà phố 4x16
- Mặt bằng nhà phố 5x20m
- Mặt bằng nhà phố 5x15m
- Mặt bằng nhà phố 5x10m
- Bản vẽ mặt bằng nội thất nhà phố 6m
- Bản vẽ mặt bằng nhà lô phố 5m
- Bản vẽ thiết kế nội thất mặt bằng nhà phố 8m
- Tiêu chuẩn kiến trúc nội thất trong mặt bằng nhà phố hiện nay
- Những lưu ý quan trọng khi thiết kế bản vẽ mặt bằng nhà phố
- Decox - Đơn vị thiết kế thi công nội thất - kiến trúc nhà phố hàng đầu Việt Nam
>> Xem thêm:
Mặt bằng nhà phố là gì?
Tổng hợp các mẫu bản vẽ mặt bằng nhà phố đẹp
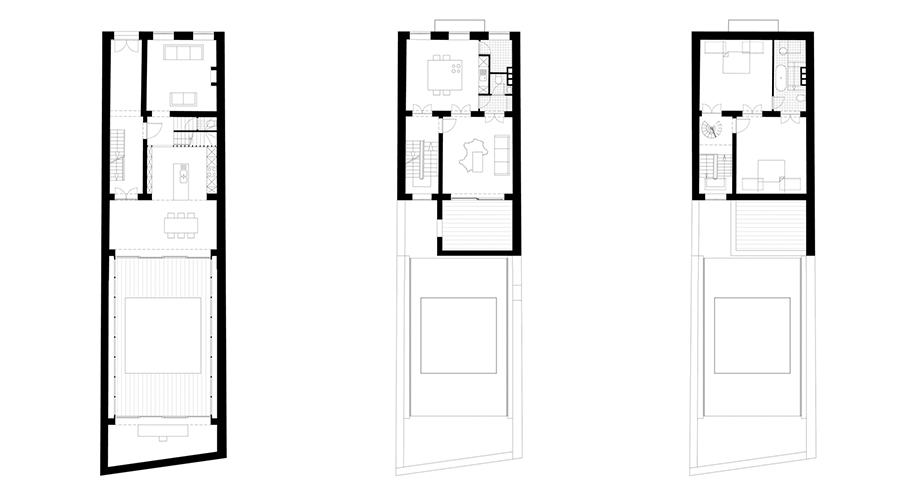
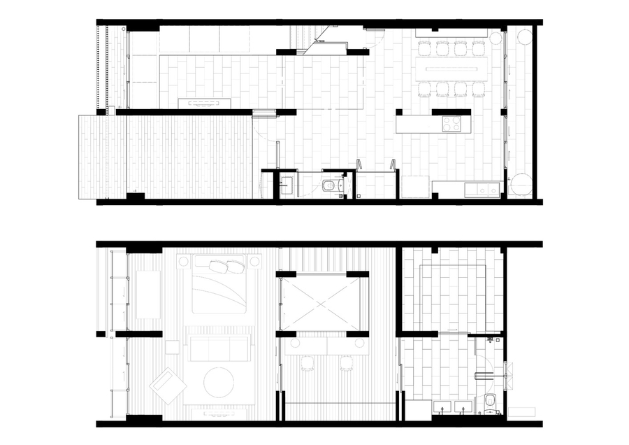
Bản vẽ mặt bằng nhà phố phong cách hiện đại
>> Tham khảo thêm: TOP 65+ các mẫu nhà 2 tầng thiết kế đẹp, có bản vẽ hiện đại 2026
Bản vẽ mặt bằng nhà phố 2 tầng 1 tum
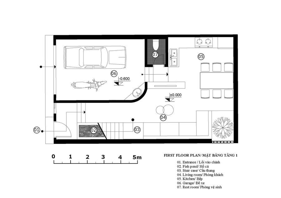
Bản vẽ mặt bằng nhà phố 3 tầng
Dưới đây là một căn nhà phố 3 tầng do Decox thực hiện, mời bạn cùng tham khảo.
Thông tin dự án
- Loại hình: Nhà phố
- Diện tích: 8x20m
-Thiết kế và Xây dựng: Decox
>> Đừng lướt qua: 100+ Mẫu nhà 3 tầng đẹp hiện đại, có bản vẽ mặt bằng nhà phố, nhà ống
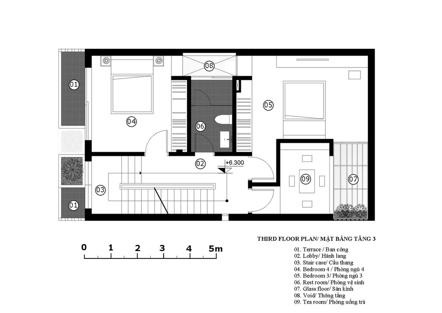
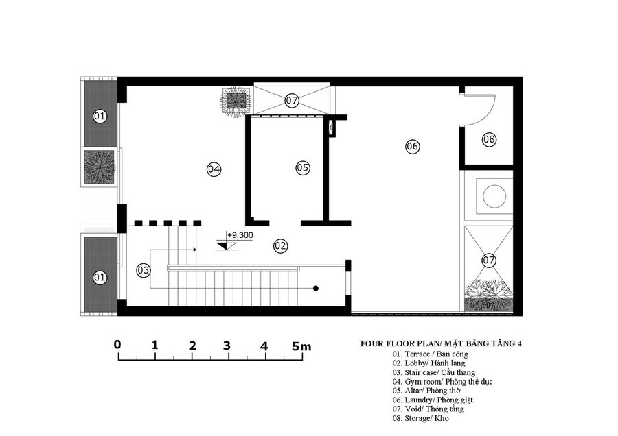
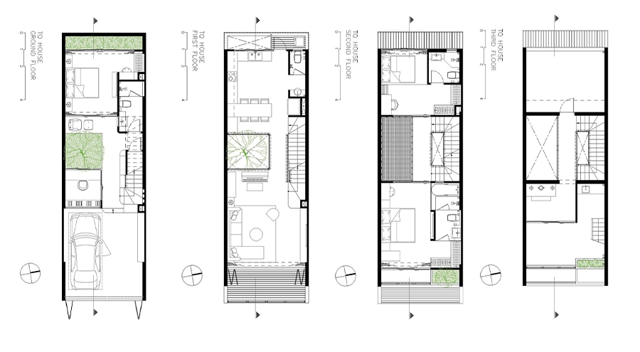
Bản vẽ mặt bằng nhà phố 4 tầng
Về cơ bản khi lên bản vẽ mặt bằng nhà phố 4 tầng các KTS sẽ tính toán kỹ lưỡng để tận dụng tốt diện tích và không gian, mang đến hiệu quả thẩm mỹ cao. Thông thường, tầng trệt của nhà phố 4 tầng sẽ được sử dụng cho các khu vực sinh hoạt chung của gia đình, hoặc kết hợp làm thêm khu vực gara để xe. Các tầng trên sẽ là không gian riêng tư như phòng ngủ, phòng làm việc, phòng thờ…
Thông tin dự án:
- Chủ đầu tư: Anh Hảo
- Diện tích: 4x16.8m
- Style: Hiện đại
- Vị trí: Phường Phú Thuận, Quận 7, TPHCM
- Design & Build: Decox
>> Xem ngay: 25 Mẫu thiết kế nội thất nhà phố 4 tầng đẹp, hiện đại xu hướng 2026
Bản vẽ thiết kế mặt bằng nhà phố 4 tầng có tầng lửng
Mặt bằng nhà phố 4x16
Mặt bằng nhà phố 5x20m
- Mẫu thiết kế nhà ống 2 tầng mái Thái mặt tiền 5m đẹp, hiện đại
- 15+ Mẫu mặt tiền nhà ống 2 tầng đẹp, hiện đại, thiết kế đơn giản
- 99+ Mẫu nhà ống 2 tầng mái thái 5x20m đẹp, hiện đại, full bản vẽ
Mặt bằng nhà phố 5x15m
Mặt bằng nhà phố 5x10m
>> Xem thêm: 99+ Mẫu nhà ống 2 tầng đẹp, thiết kế hiện đại 2026, giá tối ưu
Bản vẽ mặt bằng nội thất nhà phố 6m
>> Xem thêm: 25+ mẫu nhà 2 tầng mặt tiền 6m hiện đại đẹp, có bản vẽ thiết kế
Bản vẽ mặt bằng nhà lô phố 5m
>> Xem ngay: Mẫu thiết kế nhà ống 2 tầng mái Thái mặt tiền 5m đẹp, hiện đại
Bản vẽ thiết kế nội thất mặt bằng nhà phố 8m
Thông tin dự án
Chủ đầu tư: Mr. Q
Loại hình: Nhà phố
Diện tích: 8 x 15.5m 124m2
Vị trí dự án: Bình Quới, Bình Thạnh, TP Hồ Chí Minh
Thiết kế & Thi công: Decox
>> Xem thêm:
- 31+ Mẫu mặt tiền nhà 2 tầng đẹp, thiết kế hiện đại
- [30+] Mẫu nhà mái thái 2 tầng đẹp được lựa chọn nhiều nhất 2026
Tiêu chuẩn kiến trúc nội thất trong mặt bằng nhà phố hiện nay
- Diện tích phòng khách không nên dưới 12m2. Xét về mặt phong thủy thì phòng khách dưới 12m2 sẽ không tốt về đường tài lộc cho gia chủ. Còn về mặt thẩm mỹ thì phòng khách diện tích nhỏ sẽ khó để trưng bày vật dụng nội thất, khó tạo được sức hút cho không gian trọng điểm này. >>Để tìm hiểu thêm về diện tích phòng khách phù hợp, bạn có thể tham khảo chi tiết tại bài viết: https://decoxdesign.com/dien-tich-phong-khach.html
- Khi thiết kế mặt bằng nhà phố khu vực phòng bếp, để tạo sự thuận tiện khi di chuyển cũng như thói quen sinh hoạt, phòng bếp sẽ được bố trí liên tiếp với khu vực phòng khách. Về diện tích phòng bếp, có thể dao động từ 6 đến 15m2 tùy theo diện tích nhà. Về công năng, một “dây chuyền” bếp cơ bản sẽ có khu vực rửa, khu nấu, bếp khô - bếp ướt, hệ tủ bếp trên và tủ bếp dưới,...
- Về không gian phòng ngủ, 12m2 - 20m2 được xem là thông số diện tích tiêu chuẩn nhất, đủ để sắp xếp nội thất cũng như đảm bảo sự rộng thoáng nhất định, giúp chủ nhân căn phòng cảm thấy thoải mái khi sử dụng. Ngoài ra, phòng ngủ master thời hiện đại thường được tích hợp thêm các công năng khác như phòng tắm, phòng thay đồ, góc làm việc ngay trong phòng để đảm bảo tính riêng tư và thuận tiện cho gia chủ. Vậy nên, không gian này cũng sẽ có cách bày trí riêng, đồng thời diện tích cũng nhỉnh hơn những khu vực khác.
- Với nhà vệ sinh nhà phố, thông thường diện tích sẽ dao động từ 3 đến 6m2, 1 con số phù hợp, đảm bảo đầy đủ nội thất phục vụ cho việc vệ sinh cá nhân.
Ngoài những khu vực chức năng cơ bản trên, mặt bằng nhà phố còn có thêm các khu vực như ban công, giếng trời, sân thượng, cầu thang… gia chủ cũng cần lưu tâm đến những tiêu chuẩn trong thiết kế để đảm bảo tính thẩm mỹ và công năng cho toàn bộ tổng thể.
Những lưu ý quan trọng khi thiết kế bản vẽ mặt bằng nhà phố
- Về không gian: Loại hình nhà phố chiếm tỷ trọng khá cao tại những khu đô thị, thành phố lớn ở nước ta với diện tích phổ biến là ngang từ 3m đến 8m, dài 10m đến 20m. Tùy theo số lượng thành viên cũng như nhu cầu sử dụng mà mặt bằng nhà phố sẽ dao động phổ biến từ 2 tầng đến 4 tầng
- Về công năng sử dụng: Thông thường, khi thiết kế mặt bằng nhà phố, KTS sẽ bố trí phòng khách ngay khu vực mặt tiền, bởi vị trí này sẽ giúp không gian sinh hoạt chung đón nhận được nhiều ánh sáng, không khí nhất cũng như thu hút tài lộc và nguồn năng lượng tích cực vào nhà. Phòng bếp, phòng ăn nên bố trí tiếp nối với phòng khách để tạo sự liền mạch, tiếp nối và tiện lợi trong sinh hoạt. Ở đây, gia chủ cũng có thể bố trí thêm khu vực giếng trời để lấy sáng, lấy gió tránh trường hợp không gian bị bí bách, ngột ngạt. Còn với những khu vực yêu cầu tính riêng tư cao như phòng ngủ, phòng làm việc, phòng thờ sẽ được bố trí ở những tầng phía trên. Ngoài ra, với những căn nhà phố có khoảng trống ở phần sân sau thì cửa phụ là một yếu tố quan trọng mà chủ nhà cần lưu ý. Bởi lẽ, không chỉ giúp ích cho việc đối lưu không khí, cửa phụ còn đảm bảo cho việc thoát hiểm khi có sự cố xảy ra.
- Về phong thủy: Yếu tố phong thủy luôn gắn liền với đời sống theo quan niệm phương Đông. Vậy nên, khi phân chia các khu vực chức năng, ngoài đảm bảo việc thuận lợi trong sinh hoạt, KTS còn phải cân đối với phong thủy nhà ở.
Decox - Đơn vị thiết kế thi công nội thất - kiến trúc nhà phố hàng đầu Việt Nam
Hãy để lại thông tin và nhu cầu của bạn ở mẫu form dưới đây, để Decox có thể liên lạc và hỗ trợ bạn xây dựng nên căn nhà mơ ước!! Bạn cũng có thể tham khảo những dự án thiết kế nhà phố mà Decox đã thực hiện tại: https://decoxdesign.com/thiet-ke-nha-pho
Decox vừa chia sẻ đến bạn những bản vẽ thiết kế mặt bằng nhà phố 5m, 6m, 8m… cũng như khái quát cách bố trí công năng phù hợp. Hy vọng bài viết sẽ cung cấp cho bạn thêm nhiều kiến thức hữu ích. Nếu cần tư vấn thiết kế nhận báo giá xây dựng nhà phố, hãy liên hệ với Decox qua số hotline 0901 411 489 để được hỗ trợ một cách nhanh chóng nhất.
















































![[BST] 20+ Mẫu thiết kế nhà phố tân cổ điển đẹp nhất 2026](upload/sanpham/bst-20-mau-thiet-ke-nha-pho-tan-co-dien-dep-nhat-2023.jpg)




















