Hotline MessengerTrò chuyện cùng Decox Youtube Decoxdesign Facebook Tiktok Instagram Zalo
Menu

Bản vẽ mặt bằng căn hộ chung cư The Sun Avenue - Tháp 2-4-5

Mang tên “Đại lộ mặt trời”, dự án khu căn hộ cao cấp The Sun Avenue với thiết kế lạ hoà mình vào không gian mở đón chào những ánh bình minh tuyệt đẹp. Với những căn hộ nơi đây, bạn sẽ được tận hưởng những buổi sáng ngắm bình minh ngay tại căn hộ nhỏ nhắn của mình. The Sun Avenue là tổ hợp gồm 8 toà tháp với đầy đủ tiện ích từ dịch vụ thương mại, căn hộ cho đến văn phòng, mang lại cho bạn cuộc sống đầy đủ hiện đại và văn minh. Được thiết kế bao phủ bởi hệ sinh thái cây xanh mát mẻ, hệ tháp 2,4,5 là khu vực mang lại nhiều không khí trong lành nhất cho dân cư. Hãy để Decox Design giúp bạn tìm hiểu thêm về Tháp 2,4,5 của dự án Sun Avenue.

Tổng quan về dự án The Sun Avenue - Tháp 2,4,5

Với mật độ dân số ngày càng đông tại khu vực quận 2, dự án The Sun Avenue đã đáp ứng được nhu cầu nhà ở cũng như văn phòng cho nhiều cư dân và doanh nghiệp. Khu vực căn hộ chung cư được kiến tạo để mang tới cho cư dân nơi đây cuộc sống tốt nhất với đầy đủ những tiện nghi hữu ích và văn mình hiện đại. Khi chọn tháp 2,4,5 Sun Avenue để an cư lạc nghiệp thì vấn đề an ninh sẽ không cần lo lắng vì hệ thống an ninh 24/7 sẽ luôn đảm bảo an toàn cho gia đình bạn.
Với mỗi căn hộ thuộc dự án Sun Avenue sẽ trở nên thật hoàn hảo khi có được thiết kế nội thất chung cư The Sun Avenue mang đến màu sắc mới, cá tính mới cho căn hộ.
mat-bang-chung-cu-the-sun-avenue-thap-2-4-5-01-decox-designNhận báo giá

Một số thông tin khác về The Sun Avenue

Tổng số tầng: 28 - 30 tầng
Tầng 1: shophouse
Tầng 2-4: officetel
Tầng 5: tiện ích cộng đồng, hồ bơi
Từ tầng 6: căn hộ nhà ở

Mặt bằng căn hộ chung cư The Sun Avenue - Tháp 2,4,5

Mặt bằng căn hộ chung cư Sun Avenue - tháp 2,4,5 có view hướng sông nên không khí sẽ rất thoải mái và thoáng mát kèm thêm sự trong lành mà không gian xanh mang lại sẽ tạo một không gian sống hoàn hảo cho bạn. Ngoài ra, tháp 2,4,5 còn hướng view về trung tâm thành phố nên bạn có thể ngắm nhìn thành phố lộng lẫy xa hoa vào những buổi tối thảnh thơi.
mat-bang-chung-cu-the-sun-avenue-thap-2-4-5-02-decox-designNhận báo giá
Mặt bằng tổng thể dự án The Sun Avenue
mat-bang-chung-cu-the-sun-avenue-thap-2-4-5-03-decox-designNhận báo giá
Mặt bằng điển hình căn hộ chung cư Sun Avenue - Tháp 2-4-5

Mặt bằng chi tiết căn hộ chung cư The Sun Avenue - tháp 2,4,5

Tầng điển hình của Sun Avenue gồm có 12 căn hộ trên 1 tầng với các loại căn hộ: căn hộ 2 phòng ngủ, 3 phòng ngủ. Với mỗi căn hộ sẽ có lối thiết kế nội thất chung cư khác nhau nên những công ty thiết kế nội thất có thể giúp bạn khoác một chiếc áo mới cho căn hộ của bạn.
mat-bang-chung-cu-the-sun-avenue-thap-2-4-5-04-decox-designNhận báo giá
Mặt bằng căn hộ chung cư The Sun Avenue 51.24m2 - Tháp 2-4-5 - CH 01 PN
mat-bang-chung-cu-the-sun-avenue-thap-2-4-5-05-decox-designNhận báo giá
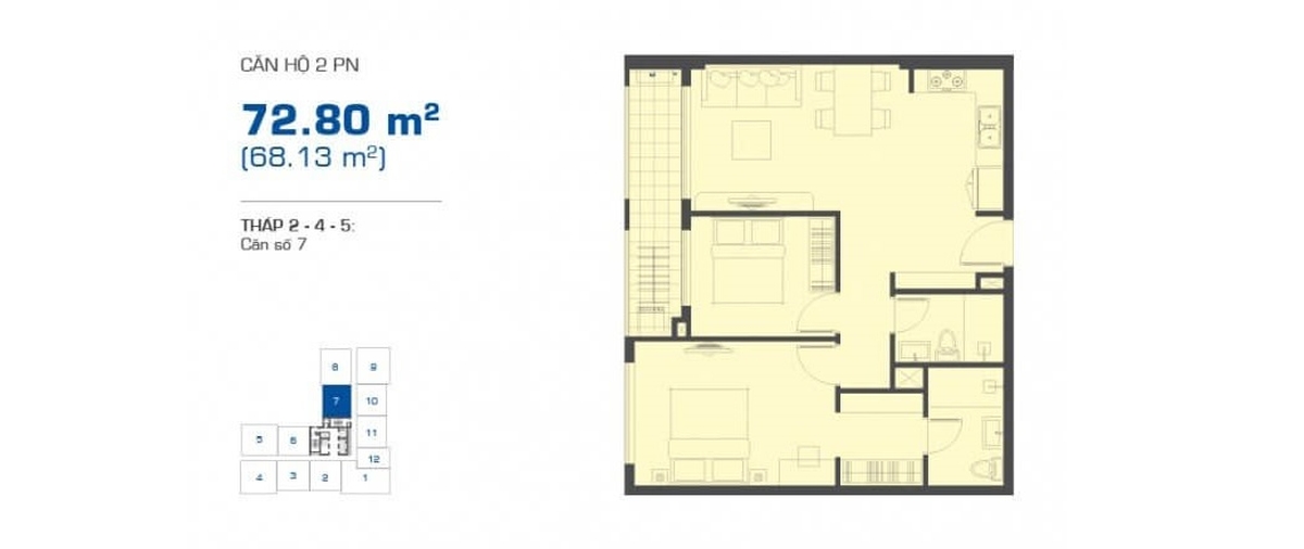
Mặt bằng căn hộ chung cư The Sun Avenue 68.13m2 - Tháp 2-4-5 - CH 02 PN
mat-bang-chung-cu-the-sun-avenue-thap-2-4-5-06-decox-designNhận báo giá
Mặt bằng căn hộ chung cư The Sun Avenue 70.40m2 - Tháp 2-4-5 - CH 02 PN
mat-bang-chung-cu-the-sun-avenue-thap-2-4-5-07-decox-designNhận báo giá
Mặt bằng căn hộ chung cư The Sun Avenue 83.57m2 - Tháp 2-4-5 - CH 03 PN
mat-bang-chung-cu-the-sun-avenue-thap-2-4-5-08-decox-designNhận báo giá
Mặt bằng căn hộ chung cư The Sun Avenue 90.28m2 - Tháp 2-4-5 - CH 03 PN
mat-bang-chung-cu-the-sun-avenue-thap-2-4-5-09-decox-designNhận báo giá
Mặt bằng căn hộ chung cư The Sun Avenue 102.31m2 - Tháp 2-4-5 - CH 03 PN
>>> Xem thêm: các mẫu thiết kế nội thất căn hộ The Sun Avenue
Trò chuyện cùng chuyên gia thiết kế nội thất - Nhận ngay giải pháp trang trí nội thất dành riêng cho bạn( ngay hôm nay ): 0901 411 489 – (028) 36200560
Thực hiện bởi: Decox Design
———
Decox Design - dịch vụ thiết kế nội thất chung cư trọn gói chuyên nghiệp, thư viện mẫu nội thất chung cư lớn nhất Việt Nam.
Lầu 8, MH Tower, 730 Võ Văn Kiệt, F1, Q5, TPHCM

Cùng thể loại

Same category

Decox Signature

Collection

Short Video

Decox on tiktok
x

Góc nhìn


x

Thành công!

Decox Design sẽ liên hệ với bạn sớm nhất! OK
x
Thông tin sản phẩm:

Thông tin khách hàng:
Tôi muốn được hỗ trợ tư vấn thi công sản phẩm này