Hotline MessengerTrò chuyện cùng Decox Youtube Decoxdesign Facebook Tiktok Instagram Zalo
Menu

Bản vẽ mặt bằng căn hộ chung cư Diamond Island - Tháp Maldives

Đảo Kim Cương (Diamond Island) là một trong những dự án nổi bật ở quận 2, vị trí đắc địa với ba mặt giáp sông và có không gian xanh bao quanh tạo nên không gian thoáng đãng, mát mẻ. Không những vậy, dòng sông bao quanh Đảo Kim Cương mang hình dáng của một con rồng và Diamond Island được coi như viên ngọc trong miệng rồng nên phong thuỷ rất tốt. Với thiết kế độc đáo gồm 5 toà tháp thuộc giai đoạn 2: Tháp Maldives, Tháp Bora Bora Tháp Hawaii, Tháp Bahamas, Tháp Canary. Trong số đó, Tháp Maldives Đảo Kim Cương là một trong những tháp lấy tên từ hòn đảo nổi tiếng xinh đẹp và hoa mỹ - Đảo Maldives. Cùng tham khảo bản vẽ mặt bằng căn hộ chung cư Diamond Island nhé!

Tổng quan về dự án Diamond Island - Tháp Maldives

Đảo Kim Cương toạ lạc trên đường Bình Trưng Tây, quận 2, nằm ngay trung tâm đô thị đang phát triển tạo nên một không gian sống tiện nghi cho dân cư. Tháp Maldives được thiết kế bao quanh bởi khuôn viên xanh mát và 3 mặt giáp sông tạo nên một không gian thoáng đãng, xanh mát cho cư dân sinh sống nơi đây. Việc thiết kế nội thất chung cư Diamond Island sẽ tận dụng toàn bộ căn hộ để bạn có thể tận hưởng thoải mái không gian đó.
Bản vẽ mặt bằng căn hộ chung cư Diamond Island - Tháp MaldivesNhận báo giá

Một số thông tin khác về mặt bằng tháp Maldives Diamond Island

Vị trí: 1, Đường 104 - Bình Trưng Tây, P.Bình Trưng Tây, QUẬN 2.
Tổng số căn hộ: 204 căn
Tổng số tầng: 29 tầng
Các loại căn hộ: Từ 01 đến 04 phòng ngủ (8 căn hộ/ tầng), Pool Villa, Garden Villa, Sky Villa.
Số lượng thang máy: 4 thang máy
Nội thất: Hệ thông máy lạnh âm trần từ Daikin, Hệ thống khoá từ cửa chính từ Hafele, các căn hộ đều có lô gia nhằm mang lại ánh sáng tự nhiên từ bên ngoài.

Mặt bằng căn hộ chung cư Diamond Island - Tháp Maldives

Toà Tháp Maldives Đảo Kim Cương sẽ mang lại một không gian sống cực kì thoải mái và thoáng đãng vì nó không chỉ có không gian xanh mà xen kẽ vào đó là những tiện ích cao cấp như bể bơi tràn, sân tennis, vườn thiền, khu vui chơi cho trẻ em,... Maldives với 3 mặt giáp sông sẽ tạo nên không khí mát mẻ và mặt kia hướng đến không gian xanh lại càng làm cho không khí thêm thoải mái hơn. Và đây cũng là toà tháp duy nhất trong 5 toà có căn hộ 4 phòng ngủ có 3 hướng giáp sông.
Bản vẽ mặt bằng căn hộ chung cư Diamond Island - Tháp MaldivesNhận báo giá
Mặt bằng tổng thể dự án Diamond Island (Đảo Kim Cương)
Bản vẽ mặt bằng căn hộ chung cư Diamond Island - Tháp BahamasNhận báo giá
Mặt bằng điển hình của Tháp Maldives - Tầng điển hình
Tầng điển hình của Tháp Maldives có 8 căn hộ 1 tầng kết hợp với Sky Villa trên tầng thượng và Garden Villa, Pool Villa dưới tầng trệt. Với mong muốn tạo nên không gian sống thoải mái cho chủ nhân tương lai, Mỗi căn hộ đã được thiết kế nội thất căn hộ với đầy đủ nhưng công năng cơ bản đủ phục vụ cho gia đình bạn. Tuy nhiên nếu bạn muốn căn hộ của mình có đầy đủ công năng bạn có thể tham khảo các mẫu thiết kế nội thất căn hộ đầy đủ công năng tại Decox Design.
Bản vẽ mặt bằng căn hộ chung cư Diamond Island - Tháp BahamasNhận báo giá
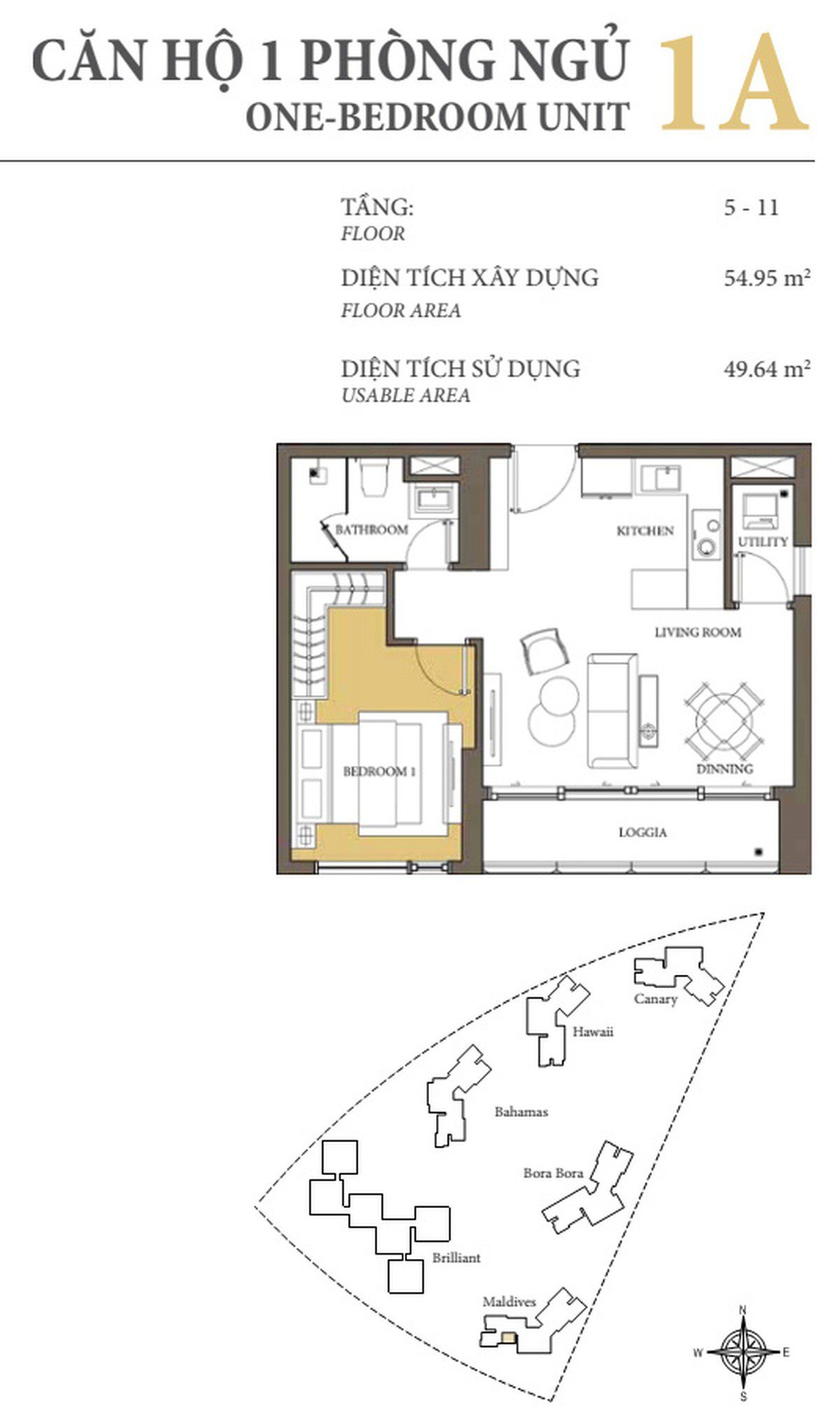
Mặt bằng căn hộ chung cư Diamond Island 49,64m2 - CH 1A - 1 phòng ngủ
Bản vẽ mặt bằng căn hộ chung cư Diamond Island - Tháp BahamasNhận báo giá
Mặt bằng căn hộ chung cư Diamond Island 82,42m2 - CH 2A - 2 phòng ngủ
Bản vẽ mặt bằng căn hộ chung cư Diamond Island - Tháp BahamasNhận báo giá
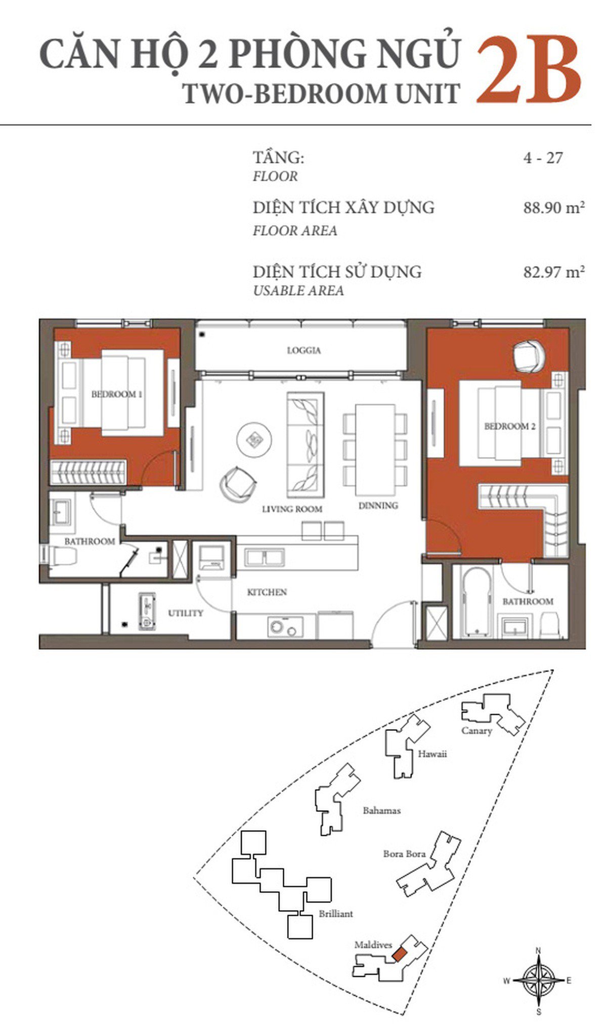
Mặt bằng căn hộ chung cư Diamond Island 82,97m2 - CH 2B - 2 phòng ngủ
Bản vẽ mặt bằng căn hộ chung cư Diamond Island - Tháp BahamasNhận báo giá
Mặt bằng căn hộ chung cư Diamond Island 83,58m2 - CH 2C - 2 phòng ngủ
Bản vẽ mặt bằng căn hộ chung cư Diamond Island - Tháp BahamasNhận báo giá
Mặt bằng căn hộ chung cư Diamond Island 101,85m2 - CH 2D - 2 phòng ngủ
Bản vẽ mặt bằng căn hộ chung cư Diamond Island - Tháp BahamasNhận báo giá
Mặt bằng căn hộ chung cư Diamond Island 108,68m2 - CH 3A - 3 phòng ngủ
Bản vẽ mặt bằng căn hộ chung cư Diamond Island - Tháp BahamasNhận báo giá
Mặt bằng căn hộ chung cư Diamond Island 108,55m2 - CH 3B - 3 phòng ngủ
Bản vẽ mặt bằng căn hộ chung cư Diamond Island - Tháp BahamasNhận báo giá
Mặt bằng căn hộ chung cư Diamond Island 108,41m2 - CH 3C - 3 phòng ngủ
Bản vẽ mặt bằng căn hộ chung cư Diamond Island - Tháp BahamasNhận báo giá
Mặt bằng căn hộ chung cư Diamond Island 158,67m2 - CH 4A - 4 phòng ngủ
Bản vẽ mặt bằng căn hộ chung cư Diamond Island - Tháp BahamasNhận báo giá
Mặt bằng căn hộ chung cư Diamond Island - tầng trên, tầng dưới
Bản vẽ mặt bằng căn hộ chung cư Diamond Island - Tháp BahamasNhận báo giá
Mặt bằng căn hộ chung cư Diamond Island - căn hộ 2 chìa khoá
>>> Xem thêm: các mẫu thiết kế nội thất căn hộ Diamond Island đẹp
Thực hiện bởi: Decox Design
Hình ảnh: daokimcuongs.vn
———
Trò chuyện cùng chuyên gia thiết kế nội thất - Nhận ngay giải pháp trang trí nội thất dành riêng cho bạn( ngay hôm nay ): 0901 411 489 – (028) 36200560
Thực hiện bởi: Decox Design
———
Decox Design - dịch vụ thiết kế nội thất chung cư trọn gói chuyên nghiệp, thư viện mẫu nội thất chung cư lớn nhất Việt Nam.
Lầu 8, MH Tower, 730 Võ Văn Kiệt, F1, Q5, TPHCM

Cùng thể loại

Same category

Decox Signature

Collection

Short Video

Decox on tiktok
x

Góc nhìn


x

Thành công!

Decox Design sẽ liên hệ với bạn sớm nhất! OK
x
Thông tin sản phẩm:

Thông tin khách hàng:
Tôi muốn được hỗ trợ tư vấn thi công sản phẩm này