Tuyển tập TOP 10 Mẫu mặt bằng biệt thự 1 tầng đẹp, tiện nghi 2026
- 07-01-2026
- Lượt xem: 11601
Nội dung chính
- Những yếu tố quan trọng khi thiết kế mặt bằng biệt thự 1 tầng
- Tổng hợp các mẫu mặt bằng biệt thự 1 tầng đẹp, dễ ứng dụng
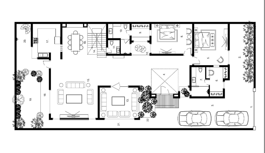
- Mẫu mặt bằng biệt thự 1 tầng hình chữ nhật
- Mẫu mặt bằng biệt thự 1 tầng hình vuông
- Mẫu mặt bằng biệt thự 1 tầng hình chữ L
- Mẫu mặt bằng biệt thự 1 tầng mang vẻ đẹp truyền thống
- Mẫu mặt bằng biệt thự vườn 1 tầng hài hòa với thiên nhiên
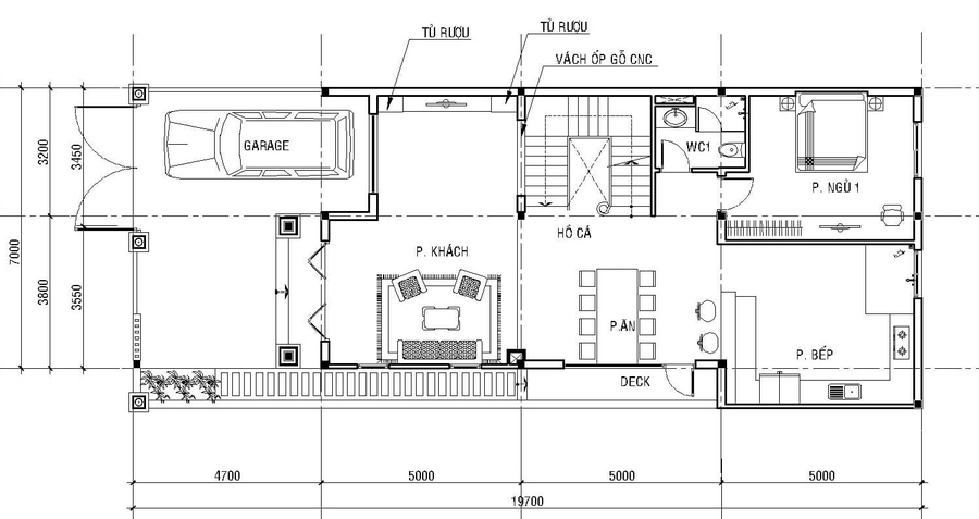
- Mẫu mặt bằng biệt thự 1 tầng 3 phòng ngủ
- Mẫu mặt bằng biệt thự 1 tầng 4 phòng ngủ
- Mẫu mặt bằng biệt thự 1 tầng 5 phòng ngủ
- Chi phí thiết kế mặt bằng biệt thự 1 tầng
- Decox tư vấn thiết kế mặt bằng biệt thự 1 tầng
>> Xem thêm:
Những yếu tố quan trọng khi thiết kế mặt bằng biệt thự 1 tầng
Diện tích đất & Loại hình biệt thự
>> Xem thêm:
Công năng sử dụng
>> Xem thêm:
Phong cách thiết kế
Ngoài ra, gia chủ cũng cần lưu ý đến hướng gió, địa chất cũng như khí hậu tại nơi xây nhà để đưa ra những phương án bố trí mặt bằng biệt thự 1 tầng phù hợp.
>> Xem thêm các phong cách thiết kế sau:
| Phong cách thiết kế nhiệt đới (Tropical Style) | Phong cách Wabi Sabi |
| Phong cách thiết kế Địa Trung Hải | Phong cách Châu Âu cổ điển |
| Phong cách thiết kế hiện đại | Phong cách Scandinavian |
Ngân sách xây dựng
>> Xem thêm:
- Chi phí thiết kế nội thất căn hộ 3 phòng ngủ khoảng bao nhiêu?
- Chi phí xây dựng biệt thự - Báo giá xây biệt thự trọn gói tại Decox 2026
- [2026] Bản vẽ, phương án và 20+ mẫu thiết kế phòng ngủ nhỏ 10m2 giá rẻ
Tổng hợp các mẫu mặt bằng biệt thự 1 tầng đẹp, dễ ứng dụng
Mẫu mặt bằng biệt thự 1 tầng hình chữ nhật
>> Xem thêm:
- [Tổng hợp] 12 Bản vẽ mặt bằng biệt thự 1 tầng, 2 tầng, 3 tầng đẹp, hiện đại, mới nhất 2026
- 10+ Mẫu bản vẽ mặt bằng nhà phố đẹp nên tham khảo trước khi xây nhà
- TOP 5 Mẫu bản vẽ nhà có tầng hầm có thiết kế đẹp chuẩn phong thủy
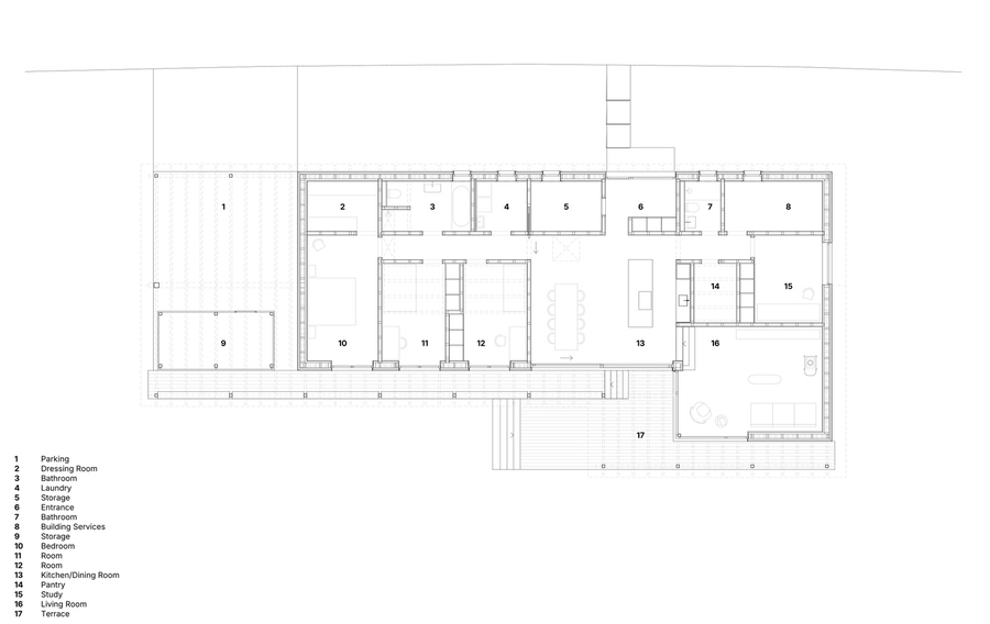
Mẫu mặt bằng biệt thự 1 tầng hình vuông
Mẫu mặt bằng biệt thự 1 tầng hình chữ L
Mẫu mặt bằng biệt thự 1 tầng mang vẻ đẹp truyền thống
>> Tham khảo thêm:
- Thiết kế cảnh quan sân vườn Việt Nam Lotus Garden
- Tổng hợp Các loại hình khách sạn phổ biến tại Việt Nam và thế giới hiện nay
- Những viên gạch đầu tiên đặt nền móng cho sự hình thành ngành khách sạn tại Việt Nam
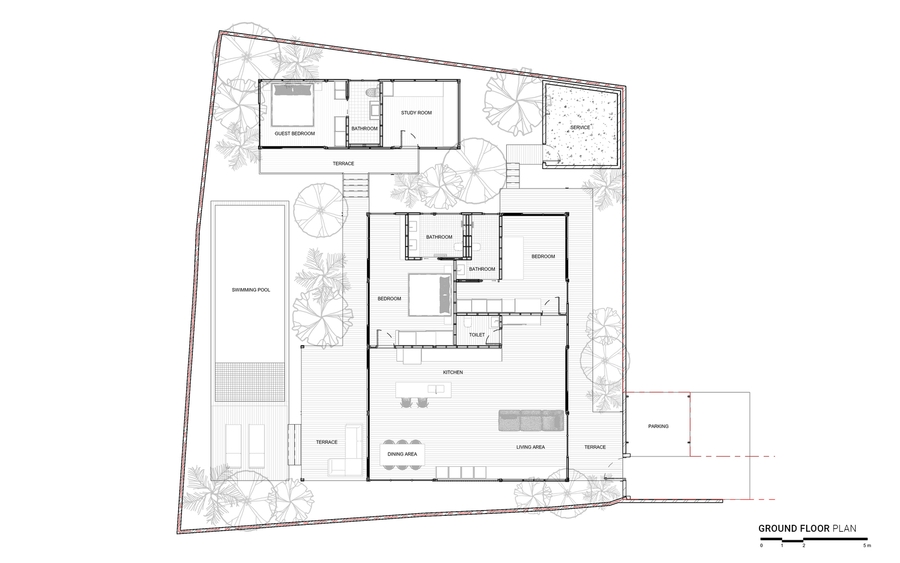
Mẫu mặt bằng biệt thự vườn 1 tầng hài hòa với thiên nhiên
>> Xem thêm:
- [15] Cây trồng sân vườn biệt thự đẹp, hợp phong thủy tăng vượng khí
- Top 16 loại cây trồng trong nhà bếp - Khử mùi, trang trí, tốt cho sức khỏe
- 30 loại cây trồng trong phòng ngủ tốt cho sức khỏe cho đêm an giấc
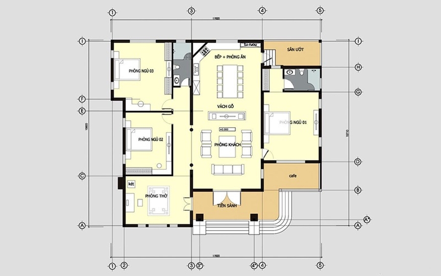
Mẫu mặt bằng biệt thự 1 tầng 3 phòng ngủ
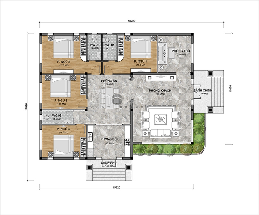
Mẫu mặt bằng biệt thự 1 tầng 4 phòng ngủ
Mẫu mặt bằng biệt thự 1 tầng 5 phòng ngủ
Chi phí thiết kế mặt bằng biệt thự 1 tầng
- Diện tích: Diện tích nhà lớn sẽ đồng nghĩa với bản vẽ thiết kế có nhiều chi tiết hơn, chất xám của KTS bỏ vào nhiều hơn, thời gian thiết kế lâu hơn, dẫn đến chi phí sẽ nhiều hơn so với biệt thự có diện tích vừa và nhỏ.
- Độ phức tạp của thiết kế: Với phác thảo đơn giản, ít phòng chức năng sẽ ít chi phí hơn với những bản vẽ tập trung khai thác sâu vào từng chi tiết. Tuy nhiên, gia chủ cũng cần lưu ý khi bản vẽ mặt bằng càng chi tiết thì độ hoàn chỉnh sẽ càng cao, khi ứng dụng ra thi công sẽ đơn giản và tiết kiệm công sức. Bên cạnh đó, đơn giá thiết kế còn bị tác động bởi kinh nghiệm của KTS cũng như uy tín của đơn vị triển khai. Vậy nên, để nhận được báo giá chi phí thiết kế mặt bằng biệt thự 1 tầng chính xác nhất, gia chủ hãy liên hệ các đơn vị để có thể so sánh và chọn lựa cho mình một “người bạn” đồng hành trên con đường kiến tạo những giá trị thực cho cuộc sống.
>> Tham khảo thêm:
Decox tư vấn thiết kế mặt bằng biệt thự 1 tầng
Để Decox có thể hỗ trợ tư vấn một cách chi tiết nhất, hãy cho chúng tôi biết cụ thể mong muốn của bạn bằng cách điền vào form dưới đây, chúng tôi sẽ liên hệ giải đáp trong thời gian sớm nhất. Decox vừa chia sẻ đến bạn những mẫu mặt bằng biệt thự 1 tầng đẹp, đáp ứng công năng cũng như nhu cầu sống trong đô thị ngày nay. Hy vọng bài viết sẽ cung cấp cho gia chủ nhiều thông tin hữu ích. Hãy ghé thăm website Decox thường xuyên để đón đọc nhiều bài viết thú vị khác nhé.









































![[Tham khảo] 20+ Mẫu biệt thự 4 tầng hiện đại đẹp và ấn tượng 2026](upload/sanpham/tham-khao-20-mau-biet-thu-4-tang-hien-dai-dep-va-an-tuong-2024.jpg)
![[Nguyên tắc] Thiết kế sân vườn nhà biệt thự hiện đại, đẳng cấp](upload/sanpham/nguyen-tac-thiet-ke-san-vuon-nha-biet-thu-hien-dai-dang-cap.jpg)
![[Dịch vụ] Thiết kế thi công sân vườn biệt thự cao cấp trọn gói tại Decox 2026](upload/sanpham/dich-vu-thiet-ke-thi-cong-san-vuon-biet-thu-cao-cap-tron-goi-tai-decox-2024.jpg)



















