15+ Mẫu bản vẽ nhà 2 tầng, đẹp, đơn giản (có bản thiết kế AutoCAD + 3D)
- 07-01-2026
- Lượt xem: 10955
Nội dung chính
Một công trình bền vững và đầy cảm hứng chưa bao giờ bắt đầu từ viên gạch đầu tiên trên công trường, mà luôn khởi nguồn từ những đường nét tư duy sắc sảo trên mặt giấy. Bản vẽ nhà 2 tầng không chỉ đơn thuần là tập hợp các thông số kỹ thuật, mà là nơi nhu cầu sinh hoạt, gu thẩm mỹ và tư duy tổ chức không gian được chuyển hóa thành ngôn ngữ kiến trúc rõ ràng, chính xác và có định hướng lâu dài. Trong bài viết này, Decox tổng hợp các bản vẽ nhà 2 tầng chi tiết nhất 2026, bao gồm bản vẽ AutoCAD kiến trúc, kết cấu, hệ thống điện - nước và phối cảnh 3D, giúp gia chủ có cái nhìn toàn diện trước khi bước vào giai đoạn xây dựng.
>> Xem thêm:
- Bản vẽ, phương án và 20+ mẫu thiết kế phòng ngủ nhỏ
- 10+ Mẫu bản vẽ mặt bằng nhà phố đẹp nên tham khảo
- 12 Bản vẽ mặt bằng biệt thự 1 tầng, 2 tầng, 3 tầng đẹp 2026
Bản vẽ AutoCAD kiến trúc nhà 2 tầng
Bản vẽ AutoCAD kiến trúc nhà 2 tầng là cơ sở định hình toàn bộ công trình, được thực hiện trên AutoCAD - phần mềm thiết kế kỹ thuật chuyên dụng trong lĩnh vực kiến trúc và xây dựng, cho phép thể hiện bản vẽ 2D, 3D với độ chính xác cao về kích thước và tỷ lệ. Thông qua các bản vẽ mặt bằng, mặt đứng và mặt cắt, nhu cầu sinh hoạt, gu thẩm mỹ và logic tổ chức không gian được chuyển hóa thành cấu trúc kiến trúc rõ ràng, khả thi. Đồng thời, đây cũng là nền tảng để phối hợp chính xác giữa kiến trúc, kết cấu và hệ thống kỹ thuật, góp phần kiểm soát chi phí và đảm bảo chất lượng công trình trong suốt quá trình thi công và sử dụng.
>> Xem thêm:
- 53+ Mẫu nhà ống 2 tầng đơn giản, đẹp, thiết kế hiện đại
- 45+ mẫu nhà 2 tầng đẹp giá 1 tỷ đẹp và cách ước tính chi phí
- 25 Mẫu nhà ống 2 tầng 2 mặt tiền đẹp, đơn giản (bản vẽ)
Bản vẽ AutoCAD mặt bằng nhà 2 tầng
Bản vẽ AutoCAD mặt đứng nhà 2 tầng
Bản vẽ AutoCAD mặt cắt nhà 2 tầng
Bản vẽ cầu thang nhà 2 tầng
Bản vẽ kết cấu nhà 2 tầng
Bản vẽ kết cấu nhà 2 tầng là tập hợp các bản vẽ kỹ thuật thể hiện hệ khung chịu lực của công trình, bao gồm móng, cột, dầm, sàn và các chi tiết liên kết. Đây là cơ sở để tính toán khả năng chịu tải, đảm bảo độ an toàn, ổn định và tuổi thọ cho ngôi nhà trong suốt quá trình sử dụng.
>> Xem thêm:
- 19+ Mẫu bản vẽ nhà 2 tầng mái Nhật đẹp, hiện đại, miễn phí
- 25+ mẫu nhà 2 tầng mặt tiền 6m hiện đại đẹp, có bản vẽ
Bản vẽ AutoCAD điện – nước nhà 2 tầng
Bản vẽ AutoCAD điện – nước nhà 2 tầng xác định rõ vị trí đường dây điện, ổ cắm, công tắc, thiết bị chiếu sáng và hệ thống ống cấp - thoát nước cho từng khu vực, từng tầng. Đây là cơ sở để thi công chính xác, đảm bảo an toàn và thuận tiện trong quá trình sử dụng, đồng thời hạn chế tối đa việc đục phá hay chỉnh sửa phát sinh khi công trình hoàn thiện và đi vào vận hành.
Bản vẽ phối cảnh 3D nội thất và phong cách nhà 2 tầng đơn giản
Bản vẽ phối cảnh 3D nội thất và phong cách nhà 2 tầng là bản vẽ mô phỏng không gian sống dưới dạng ba chiều, thể hiện trực quan cách tổ chức nội thất, vật liệu, màu sắc, ánh sáng và ngôn ngữ thiết kế của toàn bộ ngôi nhà. Thông qua phối cảnh 3D, gia chủ có thể hình dung rõ tổng thể không gian sau khi hoàn thiện, cảm nhận được phong cách kiến trúc - nội thất và mức độ hài hòa giữa các khu vực. Đây cũng là công cụ quan trọng giúp thống nhất ý tưởng thiết kế, kiểm soát thẩm mỹ và hạn chế sai lệch trong quá trình thi công.
>> Xem thêm:
- 101+ Mẫu nhà mái Nhật 2 tầng đẹp hiện đại, thiết kế mới
- 53+ Mẫu nhà ống 2 tầng đơn giản, đẹp, thiết kế hiện đại
- 50+ mẫu biệt thự mini 2 tầng đẹp, hiện đại, dẫn đầu xu hướng
Các bản vẽ nhà 2 tầng hoàn chỉnh chi tiết nhất 2026
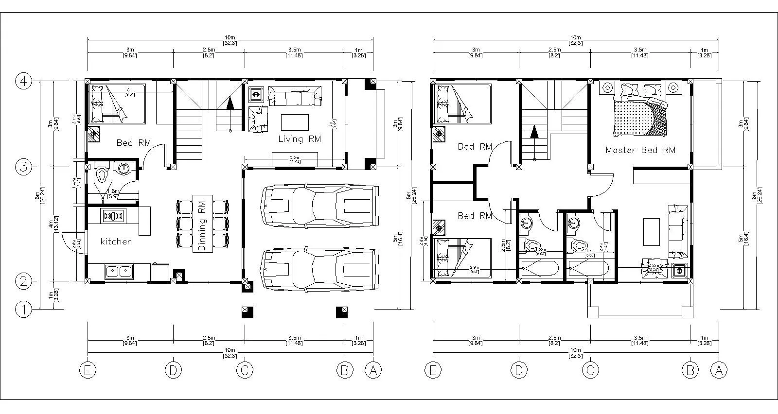
Bản vẽ thiết kế nhà 2 tầng 7x10m
Bản vẽ thiết kế nhà 2 tầng 8x10m
>> Xem thêm: 39+ Mẫu nhà 2 tầng mái Thái 80m2 đẹp, đơn giản
Bản vẽ 3d nhà ống 2 tầng 5x20
>> Xem thêm:
- 99+ Mẫu nhà ống 2 tầng mái thái 5x20m đẹp, hiện đại
- 25+ Mẫu nhà 2 tầng 4 phòng ngủ 100m2 đẹp, full bản vẽ
- 65+ Mẫu nhà biệt thự 2 tầng đẹp, có bản vẽ thiết kế hiện đại
Bản vẽ nhà 2 tầng 7x12m
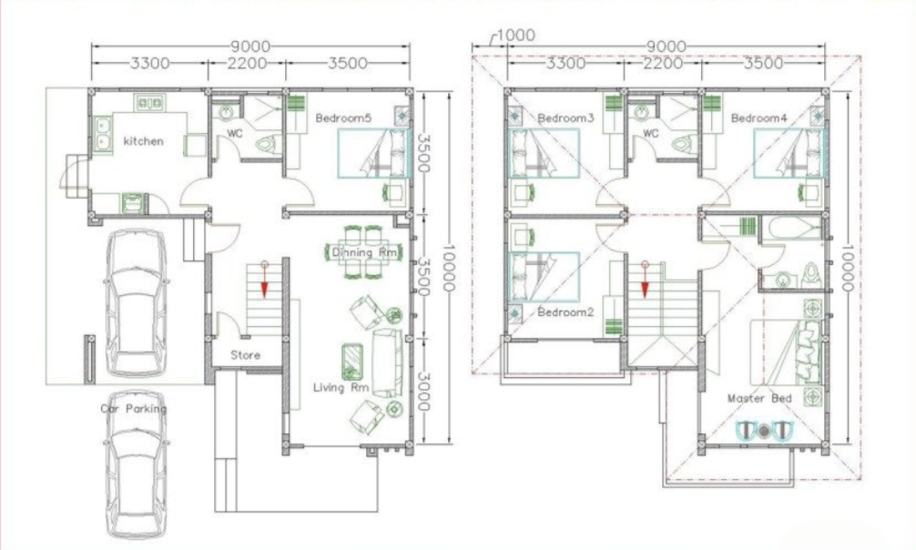
Bản vẽ thiết kế nhà 2 tầng 9x10m
Bản vẽ nhà 2 tầng mái thái đẹp
>> Xem thêm:
- 25+ Mẫu nhà mái Thái 2 tầng chữ L đẹp, đơn giản, tiện nghi
- Mẫu thiết kế nhà ống 2 tầng mái Thái mặt tiền 5m đẹp
- 34+ Mẫu nhà 2 tầng mái Thái 100m2 đơn giản, hiện đại
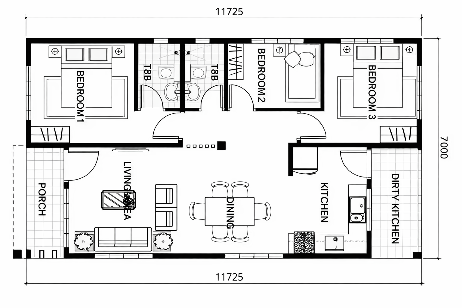
Bản vẽ nhà 2 tầng 3 phòng ngủ
>> Xem thêm: Mẫu nhà mái Thái 2 tầng 4 phòng ngủ đẹp
Bản vẽ nhà 2 tầng 4 phòng ngủ
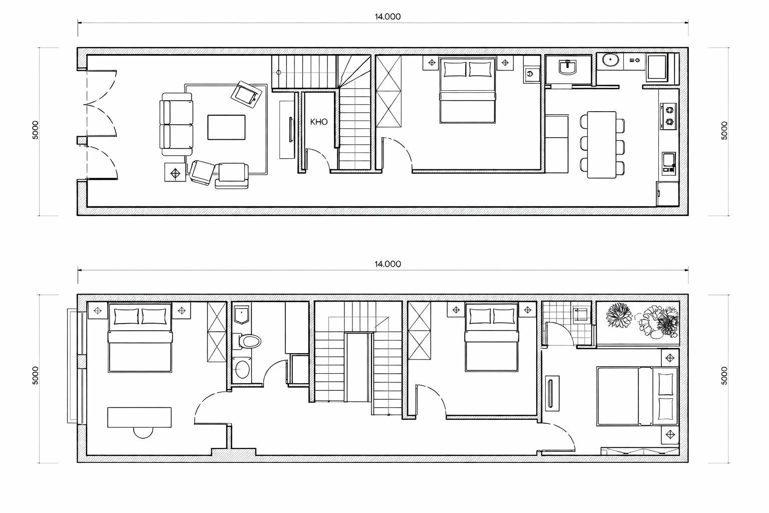
Bản vẽ thiết kế nhà 2 tầng 5x14m
Sau cùng, một bản vẽ nhà 2 tầng không chỉ dừng lại ở những thông số kỹ thuật hay những đường nét AutoCAD lạnh lùng trên mặt giấy. Đó là "kịch bản" cho một cuộc sống hạnh phúc, nơi mỗi mét vuông đều được đo ni đóng giày dựa trên thói quen, gu thẩm mỹ và những kỳ vọng về một tổ ấm bền vững. Bởi chúng tôi tin rằng, khi một bản vẽ được thực hiện bằng sự thấu hiểu và tư duy chuyên môn sắc sảo, đó chính là khởi đầu hoàn hảo nhất cho một di sản sống trường tồn cùng năm tháng. Decox với đội ngũ chuyên gia hàng đầu, đồng hành trọn vẹn từ chiến lược đầu tư, thiết kế tối ưu đến thi công chuẩn mực, đảm bảo chất lượng và chi phí tối ưu.














































